Terreno para Venda em Serra e Junceira
125.000 €
Tipo
Terreno
Negócio
Venda
Área Bruta
1100 m²
Certificado Energético
N/A
Área do Terreno
3820 m²
Terreno para construção junto da cidade de Tomar no Centro de Portugal
Terreno para construção junto da cidade de Tomar no Centro de Portugal
Este terreno com a área de 3.820m2 está localizado em uma das encostas da cidade de Tomar numa zona calma e de referência para habitar, onde tem uma vista muito bonita para o campo e está próximo da cidade numa zona habitacional muito tranquila.
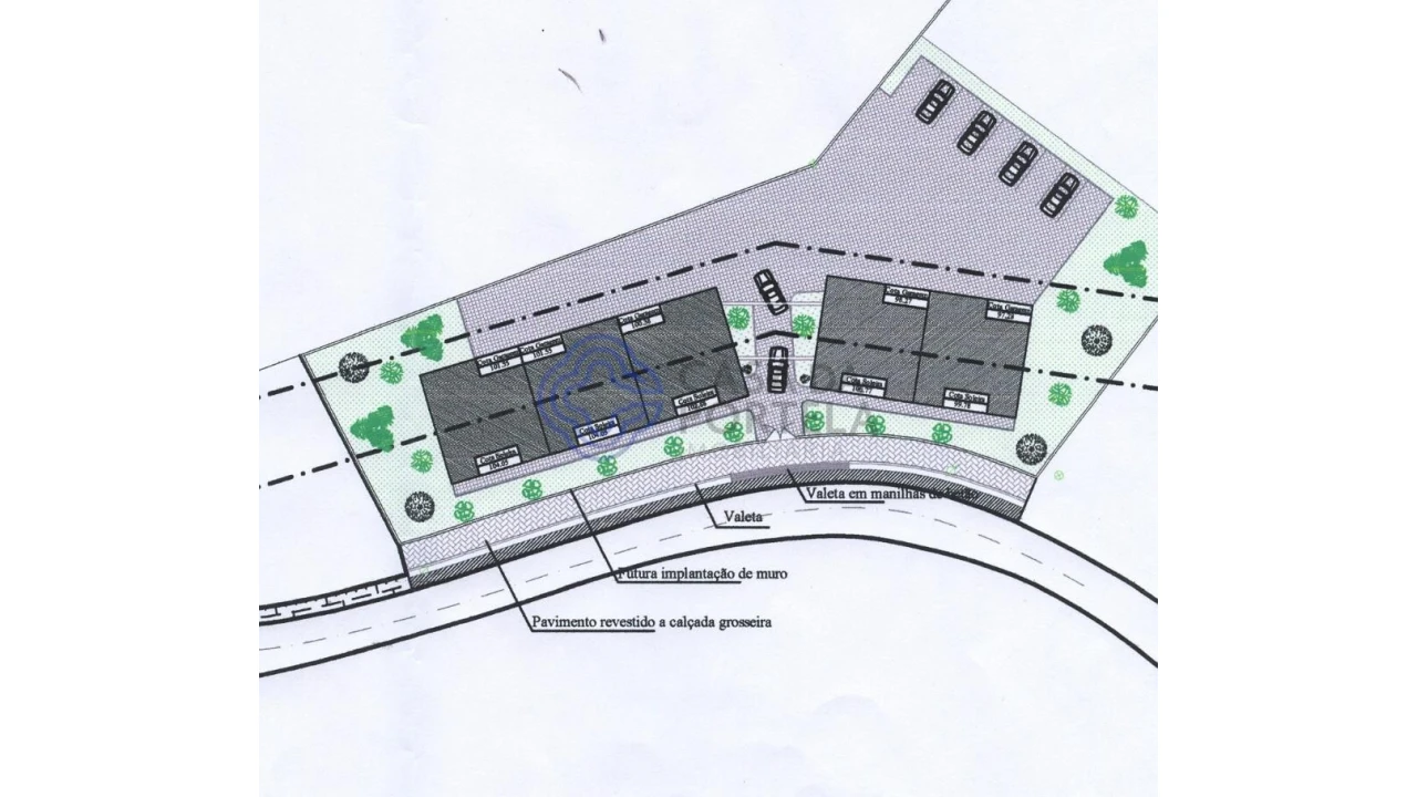
O terreno tem uma zona com um ligeiro declive que é onde se pode fazer construção de várias moradias, em outra zona do terreno o declive é mais acentuado.
Esta propriedade já teve alguns anos atrás uma viabilidade para construir 5 moradias em 2 blocos de 3 e de 2 moradias respetivamente com uma zona de estacionamento e outra de zona verde.
Se quiser também pode construir apenas uma moradia e assim ter um espaço maior e mais privado junto da cidade de Tomar.
Tem boas acessibilidades e as infraestruturas estão no local, água, eletricidade e saneamento.
LOCALIZAÇÃO:
A propriedade fica na histórica cidade de Tomar com o histórico Convento de Cristo e Castelo construído pelos Cavaleiros Templários no século XII e está classificado como Património Mundial pela Unesco.
A Lagoa da Barragem de Castelo de Bode fica a apenas cerca de 20 minutos. Esta lagoa é popular para todo o tipo de desportos náuticos. A lagoa é também um paraíso para a vida selvagem com água muito pura e existem várias praias fluviais perto a propriedade onde você pode relaxar ao sol.
O acesso à autoestrada demora cerca de 5 minutos, onde chega ao aeroporto de Lisboa em uma hora e meia, embora seja possível utilizar o comboio ou autocarro para esta viagem. A costa marítima fica a cerca de uma hora e meia de carro onde tem belas praias como a da Nazaré, ideais para os amantes do surf e outros desportos náuticos. O aeroporto de Lisboa é servido por diversas companhias aéreas de baixo custo que operam voos regulares entre Portugal e o Reino Unido e outros países europeus.
A CASA DA PORTELA Imobiliária – É uma empresa de mediação imobiliária e Intermediação de Crédito criada em 2013. Os seus sócios fundadores possuem um sólido conhecimento acumulado desde 1994 sobre o mercado imobiliário, mantendo-se atentos às suas tendências e evolução, e com uma Intermediação de Crédito registado no Banco de Portugal com o nº 0004889.
A empresa começou por centrar-se na região do Grande Porto, conseguindo, desde o início, um grande volume de transações. O sucesso do modelo de negócio fez com que a marca Casa da Portela imobiliária chegasse em 2022 a Vila Nova de Famalicão. A Casa da Portela imobiliária pretende valorizar o trabalho dos consultores e prestar um serviço de excelência aos seus clientes, proporcionando um serviço de qualidade e tranquilidade, de forma a realizar bons negócios, garantindo a satisfação dos nossos clientes e parceiros. Para atingir esse propósito, dispomos de uma equipa multidisciplinar de profissionais qualificados, com vasta experiência em mediação imobiliária que nos permite apresentar e sugerir as melhores alternativas para os seus objetivos de venda, de arrendamento, ou de investimento imobiliário.
Possuímos uma rede de contatos privilegiada que nos permite potenciar a divulgação, a gestão e a concretização de negócio do seu imóvel em vários formatos.
3 Pilares fundamentais da Casa da Portela:
Missão
A nossa missão é orientar os nossos objetivos excecionais (financeiros, humanos e sociais) na nossa organização e uni-los aos nossos não menos excecionais clientes, atendendo sempre às suas necessidades, desejos e expectativas. A Casa da Portela imobiliária nasceu para que fosse possível prestar um acompanhamento e apoio contínuos, explicação e esclarecimento de dúvidas, sobre todo o processo de compra, venda ou arrendamento de imóveis em Portugal. A concretização de tudo isto faz com que a nossa máxima ambição seja sermos os melhores no mercado imobiliário.
Visão
A nossa visão é sermos a empresa de referência no mercado imobiliário, assim como sermos reconhecidos como a melhor opção para os nossos clientes. Para isso, fazemos sempre por manter um espírito inovador e de liderança que nos levará ao reconhecimento pela nossa excelência no mercado.
Valores
Os nossos valores são sempre o conjunto das nossas atitudes e crenças, que envolvem todas as pessoas da organização, para que, em uníssono, consigamos atingir os resultados de excelência a que nos propomos sempre que são baseados na Qualidade, Profissionalismo, Responsabilidade, Respeito e Inovação.
Este terreno com a área de 3.820m2 está localizado em uma das encostas da cidade de Tomar numa zona calma e de referência para habitar, onde tem uma vista muito bonita para o campo e está próximo da cidade numa zona habitacional muito tranquila.
O terreno tem uma zona com um ligeiro declive que é onde se pode fazer construção de várias moradias, em outra zona do terreno o declive é mais acentuado.
Esta propriedade já teve alguns anos atrás uma viabilidade para construir 5 moradias em 2 blocos de 3 e de 2 moradias respetivamente com uma zona de estacionamento e outra de zona verde.
Se quiser também pode construir apenas uma moradia e assim ter um espaço maior e mais privado junto da cidade de Tomar.
Tem boas acessibilidades e as infraestruturas estão no local, água, eletricidade e saneamento.
LOCALIZAÇÃO:
A propriedade fica na histórica cidade de Tomar com o histórico Convento de Cristo e Castelo construído pelos Cavaleiros Templários no século XII e está classificado como Património Mundial pela Unesco.
A Lagoa da Barragem de Castelo de Bode fica a apenas cerca de 20 minutos. Esta lagoa é popular para todo o tipo de desportos náuticos. A lagoa é também um paraíso para a vida selvagem com água muito pura e existem várias praias fluviais perto a propriedade onde você pode relaxar ao sol.
O acesso à autoestrada demora cerca de 5 minutos, onde chega ao aeroporto de Lisboa em uma hora e meia, embora seja possível utilizar o comboio ou autocarro para esta viagem. A costa marítima fica a cerca de uma hora e meia de carro onde tem belas praias como a da Nazaré, ideais para os amantes do surf e outros desportos náuticos. O aeroporto de Lisboa é servido por diversas companhias aéreas de baixo custo que operam voos regulares entre Portugal e o Reino Unido e outros países europeus.
A CASA DA PORTELA Imobiliária – É uma empresa de mediação imobiliária e Intermediação de Crédito criada em 2013. Os seus sócios fundadores possuem um sólido conhecimento acumulado desde 1994 sobre o mercado imobiliário, mantendo-se atentos às suas tendências e evolução, e com uma Intermediação de Crédito registado no Banco de Portugal com o nº 0004889.
A empresa começou por centrar-se na região do Grande Porto, conseguindo, desde o início, um grande volume de transações. O sucesso do modelo de negócio fez com que a marca Casa da Portela imobiliária chegasse em 2022 a Vila Nova de Famalicão. A Casa da Portela imobiliária pretende valorizar o trabalho dos consultores e prestar um serviço de excelência aos seus clientes, proporcionando um serviço de qualidade e tranquilidade, de forma a realizar bons negócios, garantindo a satisfação dos nossos clientes e parceiros. Para atingir esse propósito, dispomos de uma equipa multidisciplinar de profissionais qualificados, com vasta experiência em mediação imobiliária que nos permite apresentar e sugerir as melhores alternativas para os seus objetivos de venda, de arrendamento, ou de investimento imobiliário.
Possuímos uma rede de contatos privilegiada que nos permite potenciar a divulgação, a gestão e a concretização de negócio do seu imóvel em vários formatos.
3 Pilares fundamentais da Casa da Portela:
Missão
A nossa missão é orientar os nossos objetivos excecionais (financeiros, humanos e sociais) na nossa organização e uni-los aos nossos não menos excecionais clientes, atendendo sempre às suas necessidades, desejos e expectativas. A Casa da Portela imobiliária nasceu para que fosse possível prestar um acompanhamento e apoio contínuos, explicação e esclarecimento de dúvidas, sobre todo o processo de compra, venda ou arrendamento de imóveis em Portugal. A concretização de tudo isto faz com que a nossa máxima ambição seja sermos os melhores no mercado imobiliário.
Visão
A nossa visão é sermos a empresa de referência no mercado imobiliário, assim como sermos reconhecidos como a melhor opção para os nossos clientes. Para isso, fazemos sempre por manter um espírito inovador e de liderança que nos levará ao reconhecimento pela nossa excelência no mercado.
Valores
Os nossos valores são sempre o conjunto das nossas atitudes e crenças, que envolvem todas as pessoas da organização, para que, em uníssono, consigamos atingir os resultados de excelência a que nos propomos sempre que são baseados na Qualidade, Profissionalismo, Responsabilidade, Respeito e Inovação.
Localização
Serra e Junceira, Tomar, Santarém
Informação do anúncio
ID do anúncio
630423
Referência Externa
175441
Atualizado em
09/05/2026 23:29:18
Terreno para Venda em Serra e Junceira
Vídeo