Voltar
Apartamento T3 para Venda em Ramalde Foto 1
Apartamento T3 para Venda em Ramalde Foto 2
Apartamento T3 para Venda em Ramalde Foto 3
Apartamento T3 para Venda em Ramalde Foto 4
Apartamento T3 para Venda em Ramalde Foto 5

Apartamento T3 para Venda em Ramalde

465.000 €

Tipo
Apartamento
Negócio
Venda
Ano de Construção
2024
Quartos
3
Casas de Banho
3
Área Útil
137 m²
Certificado Energético
N/A
Área do Terreno
154 m²

Apartamento T3 em Ramalde de 137,00 m²

Localizado na freguesia de Ramalde , encontra este magnifico condomínio , composto por dois imponentes edifícios , com 149 apartamentos , distribuídos por 8 andares em cada um.

Com acabamentos de alta qualidade , encontra apartamentos de tipologia T3 eT4 , com excelentes varandas .

Poderá usufruir de :

- Piscina
- Sala de Festas I Jogos I Convívio
- Estacionamento para mobilidade reduzida
- Áreas Lounge
- Ginásio
- Campo de Jogos
- Balneário Apoio
- WC Apoio
- Parque Infantil

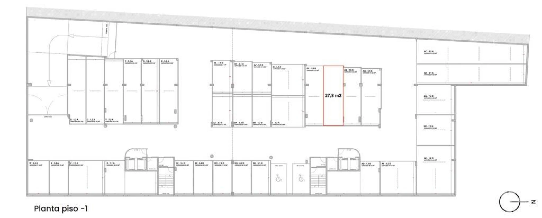
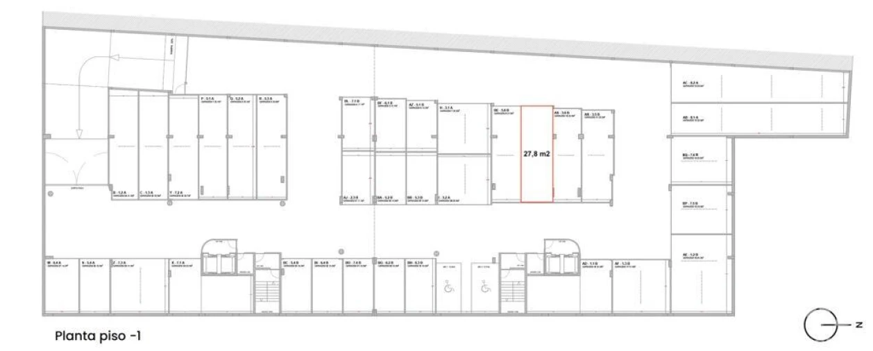
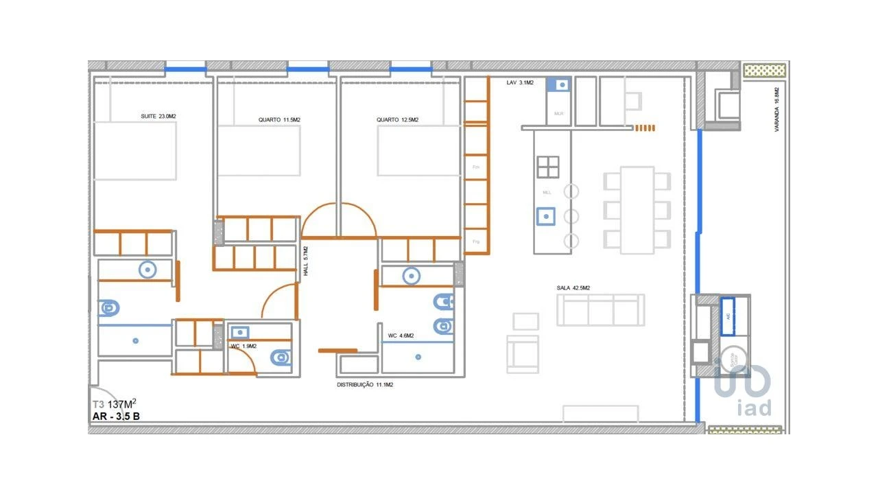
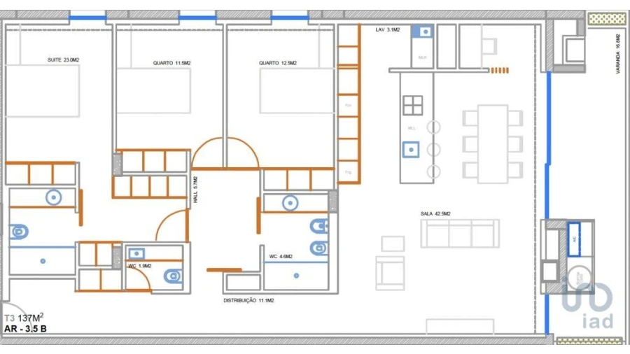
Este apartamento em especifico , situado no 3º piso , tem uma área habitável de 137 m2 , uma fantástica varanda de 16,8 m2 e uma garagem com 27,8 m2 .

137 m2 de puro conforto distribuidos por :
- Suite - 23 m2
- Quarto 1 - 12,5 m2
- Quarto 2 - 11,5 m2
- Casa de Banho - 4,6 m2
- WC - 1,9 m2
- Sala + cozinha - 42,5 m2
- Hall - 5,7 m2
- Area comum - 11,1 m2
- Lavandaria - 3,1 m2

Proximidades :

1 Km - Estação de metro / Hipermercados / Clínica Veterinária

2 Km’s - Supermercado / Farmácia / Hospital da Prelada e Parque da Prelada / Casa de Saúde da Boavista / Ciclovia do Viso e Skate Park / Clube de Golf – City Golf / Centro pré-escolar / Clube de Padel - Top Padel

3 Km’s - Norte Shopping / ISEP / Casa da Música

4 Km’s - CUF / Universidade Fernando Pessoa

5 Km’s - Serralves / Foz Porto / Parque da Cidade

Uma sintonia perfeita com a natureza envolvente, que lhe oferece a possibilidade de viver entre a sofisticação urbana e a serenidade do futuro Parque Urbano de Requesende ( Porto) .

Descubra o prazer de viver num espaço onde o seu bem-estar é a nossa prioridade.
#ref: 116861

Localização

Ramalde, Porto, Porto

Informação do anúncio

ID do anúncio 672672
Referência Externa 116861
Atualizado em 05/12/2025 01:30:24
IAD Portugal AMI 11220
Referência do imóvel: 116861
Phone
Chamada para a rede fixa nacional
IAD Portugal AMI 11220
Referência do imóvel: 116861
Phone
Chamada para a rede fixa nacional
1 / 16
Apartamento T3 para Venda em Ramalde Foto 1
Apartamento T3 para Venda em Ramalde Foto 2
Apartamento T3 para Venda em Ramalde Foto 3
Apartamento T3 para Venda em Ramalde Foto 4
Apartamento T3 para Venda em Ramalde Foto 5
Apartamento T3 para Venda em Ramalde Foto 6
Apartamento T3 para Venda em Ramalde Foto 7
Apartamento T3 para Venda em Ramalde Foto 8
Apartamento T3 para Venda em Ramalde Foto 9
Apartamento T3 para Venda em Ramalde Foto 10
Apartamento T3 para Venda em Ramalde Foto 11
Apartamento T3 para Venda em Ramalde Foto 12
Apartamento T3 para Venda em Ramalde Foto 13
Apartamento T3 para Venda em Ramalde Foto 14
Apartamento T3 para Venda em Ramalde Foto 15
Apartamento T3 para Venda em Ramalde Foto 16
Apartamento T3 para Venda em Ramalde
Clicky