Apartamento T2 para Venda em Azurem
250.000 €
Tipo
Apartamento
Negócio
Venda
Ano de Construção
2025
Quartos
2
Casas de Banho
2
Área Bruta
142 m²
Área Útil
95 m²
Condição
Em construção
Certificado Energético
A
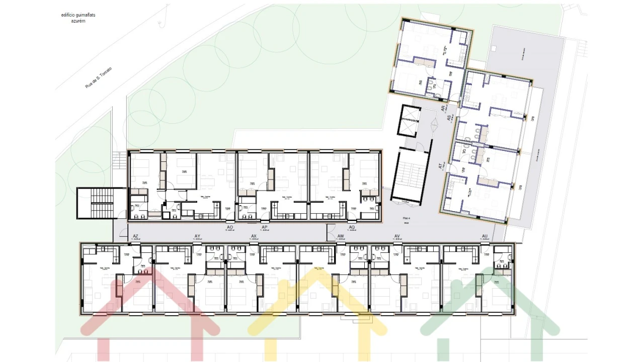
Apartamento T2 Guimaflats Residence
O Empreendimento Guimaflats Residences é o mais recente empreendimento a nascer junto do polo da Universidade de Guimarães e a escassos minutos do centro da cidade.
Excelente oportunidade de investimento para arrendamento a estudantes ou quadros deslocados.
O empreendimento fica apenas a 2 minutos a pé do Campus Universitário de Azurém, do mercado tradicional, junto ao centro e aos acessos de entrada e saída da cidade.
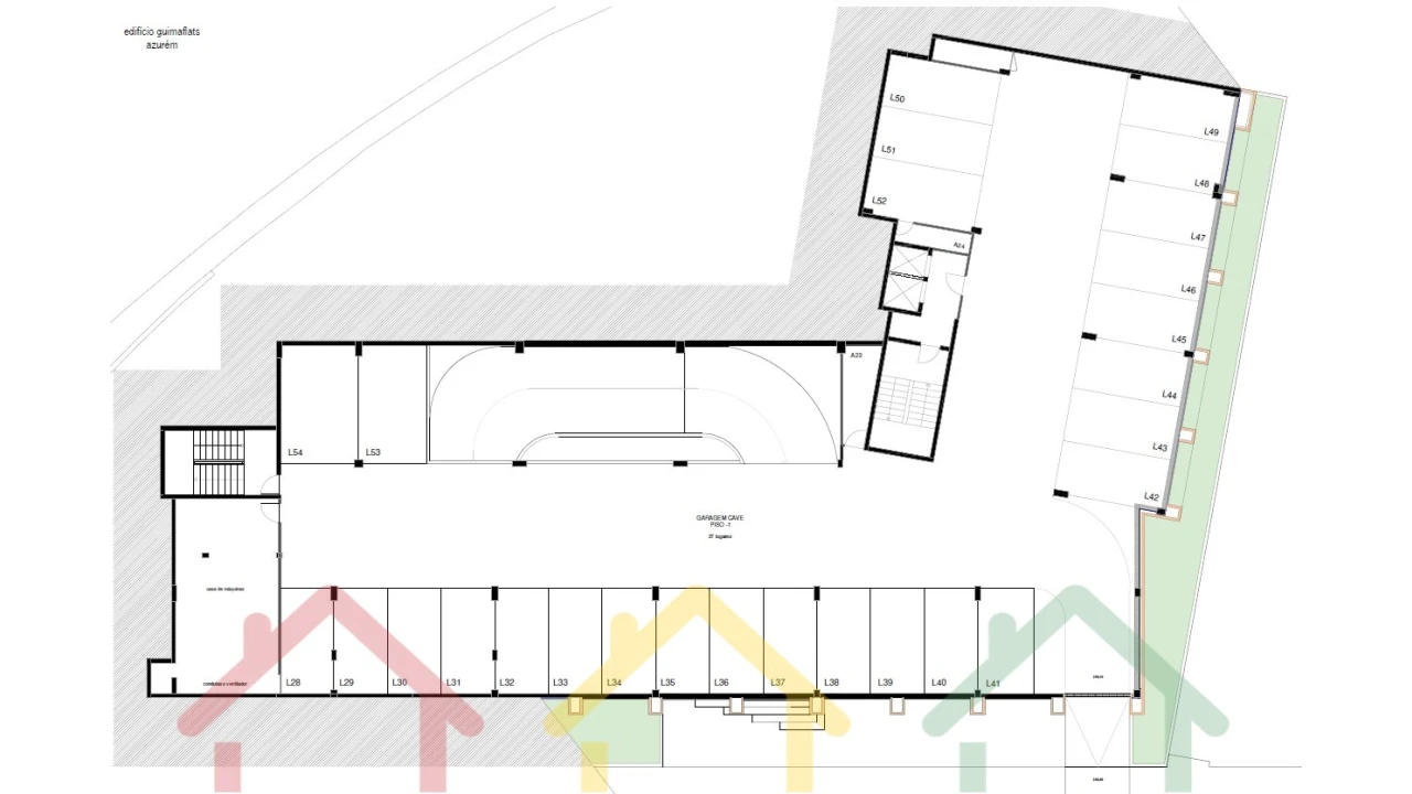
O Empreendimento dispõe de apartamentos T1 e T2 , todos com lugar de garagem.
Pensados para oferecer todo o conforto com cozinhas totalmente mobiladas e equipadas com placa, forno, micro-ondas, frigorífico combinado, exaustor e máquina de lavar louça.
Bons acabamentos e qualidade de construção com excelentes níveis de isolamento térmico e acústico.
A Universidade do Minho tem vindo a ocupar lugares de topo nos rankings internacionais de reconhecimento académico, atraindo um número crescente de estudantes estrangeiros, mas também nacionais, à procura de alojamento de qualidade e proximidade com os campus.
Todos os apartamentos oferecem lugar de garagem.
T1 com garagem desde €168.750,00€
T2 com garagem desde €230.000,00€
Imóvel com a Ref.ª 1502AO/23
Excelente oportunidade de investimento para arrendamento a estudantes ou quadros deslocados.
O empreendimento fica apenas a 2 minutos a pé do Campus Universitário de Azurém, do mercado tradicional, junto ao centro e aos acessos de entrada e saída da cidade.
O Empreendimento dispõe de apartamentos T1 e T2 , todos com lugar de garagem.
Pensados para oferecer todo o conforto com cozinhas totalmente mobiladas e equipadas com placa, forno, micro-ondas, frigorífico combinado, exaustor e máquina de lavar louça.
Bons acabamentos e qualidade de construção com excelentes níveis de isolamento térmico e acústico.
A Universidade do Minho tem vindo a ocupar lugares de topo nos rankings internacionais de reconhecimento académico, atraindo um número crescente de estudantes estrangeiros, mas também nacionais, à procura de alojamento de qualidade e proximidade com os campus.
Todos os apartamentos oferecem lugar de garagem.
T1 com garagem desde €168.750,00€
T2 com garagem desde €230.000,00€
Imóvel com a Ref.ª 1502AO/23
Localização
Azurem, Guimarães, Braga
Informação do anúncio
ID do anúncio
715190
Referência Externa
1502AO/23
Atualizado em
19/05/2026 14:23:58
Anunciante
Chamada para a rede fixa nacional
Fachada Versátil, Lda
AMI 18500
Referência do imóvel:
1502AO/23
Apartamento T2 para Venda em Azurem