Terreno para Venda em Candoso Santiago e Mascotelos
110.000 €
Tipo
Terreno
Negócio
Venda
Condição
Não aplicável
Certificado Energético
Área do Terreno
1230 m²
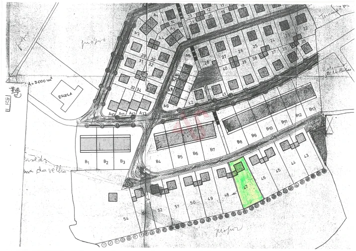
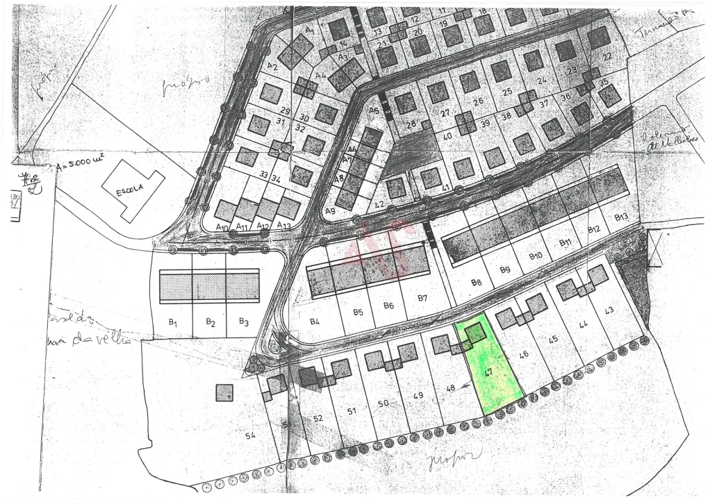
Terreno Para Construção Venda em Candoso São Tiago e Mascotelos,Guimarães
Terreno com viabilidade para Construção de 4 Frações: 2 com Tipologia T3 + 1 + 2 Duplex com Tipologia T3 | 1230 m2 em Guimarães
Terreno para construção com 1230 m2 em Candoso S. Tiago, Guimarães.
Imóvel com viabilidade para construção de 4 frações:
Fração A | Piso -2 (Tipologia T3 + 1)
Área Bruta da Habitação | 146,50 m²
Área Útil da Habitação | 130,00 m²
Área da Varanda | 20,35 m²
Fração B | Piso -1 (Tipologia T3 + 1)
Área Bruta da Habitação | 146,50 m²
Área Útil da Habitação | 130,00 m²
Área da Varanda | 20,35 m²
Fração C | Piso 0 e 1 - Duplex (Tipologia T3)
Área Bruta da Habitação | 132,70 m²
Área Útil da Habitação | 110,00 m²
Área da Varanda | 36,85 m²
Fração D | Piso 0 e 1 - Duplex (Tipologia T3)
Área Bruta da Habitação | 127,50 m²
Área Útil da Habitação | 105,00 m²
Área da Varanda | 33,00 m².
Boa exposição solar.
Situa-se:
- Em zona residencial calma;
- Próximo de transportes públicos;
- A 10 minutos do centro de Guimarães.
Referência. ASG23026
Por sermos intermediários de crédito devidamente autorizados pelo Banco de Portugal (Reg. 2736) fazemos a gestão de todo o seu processo de financiamento, sempre com as melhores soluções de mercado.
Porquê escolher a AS Imobiliária
Com mais de 14 anos no ramo imobiliário e milhares de famílias felizes, dispomos de 8 agências estrategicamente localizadas, para o servir com proximidade, corresponder à suas expectativas e ajudá-lo a adquirir a sua casa de sonho. Compromisso, Competência e Confiança são os nossos valores que entregamos aos nossos Clientes na hora de comprar, arrendar ou vender o seu imóvel.
A nossa prioridade é a sua Felicidade!
Especialistas imobiliários em Vizela ; Guimarães ; Taipas ; Felgueiras ; Lousada ; Santo Tirso ; Barcelos ; S. João da Madeira ; Porto ; Lisboa
Terreno para construção com 1230 m2 em Candoso S. Tiago, Guimarães.
Imóvel com viabilidade para construção de 4 frações:
Fração A | Piso -2 (Tipologia T3 + 1)
Área Bruta da Habitação | 146,50 m²
Área Útil da Habitação | 130,00 m²
Área da Varanda | 20,35 m²
Fração B | Piso -1 (Tipologia T3 + 1)
Área Bruta da Habitação | 146,50 m²
Área Útil da Habitação | 130,00 m²
Área da Varanda | 20,35 m²
Fração C | Piso 0 e 1 - Duplex (Tipologia T3)
Área Bruta da Habitação | 132,70 m²
Área Útil da Habitação | 110,00 m²
Área da Varanda | 36,85 m²
Fração D | Piso 0 e 1 - Duplex (Tipologia T3)
Área Bruta da Habitação | 127,50 m²
Área Útil da Habitação | 105,00 m²
Área da Varanda | 33,00 m².
Boa exposição solar.
Situa-se:
- Em zona residencial calma;
- Próximo de transportes públicos;
- A 10 minutos do centro de Guimarães.
Referência. ASG23026
Por sermos intermediários de crédito devidamente autorizados pelo Banco de Portugal (Reg. 2736) fazemos a gestão de todo o seu processo de financiamento, sempre com as melhores soluções de mercado.
Porquê escolher a AS Imobiliária
Com mais de 14 anos no ramo imobiliário e milhares de famílias felizes, dispomos de 8 agências estrategicamente localizadas, para o servir com proximidade, corresponder à suas expectativas e ajudá-lo a adquirir a sua casa de sonho. Compromisso, Competência e Confiança são os nossos valores que entregamos aos nossos Clientes na hora de comprar, arrendar ou vender o seu imóvel.
A nossa prioridade é a sua Felicidade!
Especialistas imobiliários em Vizela ; Guimarães ; Taipas ; Felgueiras ; Lousada ; Santo Tirso ; Barcelos ; S. João da Madeira ; Porto ; Lisboa
Localização
Candoso Santiago e Mascotelos, Guimarães, Braga
Informação do anúncio
ID do anúncio
718065
Referência Externa
ASG25003
Atualizado em
03/04/2026 02:04:36
Anunciante
Chamada para a rede fixa nacional
AS Imobiliária
AMI 13249
Referência do imóvel:
ASG25003
Terreno para Venda em Candoso Santiago e Mascotelos
Vídeo