Terreno para Venda em Alte
135.000 €
Tipo
Terreno
Negócio
Venda
Área Bruta
98 m²
Área Útil
98 m²
Condição
Para Demolir ou Reconstruir
Certificado Energético
Isento
Área do Terreno
98 m²
Ruína no centro de Alte, com projecto aprovado para construção de moradia com três quartos
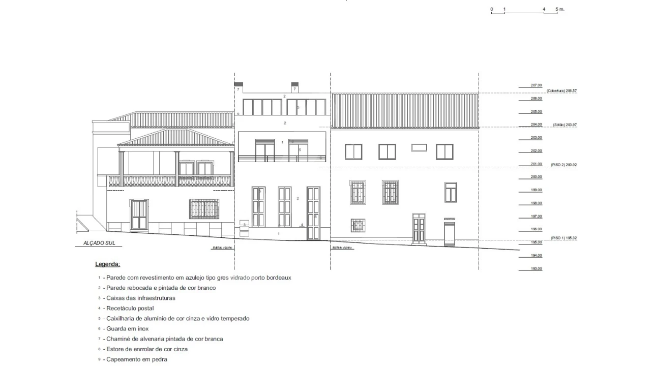
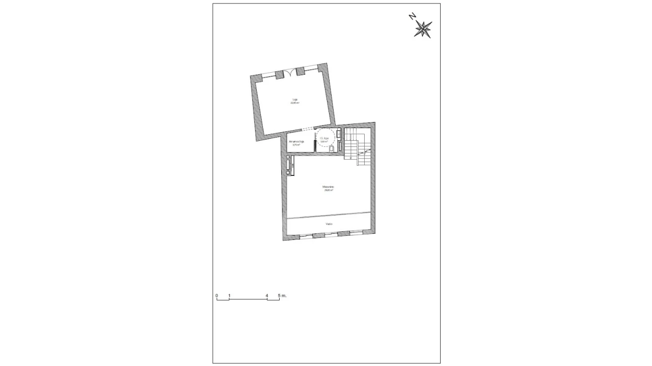
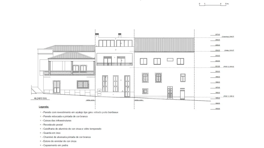
Casa antiga típica em ruína, com projeto aprovado para recuperação e ampliação da casa existente, situada no centro da tradicional aldeia de Alte. O projeto aprovado contempla a construção de uma moradia com três quartos e uma loja. A moradia terá duas frentes enquanto que a loja, também ficará virada para a rua principal, mas terá apenas uma frente.
A moradia será composta por três quartos, um dos quais em suite e com closet, uma ampla mezanine com lareira, cozinha, zona para refeições, despensa, uma varanda e duas casas de banho. Poderá transformar a mezanine numa espaçosa sala de estar ou zona de lazer. No sótão terá um amplo terraço com mais de 30 m2.
A loja terá uma área total de 30 m2 e irá dispor de arrecadação e casa de banho.
Localizada no centro de Alte, uma vila tradicional na serra algarvia, pertencente ao concelho de Loulé. A uma curta distância terá o comércio e serviços locais, assim como, as suas áreas de lazer.
Além disso, está a 22 km de Albufeira, 24 km de Loulé e a 30 km de Vilamoura.
Alte, que já foi considerada a aldeia mais típica de Portugal, continua fiel às suas origens, preservando assim os seus traços originais. É uma aldeia típica que se caracteriza pelas suas casas brancas e paisagem natural de estilo mediterrânico. Cada recanto da aldeia está repleto de charme, desde a original arte de rua, a arquitetura, a natureza, o património histórico, entre muitos outros.
Este poderá ser o local ideal para adquirir o seu refúgio numa vila tranquila e rodeado pela natureza. Além disso, devido a toda a sua envolvente e crescente procura por alojamento local e turismo rural, esta poderá ser uma opção de investimento. Assim, poderá restaurar a moradia existente mantendo os seus traços originais e rentabilizá-la. Sendo por isso, uma boa opção para quem procura uma zona calma e totalmente em sintonia com a natureza.
Venha conhecer!
Referência 1230657/23VL
Typical old house in ruins, with an approved project for the recovery and expansion of the existing house, located in the center of the traditional village of Alte. The approved project contemplates the construction of a house with three bedrooms and a shop. The house will have two fronts while the store will also face the main street, but will only have one front.
The house will consist of three bedrooms, one of which is en suite and with a closet, a large mezzanine with fireplace, kitchen, dining area, pantry, a balcony and two bathrooms. You can transform the mezzanine into a spacious living room or leisure area. In the attic you will have a large terrace of more than 30 m2.
The store will have a total area of 30 m2 and will have a storage room and a bathroom.
Located in the center of Alte, a traditional village in the Algarve mountains, belonging to the municipality of Loulé. Within walking distance, you will find local shops and services, as well as leisure areas.
Furthermore, it is 22 km from Albufeira, 24 km from Loulé and 30 km from Vilamoura.
Alte, which was once considered the most typical village in Portugal, remains faithful to its origins, thus preserving its original features. It is a typical village characterized by its white houses and Mediterranean-style natural landscape. Every corner of the village is full of charm, from the original street art, architecture, nature, historical heritage, among many others.
This could be the ideal place to acquire your refuge in a quiet village surrounded by nature. In addition, due to all its surroundings and the growing demand for local accommodation and rural tourism, this could be an investment option. Thus, you can restore the existing house, maintaining its original features and monetize it. Therefore, a good option for those looking for a quiet area and totally in tune with nature.
Book your viewing!
Reference 1230657/23VL
A moradia será composta por três quartos, um dos quais em suite e com closet, uma ampla mezanine com lareira, cozinha, zona para refeições, despensa, uma varanda e duas casas de banho. Poderá transformar a mezanine numa espaçosa sala de estar ou zona de lazer. No sótão terá um amplo terraço com mais de 30 m2.
A loja terá uma área total de 30 m2 e irá dispor de arrecadação e casa de banho.
Localizada no centro de Alte, uma vila tradicional na serra algarvia, pertencente ao concelho de Loulé. A uma curta distância terá o comércio e serviços locais, assim como, as suas áreas de lazer.
Além disso, está a 22 km de Albufeira, 24 km de Loulé e a 30 km de Vilamoura.
Alte, que já foi considerada a aldeia mais típica de Portugal, continua fiel às suas origens, preservando assim os seus traços originais. É uma aldeia típica que se caracteriza pelas suas casas brancas e paisagem natural de estilo mediterrânico. Cada recanto da aldeia está repleto de charme, desde a original arte de rua, a arquitetura, a natureza, o património histórico, entre muitos outros.
Este poderá ser o local ideal para adquirir o seu refúgio numa vila tranquila e rodeado pela natureza. Além disso, devido a toda a sua envolvente e crescente procura por alojamento local e turismo rural, esta poderá ser uma opção de investimento. Assim, poderá restaurar a moradia existente mantendo os seus traços originais e rentabilizá-la. Sendo por isso, uma boa opção para quem procura uma zona calma e totalmente em sintonia com a natureza.
Venha conhecer!
Referência 1230657/23VL
Typical old house in ruins, with an approved project for the recovery and expansion of the existing house, located in the center of the traditional village of Alte. The approved project contemplates the construction of a house with three bedrooms and a shop. The house will have two fronts while the store will also face the main street, but will only have one front.
The house will consist of three bedrooms, one of which is en suite and with a closet, a large mezzanine with fireplace, kitchen, dining area, pantry, a balcony and two bathrooms. You can transform the mezzanine into a spacious living room or leisure area. In the attic you will have a large terrace of more than 30 m2.
The store will have a total area of 30 m2 and will have a storage room and a bathroom.
Located in the center of Alte, a traditional village in the Algarve mountains, belonging to the municipality of Loulé. Within walking distance, you will find local shops and services, as well as leisure areas.
Furthermore, it is 22 km from Albufeira, 24 km from Loulé and 30 km from Vilamoura.
Alte, which was once considered the most typical village in Portugal, remains faithful to its origins, thus preserving its original features. It is a typical village characterized by its white houses and Mediterranean-style natural landscape. Every corner of the village is full of charm, from the original street art, architecture, nature, historical heritage, among many others.
This could be the ideal place to acquire your refuge in a quiet village surrounded by nature. In addition, due to all its surroundings and the growing demand for local accommodation and rural tourism, this could be an investment option. Thus, you can restore the existing house, maintaining its original features and monetize it. Therefore, a good option for those looking for a quiet area and totally in tune with nature.
Book your viewing!
Reference 1230657/23VL
Localização
Alte, Loulé, Faro
Informação do anúncio
ID do anúncio
732962
Referência Externa
1230657/23VL
Atualizado em
06/05/2026 06:33:26
Anunciante
Chamada para a rede fixa nacional
Arcada Vilamoura
AMI 9054
Referência do imóvel:
1230657/23VL
Terreno para Venda em Alte