Terreno para Venda em Gondomar (São Cosme), Valbom e Jovim
3.300.000 €
Tipo
Terreno
Negócio
Venda
Área Útil
3210 m²
Condição
Não aplicável
Certificado Energético
Área do Terreno
6500 m²
Terreno Para Construção Venda em Gondomar (São Cosme), Valbom e Jovim,Gondomar
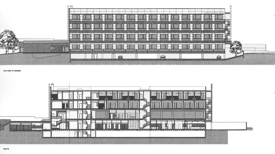
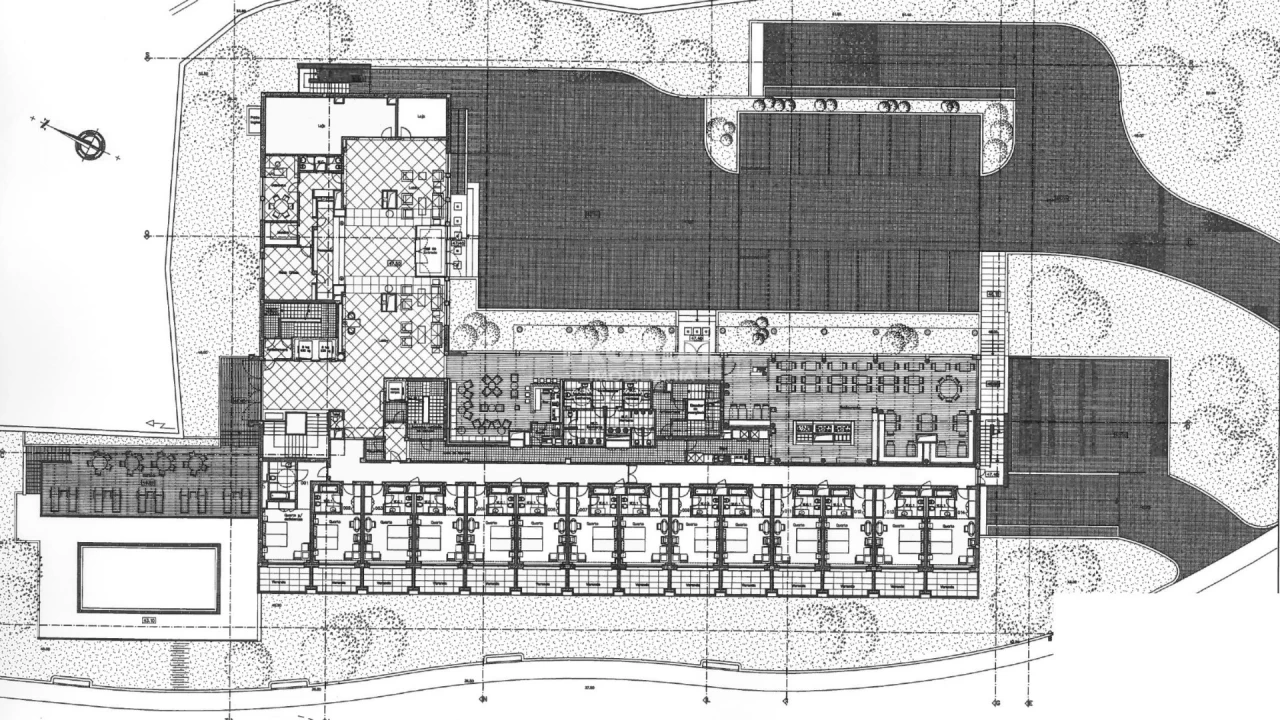
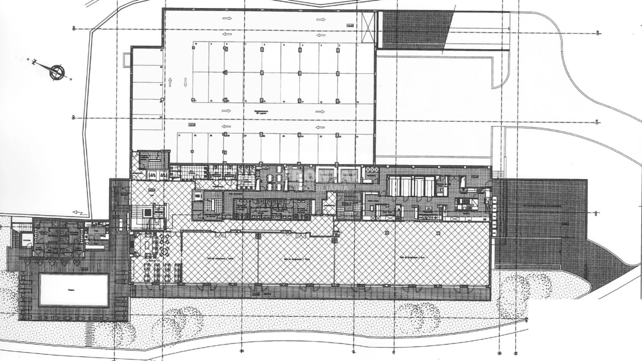
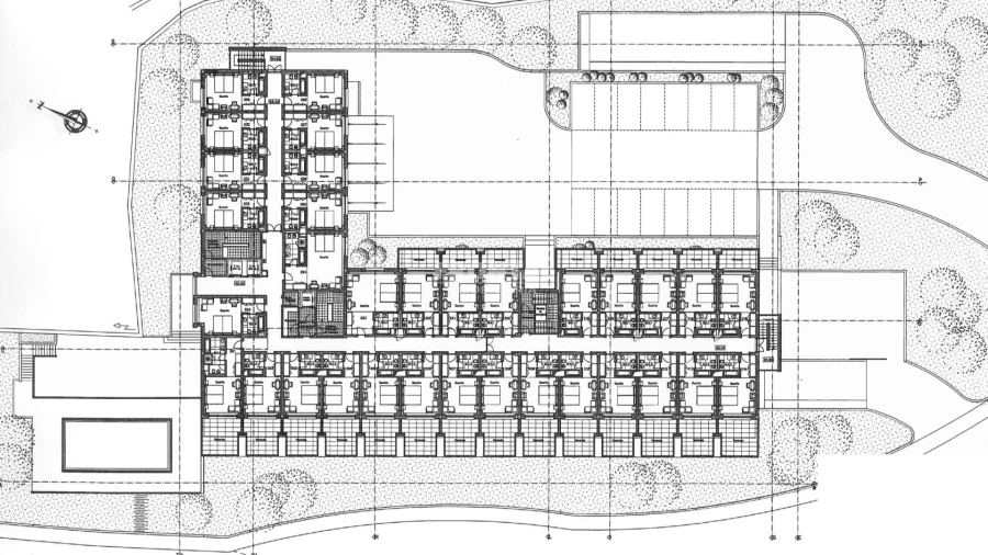
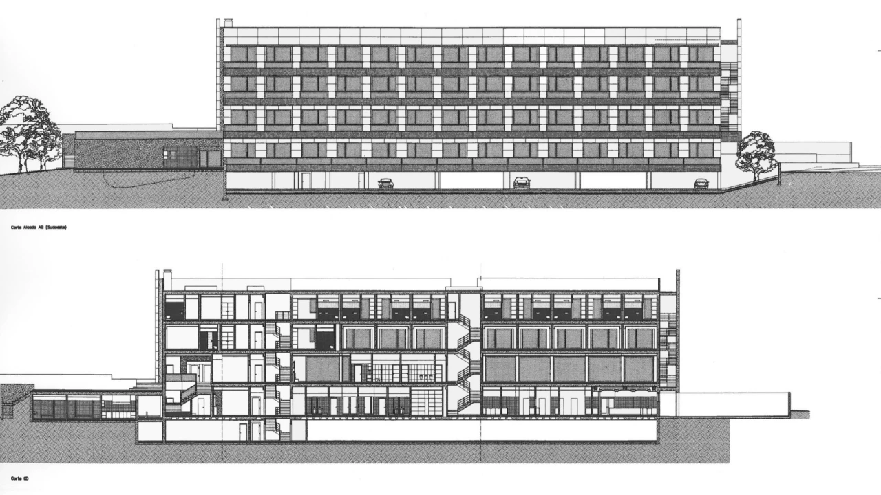
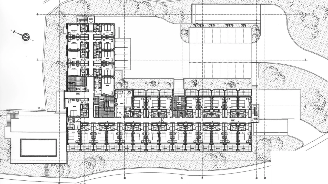
Terreno na zona do Freixo com projeto para construção de Hotel de 4 estrelas.
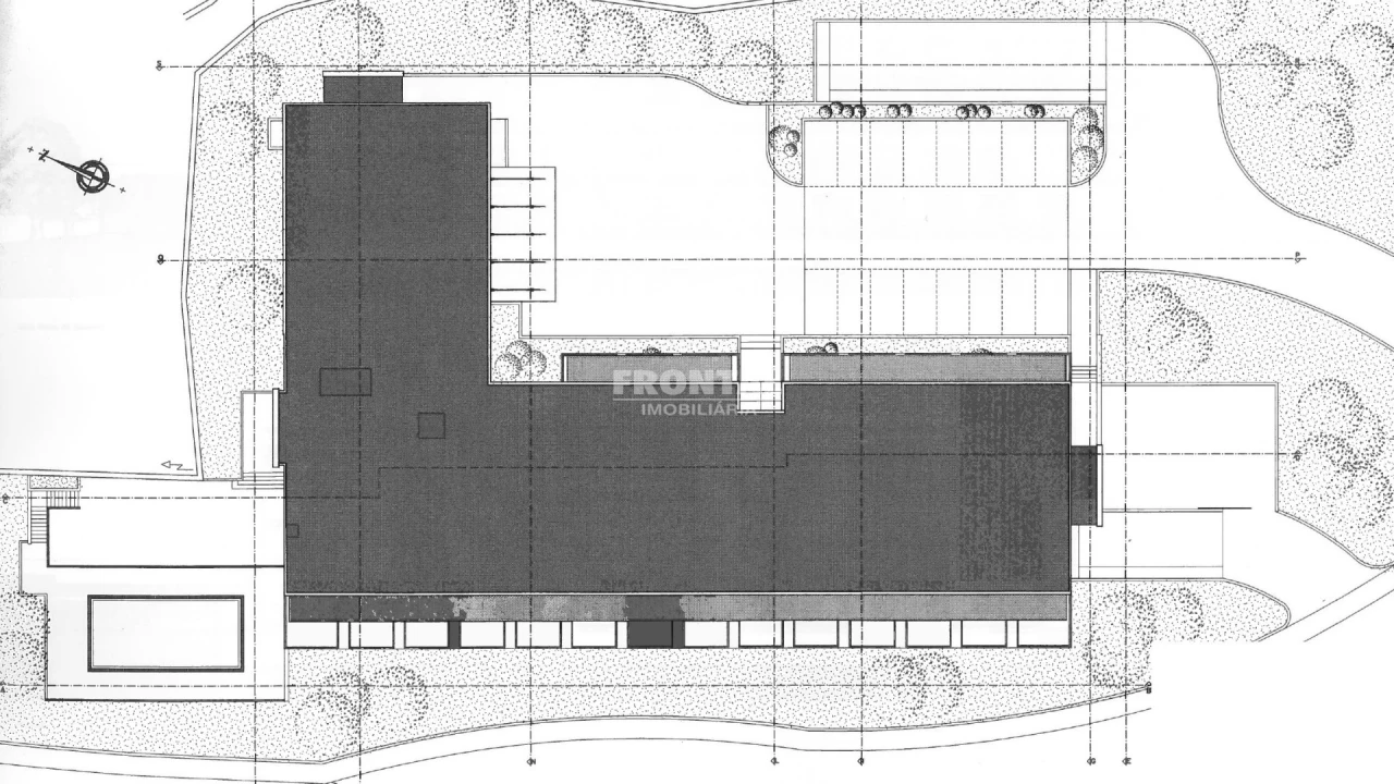
O terreno tem 6 500 m2 e está excelentemente localizado junto ao nó de acesso da VCI ao Freixo.
Localiza-se na margem do Rio Douro e é visível da Ponte do Freixo / A20 / IP1.
Tem vista panorâmica privilegiada sobre o Rio, as Pontes e as cidades do Porto e Vila Nova de Gaia.
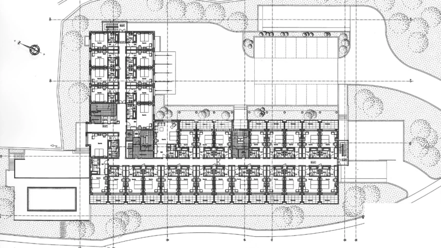
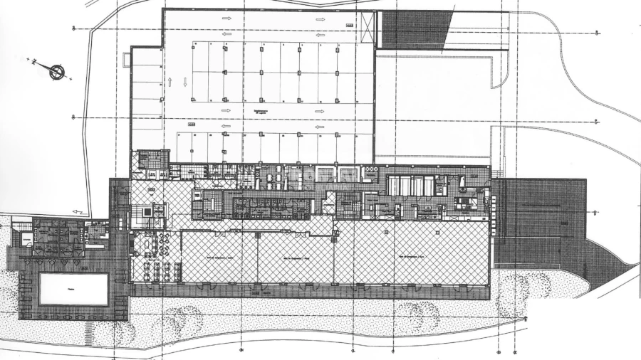
O projeto inicial do Hotel equipa-o com 80 quartos, sendo hoje possível construir mais de 100 quartos, otimizando assim o investimento.
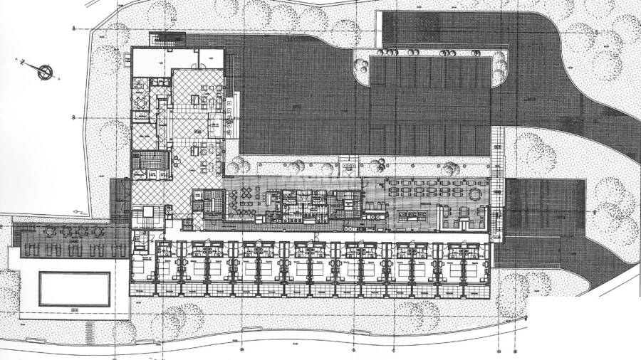
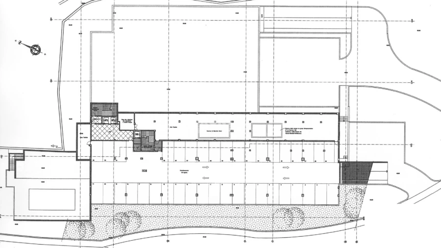
O acesso ao edifício far-se-á por um átrio descoberto, havendo lugar a uma piscina exterior.
Áreas:
• Terreno: 6 500 €;
• Implantação: 1 395 m2;
• Construção: 5 760 m2;
Pisos:
• 3 (hotelaria);
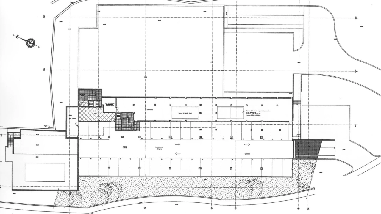
• 2 na cave (estacionamento);
Instalações Complementares:
• Bar e Piscina;
• Balneários;
• 75 lugares de estacionamento em garagem;
• 16 lugares de estacionamento exterior;
• Espaços Verdes;
Frontal, desde 1990.
Carácter e Competência.
--
A FRONTAL distingue-se pela amplitude no serviço de qualidade prestado ao cliente e encara sempre os desafios com rigor e frontalidade.
Segmento Residencial - conta com uma vasta equipa de comerciais, dinâmica e ambiciosa que tem por missão prestar um serviço de excelência, alicerçada numa vasta experiência do mercado, respeitando os mais elevados padrões de ética, descrição e integridade, contribuindo assim para o crescimento da marca e da satisfação dos seus clientes.
Apoiados por um departamento autónomo, trata de todos os processos administrativos e de financiamento acompanhando o cliente até á escritura.
Através da sua rede de Sucursais, Know-How, Dinâmica e Inovação Comercial, apoiada em ferramentas de Marketing, a Frontal responde eficazmente aos desafios que os seus clientes e parceiros possam lançar.
Segmento Empresarial - concentra-se na oferta de soluções diferenciadas a empresas e a clientes empresariais que procuram um produto dotado de um alto grau de especificidade.
Segmento Empreendimentos – tem o seu foco especializado na comercialização de Empreendimentos, contemplando um Serviço Global de Venda, apoiado numa Estratégia de Marketing e Estudo de Mercado, definindo um posicionamento claro e ajustado à dinâmica da oferta e da procura tendo como foco superar as suas expectativas.
O terreno tem 6 500 m2 e está excelentemente localizado junto ao nó de acesso da VCI ao Freixo.
Localiza-se na margem do Rio Douro e é visível da Ponte do Freixo / A20 / IP1.
Tem vista panorâmica privilegiada sobre o Rio, as Pontes e as cidades do Porto e Vila Nova de Gaia.
O projeto inicial do Hotel equipa-o com 80 quartos, sendo hoje possível construir mais de 100 quartos, otimizando assim o investimento.
O acesso ao edifício far-se-á por um átrio descoberto, havendo lugar a uma piscina exterior.
Áreas:
• Terreno: 6 500 €;
• Implantação: 1 395 m2;
• Construção: 5 760 m2;
Pisos:
• 3 (hotelaria);
• 2 na cave (estacionamento);
Instalações Complementares:
• Bar e Piscina;
• Balneários;
• 75 lugares de estacionamento em garagem;
• 16 lugares de estacionamento exterior;
• Espaços Verdes;
Frontal, desde 1990.
Carácter e Competência.
--
A FRONTAL distingue-se pela amplitude no serviço de qualidade prestado ao cliente e encara sempre os desafios com rigor e frontalidade.
Segmento Residencial - conta com uma vasta equipa de comerciais, dinâmica e ambiciosa que tem por missão prestar um serviço de excelência, alicerçada numa vasta experiência do mercado, respeitando os mais elevados padrões de ética, descrição e integridade, contribuindo assim para o crescimento da marca e da satisfação dos seus clientes.
Apoiados por um departamento autónomo, trata de todos os processos administrativos e de financiamento acompanhando o cliente até á escritura.
Através da sua rede de Sucursais, Know-How, Dinâmica e Inovação Comercial, apoiada em ferramentas de Marketing, a Frontal responde eficazmente aos desafios que os seus clientes e parceiros possam lançar.
Segmento Empresarial - concentra-se na oferta de soluções diferenciadas a empresas e a clientes empresariais que procuram um produto dotado de um alto grau de especificidade.
Segmento Empreendimentos – tem o seu foco especializado na comercialização de Empreendimentos, contemplando um Serviço Global de Venda, apoiado numa Estratégia de Marketing e Estudo de Mercado, definindo um posicionamento claro e ajustado à dinâmica da oferta e da procura tendo como foco superar as suas expectativas.
Localização
Gondomar (São Cosme), Valbom e Jovim, Gondomar, Porto
Informação do anúncio
ID do anúncio
761751
Referência Externa
FPS-30375
Atualizado em
31/10/2025 04:36:48
Anunciante
Chamada para a rede fixa nacional
Frontal Imobiliária
AMI 9590
Referência do imóvel:
FPS-30375
Terreno para Venda em Gondomar (São Cosme), Valbom e Jovim