Voltar
Terreno para Venda em Alto do Seixalinho, Santo André e Verderena Foto 1
Terreno para Venda em Alto do Seixalinho, Santo André e Verderena Foto 2
Terreno para Venda em Alto do Seixalinho, Santo André e Verderena Foto 3
Terreno para Venda em Alto do Seixalinho, Santo André e Verderena Foto 4
Terreno para Venda em Alto do Seixalinho, Santo André e Verderena Foto 5

Terreno para Venda em Alto do Seixalinho, Santo André e Verderena

250.000 €

Tipo
Terreno
Negócio
Venda
Condição
Em projecto
Certificado Energético
Isento
Área do Terreno
696 m²

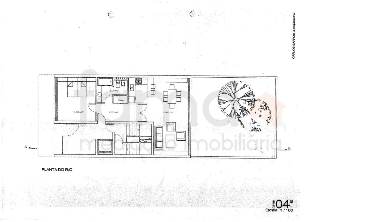
Terreno para construção 4 fogos no Barreiro

Terreno com PIP deferido pela Câmara Municipal para construção de um edifício com 4 fogos (um por piso e último em duplex), de tipologia e áreas conforme plantas aqui reproduzidas.
Área bruta de construção: 696m2 e logradouro privado para o r/c com 70m2.
O Barreiro, enquanto polo de atração para investimentos nas áreas de serviços e habitação, tem sido eleita por um grande número de população fixar a sua residência, atraída pela sua localização privilegiada, a poucos minutos da Capital e ainda pelo incremento do programa 'Pollis' que está a reabilitar e mudar radicalmente toda a frente ribeirinha com vista panorâmica para Lisboa, razões pelas quais este terreno é seguramente investimento com rentabilidade garantida.

Localização

Alto do Seixalinho, Santo André e Verderena, Barreiro, Setúbal

Informação do anúncio

ID do anúncio 811009
Referência Externa TER_2054
Atualizado em 16/12/2025 06:25:23
Fátima & Mário - Mediação Imobiliária, Lda AMI 13081
Referência do imóvel: TER_2054
Phone
Chamada para a rede fixa nacional
Fama Mediação Imobiliária
Fama Mediação Imobiliária
Phone
Chamada para a rede móvel nacional
Fátima & Mário - Mediação Imobiliária, Lda AMI 13081
Referência do imóvel: TER_2054
Phone
Chamada para a rede fixa nacional
Fama Mediação Imobiliária
Fama Mediação Imobiliária
Phone
Chamada para a rede móvel nacional
1 / 7
Terreno para Venda em Alto do Seixalinho, Santo André e Verderena Foto 1
Terreno para Venda em Alto do Seixalinho, Santo André e Verderena Foto 2
Terreno para Venda em Alto do Seixalinho, Santo André e Verderena Foto 3
Terreno para Venda em Alto do Seixalinho, Santo André e Verderena Foto 4
Terreno para Venda em Alto do Seixalinho, Santo André e Verderena Foto 5
Terreno para Venda em Alto do Seixalinho, Santo André e Verderena Foto 6
Terreno para Venda em Alto do Seixalinho, Santo André e Verderena Foto 7
Clicky