Terreno para Venda em Caparica e Trafaria
300.000 €
Tipo
Terreno
Negócio
Venda
Condição
Em projecto
Certificado Energético
Isento
Área do Terreno
667 m²
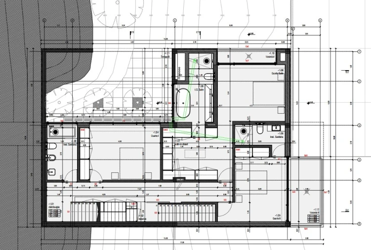
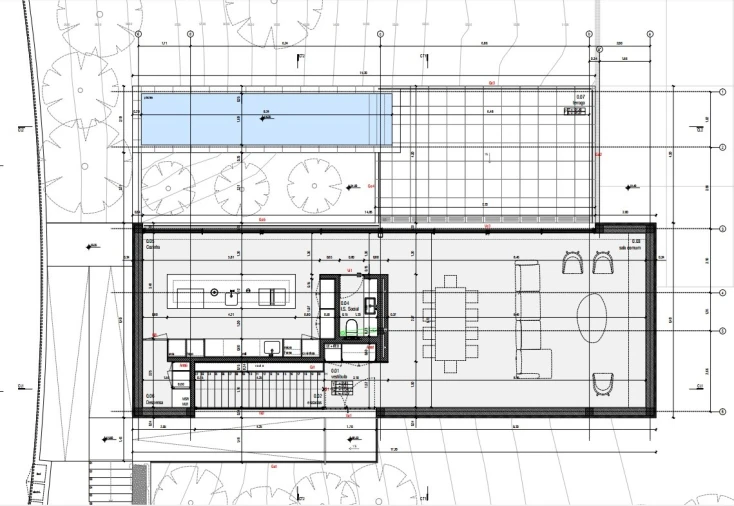
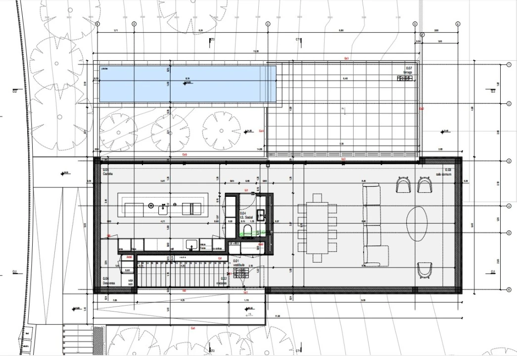
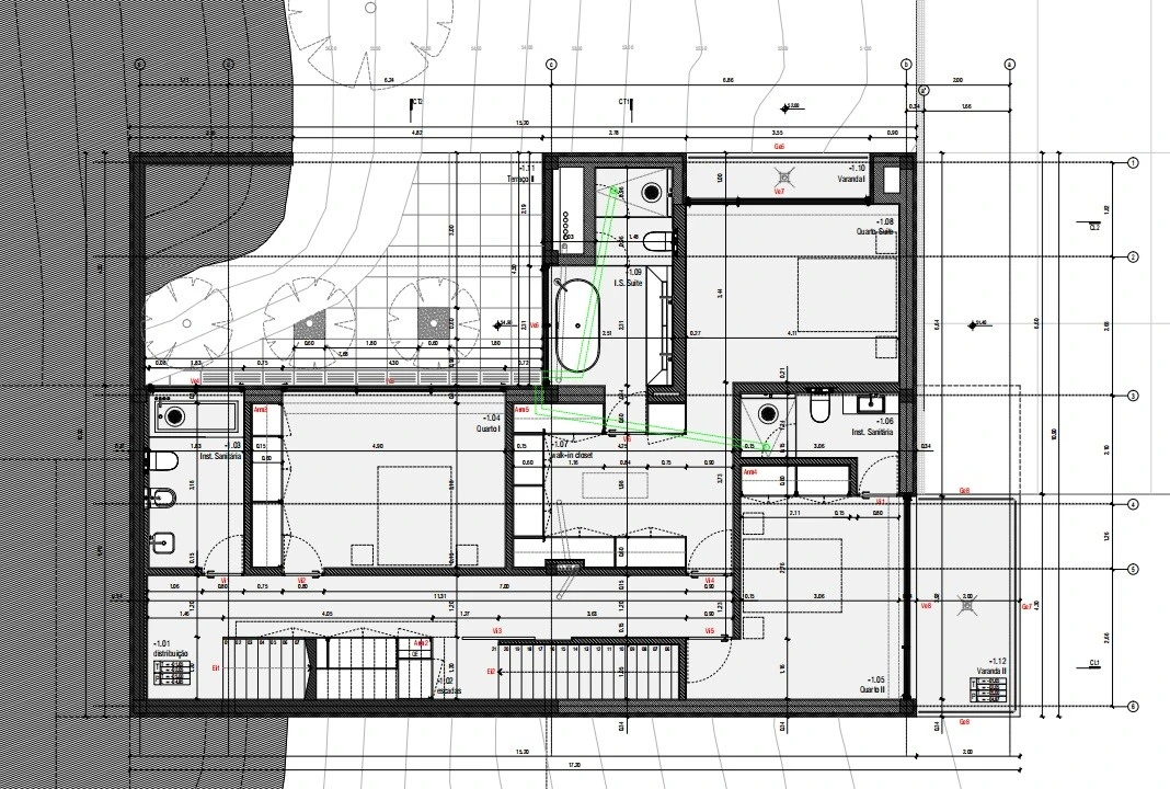
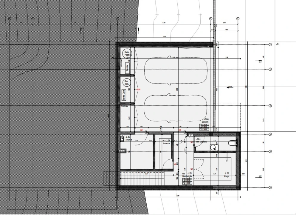
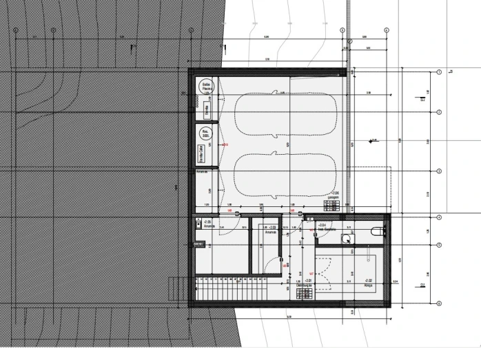
Terreno Urbano | 667m2 | c/ projecto aprovado e licenças pagas | Funchalinho
Terreno com projeto de arquitetura (recebeu um prémio) já aprovado na Câmara Municipal de Almada com uma área total de 667m2.
Possui:
- Licenças pagas, inclusive a licença de construção;
- Pronto a iniciar a construção;
- Desmatação e marcação topográfica realizadas;
Terreno de boas dimensões, localizado numa zona calma, com outras moradias familiares e zonas de vegetação.
Próximo de pontos de interesse, supermercados, praias, Fórum de Almada e colégios. Acessos próximos, via rápida, A2 e A33.
Superfície total do terreno 667 m²
Superfície edificável 280 m²
Acesso via urbana.
Equipamentos:
- Água
- Eletricidade
- Saneamento básico
A VIVER NAS ONDAS é uma imobiliária com 19 anos de experiência que também atua como INTERMEDIÁRIA de CRÉDITO, devidamente autorizada pelo Banco de Portugal (Reg. 3151).
A nossa equipa é composta por profissionais apaixonados e dedicados, prontos para tornar os seus sonhos em realidade.
Assumimos a responsabilidade de cuidar de todo o processo de financiamento, caso necessite, proporcionando-lhe tranquilidade e segurança. Estamos empenhados em encontrar as melhores soluções de crédito habitação disponíveis no mercado, e trabalhamos incansavelmente para alcançar esse objetivo.
Cuidamos de todos os detalhes do processo, desde a análise das suas necessidades financeiras até a apresentação das opções de financiamento mais adequadas ao seu perfil.
A nossa missão é oferecer um serviço de excelência, colocando os seus interesses em primeiro lugar. Trabalhamos com empenho e dedicação para tornar o processo de obtenção de crédito habitação mais simples e eficaz para si.
Possui:
- Licenças pagas, inclusive a licença de construção;
- Pronto a iniciar a construção;
- Desmatação e marcação topográfica realizadas;
Terreno de boas dimensões, localizado numa zona calma, com outras moradias familiares e zonas de vegetação.
Próximo de pontos de interesse, supermercados, praias, Fórum de Almada e colégios. Acessos próximos, via rápida, A2 e A33.
Superfície total do terreno 667 m²
Superfície edificável 280 m²
Acesso via urbana.
Equipamentos:
- Água
- Eletricidade
- Saneamento básico
A VIVER NAS ONDAS é uma imobiliária com 19 anos de experiência que também atua como INTERMEDIÁRIA de CRÉDITO, devidamente autorizada pelo Banco de Portugal (Reg. 3151).
A nossa equipa é composta por profissionais apaixonados e dedicados, prontos para tornar os seus sonhos em realidade.
Assumimos a responsabilidade de cuidar de todo o processo de financiamento, caso necessite, proporcionando-lhe tranquilidade e segurança. Estamos empenhados em encontrar as melhores soluções de crédito habitação disponíveis no mercado, e trabalhamos incansavelmente para alcançar esse objetivo.
Cuidamos de todos os detalhes do processo, desde a análise das suas necessidades financeiras até a apresentação das opções de financiamento mais adequadas ao seu perfil.
A nossa missão é oferecer um serviço de excelência, colocando os seus interesses em primeiro lugar. Trabalhamos com empenho e dedicação para tornar o processo de obtenção de crédito habitação mais simples e eficaz para si.
Localização
Caparica e Trafaria, Almada, Setúbal
Informação do anúncio
ID do anúncio
813040
Referência Externa
PM-954
Atualizado em
21/05/2026 07:23:55
Anunciante
Chamada para a rede móvel nacional
Viver Nas Ondas - Mediação Imobiliária, Lda
AMI 7530
Referência do imóvel:
PM-954
Terreno para Venda em Caparica e Trafaria
Vídeo