Terreno para Venda em Albufeira e Olhos de Água
8.150.000 €
Tipo
Terreno
Negócio
Venda
Área Bruta
41000 m²
Área Útil
25060 m²
Condição
Em projecto
Lote de terreno para exploração Turística/Comercial , Wellness Spa num Resort para constru
Neste terreno será desenvolvido um Wellness Resort dividido em duas áreas principais. Os dois edifícios a leste se concentrarão mais na saúde e no bem-estar do resort. Eles terão recepção e outras facilidades comuns, mas também contarão com uma clínica especializada em rejuvenescimento totalmente equipada.
Os dois edifícios oeste terão uma sensação mais relaxante e apropriada para famílias. A ala oeste também terá acesso ao centro de bem-estar e outras instalações comuns.
Wellness Apartments
É proposta a localização de um Resort de Bem-Estar, com 'Residências Assistidas' e 'Residências Turísticas'
Restauração & Supermercado
Zona de apoio à urbanização com a criação de um prédio com dois pisos de areia com cerca de 1.617m² de área construída acima do solo e lugar de estacionamento na cave.
Hotel
Resort constituído por um Aparthotel de 4 estrelas com 124 Unidades de alojamento entre T1 e T2, com áreas de 84m² e 118m².
Village Two
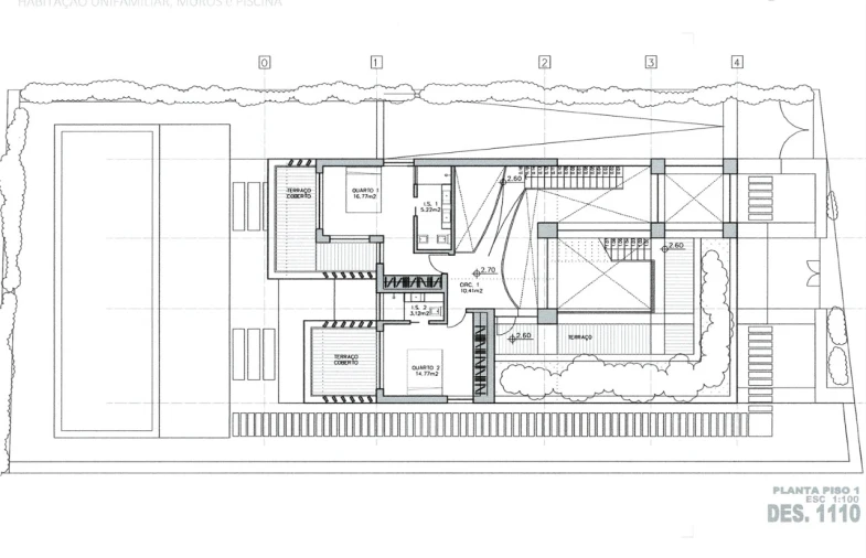
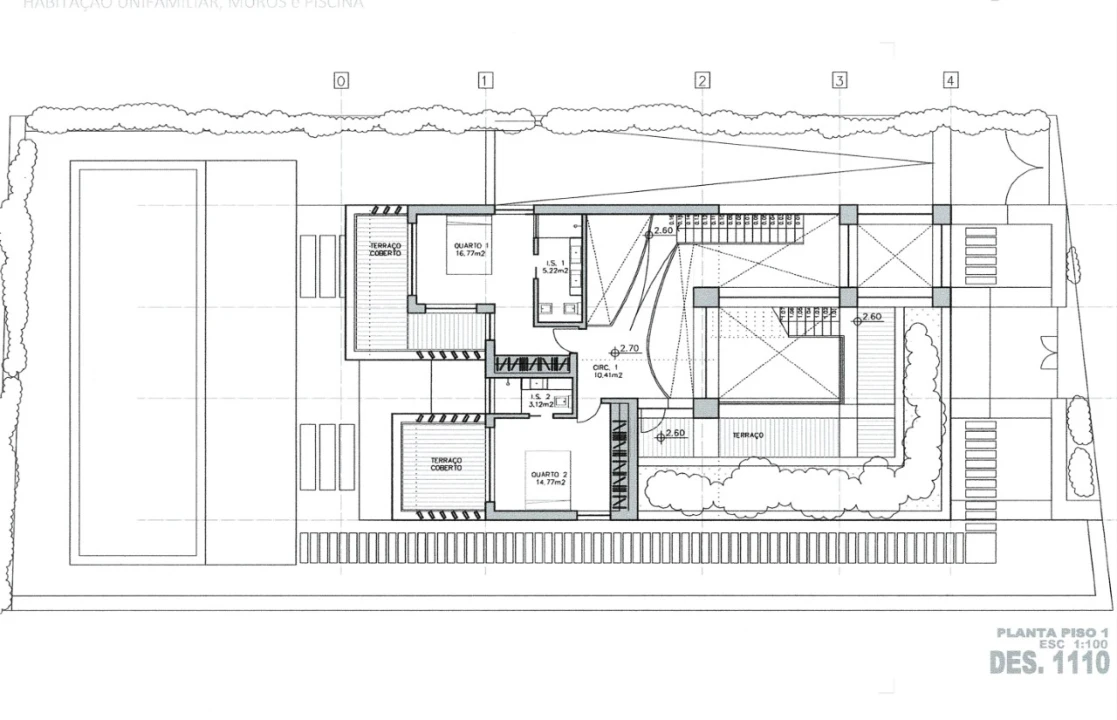
Composta por 20 moradias geminadas de dois pisos em tipologia T3, terá as moradias implantadas em anfiteatro orientadas para o núcleo central constituído pela piscina e zonas envolventes.
Villas exclusivas
Estas são compostas por moradias turísticas de tipologia T3 que, mantendo a volumetria da envolvente, apresentam áreas de construção que variam entre os 200m² .
O Resort tem previsto a construção das seguintes instalações e equipamentos para usufruto dos clientes e proprietários:
SPA & Rejuvenation Clinic, Fitness Center, , Paddle Courts, Horse Riding Center, Supermarket, Restaurants & Bars, .
Segurança 24h
Os dois edifícios oeste terão uma sensação mais relaxante e apropriada para famílias. A ala oeste também terá acesso ao centro de bem-estar e outras instalações comuns.
Wellness Apartments
É proposta a localização de um Resort de Bem-Estar, com 'Residências Assistidas' e 'Residências Turísticas'
Restauração & Supermercado
Zona de apoio à urbanização com a criação de um prédio com dois pisos de areia com cerca de 1.617m² de área construída acima do solo e lugar de estacionamento na cave.
Hotel
Resort constituído por um Aparthotel de 4 estrelas com 124 Unidades de alojamento entre T1 e T2, com áreas de 84m² e 118m².
Village Two
Composta por 20 moradias geminadas de dois pisos em tipologia T3, terá as moradias implantadas em anfiteatro orientadas para o núcleo central constituído pela piscina e zonas envolventes.
Villas exclusivas
Estas são compostas por moradias turísticas de tipologia T3 que, mantendo a volumetria da envolvente, apresentam áreas de construção que variam entre os 200m² .
O Resort tem previsto a construção das seguintes instalações e equipamentos para usufruto dos clientes e proprietários:
SPA & Rejuvenation Clinic, Fitness Center, , Paddle Courts, Horse Riding Center, Supermarket, Restaurants & Bars, .
Segurança 24h
Localização
Albufeira e Olhos de Água, Albufeira, Faro
Informação do anúncio
ID do anúncio
832772
Referência Externa
LT-012
Atualizado em
28/04/2026 02:17:36
Terreno para Venda em Albufeira e Olhos de Água