Terreno para Venda em Currelos, Papízios e Sobral
25.000 €
Tipo
Terreno
Negócio
Venda
Condição
Não aplicável
Certificado Energético
Área do Terreno
507 m²
Lote de Terreno Venda em Currelos, Papízios e Sobral,Carregal do Sal
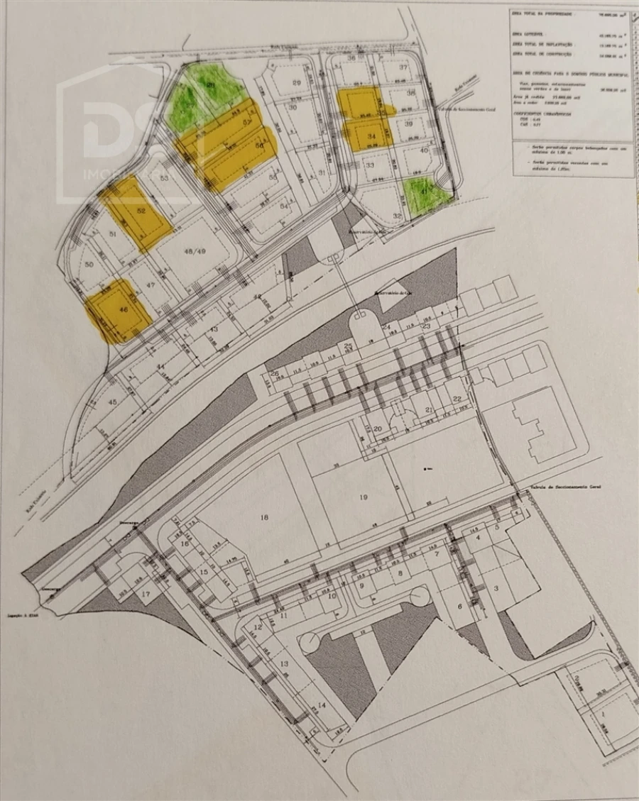
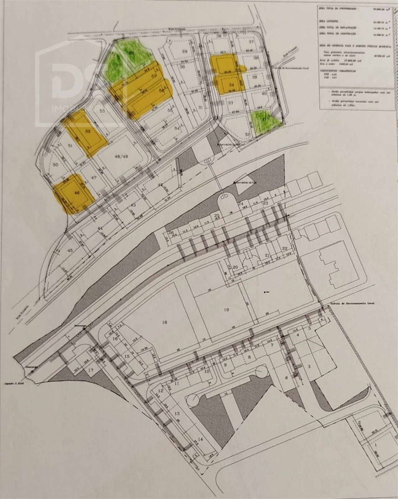
O lote de terreno em questão encontra-se localizado no centro da Vila de Carregal do Sal, uma zona tranquila e bem servida de serviços e infraestruturas. Com uma área total de 507 m², oferece uma excelente oportunidade para a construção de habitação, seja para uma moradia unifamiliar ou para o desenvolvimento de um pequeno projeto habitacional.
O terreno é plano, o que facilita a construção, e tem acesso direto a vias principais da vila, o que garante boa mobilidade e proximidade a escolas, comércios, centros de saúde e outros serviços essenciais. A área envolvente é caracterizada por zonas residenciais, proporcionando um ambiente calmo e familiar, ao mesmo tempo que mantém a conveniência de estar no centro da vila.
Além disso, o lote apresenta uma boa exposição solar, o que poderá ser vantajoso para maximizar a eficiência energética do projeto de construção. A infraestrutura de abastecimento de água, saneamento e eletricidade já está disponível na área, o que simplifica o processo de construção.
Carregal do Sal é uma vila com tradição e boa qualidade de vida, e o terreno oferece a possibilidade de aproveitar a sua localização estratégica, com fácil acesso às principais cidades da região, como Viseu, e ainda proximidade à natureza, ideal para quem busca equilíbrio entre a vida urbana e o sossego do campo.
Em resumo, este lote de terreno com 507 m² oferece um grande potencial para quem pretende construir uma residência no coração de Carregal do Sal, com todas as comodidades de uma zona central, sem perder o charme e a tranquilidade de uma vila do interior.
O terreno é plano, o que facilita a construção, e tem acesso direto a vias principais da vila, o que garante boa mobilidade e proximidade a escolas, comércios, centros de saúde e outros serviços essenciais. A área envolvente é caracterizada por zonas residenciais, proporcionando um ambiente calmo e familiar, ao mesmo tempo que mantém a conveniência de estar no centro da vila.
Além disso, o lote apresenta uma boa exposição solar, o que poderá ser vantajoso para maximizar a eficiência energética do projeto de construção. A infraestrutura de abastecimento de água, saneamento e eletricidade já está disponível na área, o que simplifica o processo de construção.
Carregal do Sal é uma vila com tradição e boa qualidade de vida, e o terreno oferece a possibilidade de aproveitar a sua localização estratégica, com fácil acesso às principais cidades da região, como Viseu, e ainda proximidade à natureza, ideal para quem busca equilíbrio entre a vida urbana e o sossego do campo.
Em resumo, este lote de terreno com 507 m² oferece um grande potencial para quem pretende construir uma residência no coração de Carregal do Sal, com todas as comodidades de uma zona central, sem perder o charme e a tranquilidade de uma vila do interior.
Localização
Currelos, Papízios e Sobral, Carregal do Sal, Viseu
Informação do anúncio
ID do anúncio
834740
Referência Externa
DSIVISEU264
Atualizado em
10/04/2026 12:36:17
Anunciante
Chamada para a rede fixa nacional
DS IMOBILIÁRIA VISEU
AMI 21081
Referência do imóvel:
DSIVISEU264
Terreno para Venda em Currelos, Papízios e Sobral