Voltar
Prédio para Venda em Ericeira Foto 1
Prédio para Venda em Ericeira Foto 2
Prédio para Venda em Ericeira Foto 3
Prédio para Venda em Ericeira Foto 4
Prédio para Venda em Ericeira Foto 5

Prédio para Venda em Ericeira

2.350.000 €

Tipo
Prédio
Negócio
Venda
Área Bruta
224 m²
Área Útil
194 m²
Condição
Usado
Certificado Energético
E

Prédio no Centro da Vila da Ericeira com Vista de Mar

Descubra um prédio com vista de mar, localizado em uma posição privilegiada no coração da encantadora Vila da Ericeira.

Este imóvel único combina a possibilidade de iniciar um negócio vibrante com a oportunidade de habitação, oferecendo versatilidade e um toque de exclusividade. Pode ainda, anexar todos os pisos e criar a sua habitação de sonho.

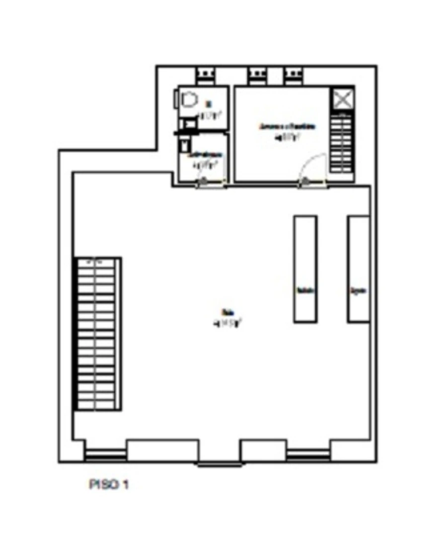
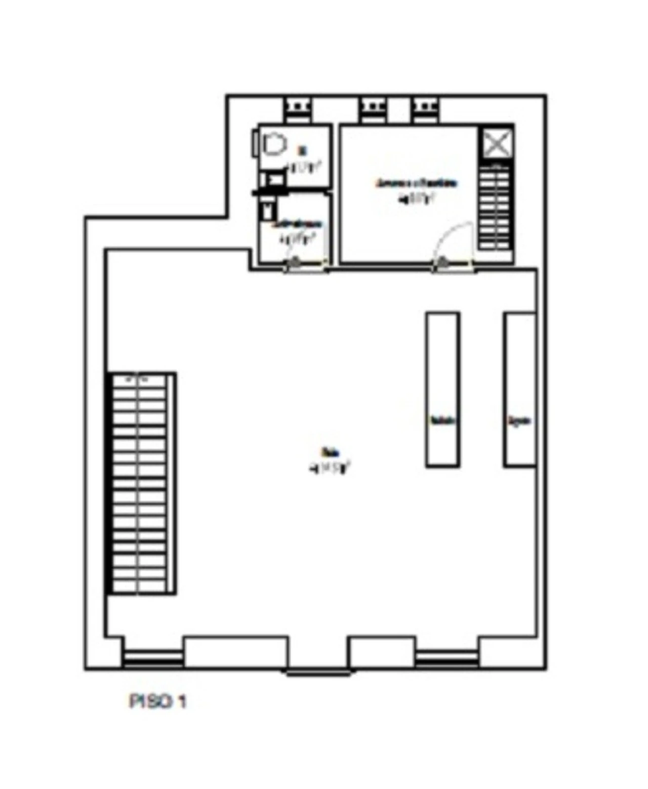
Com uma área útil de 194 m², o prédio está distribuído da seguinte forma:

- Rés-do-Chão: Espaço com afetação para comércio, ideal para iniciar o seu negócio, garantindo alta visibilidade e fluxo de clientes.

- Piso Superior: Apartamento de tipologia T2, perfeito para uma habitação confortável, com um hall de entrada, uma cozinha/sala em open space, dois quartos, uma varanda e uma casa de banho.

- Sótão: Oferece um espaço adicional que pode ser adaptado conforme as suas necessidades.

O imóvel possui um projeto de renovação aprovado, conforme as plantas anexas, permitindo a personalização e modernização do espaço conforme o seu gosto.

Oportunidade Imperdível:

Esta é uma excelente oportunidade para investidores interessados em imóveis que combinam espaço comercial e residencial. Com a sua localização central e vista de mar, este prédio oferece uma combinação única de funcionalidade e charme.


Não perca esta oportunidade de investir num imóvel com potencial único, localizado na vibrante e pitoresca Vila da Ericeira.

Agende a sua visita hoje mesmo com a Live in Ericeira e descubra o potencial deste imóvel excepcional! Para mais informações, entre em contato conosco.


Deixe o seu crédito nas nossas mãos, somos intermediários certificados pelo Banco de Portugal e garantimos as melhores soluções financeiras para si.

*As informações apresentadas neste anúncio são de natureza meramente informativa não podendo ser consideradas vinculativas, não dispensa a consulta e confirmação das mesmas junto da mediadora.

Localização

Ericeira, Mafra, Lisboa

Informação do anúncio

ID do anúncio 838536
Referência Externa 9168AA
Atualizado em 14/02/2026 00:58:58
Live In Imobiliária AMI 9871
Referência do imóvel: 9168AA
Phone
Chamada para a rede fixa nacional
Live In Imobiliária AMI 9871
Referência do imóvel: 9168AA
Phone
Chamada para a rede fixa nacional
1 / 41
Prédio para Venda em Ericeira Foto 1
Prédio para Venda em Ericeira Foto 2
Prédio para Venda em Ericeira Foto 3
Prédio para Venda em Ericeira Foto 4
Prédio para Venda em Ericeira Foto 5
Prédio para Venda em Ericeira Foto 6
Prédio para Venda em Ericeira Foto 7
Prédio para Venda em Ericeira Foto 8
Prédio para Venda em Ericeira Foto 9
Prédio para Venda em Ericeira Foto 10
Prédio para Venda em Ericeira Foto 11
Prédio para Venda em Ericeira Foto 12
Prédio para Venda em Ericeira Foto 13
Prédio para Venda em Ericeira Foto 14
Prédio para Venda em Ericeira Foto 15
Prédio para Venda em Ericeira Foto 16
Prédio para Venda em Ericeira Foto 17
Prédio para Venda em Ericeira Foto 18
Prédio para Venda em Ericeira Foto 19
Prédio para Venda em Ericeira Foto 20
Prédio para Venda em Ericeira Foto 21
Prédio para Venda em Ericeira Foto 22
Prédio para Venda em Ericeira Foto 23
Prédio para Venda em Ericeira Foto 24
Prédio para Venda em Ericeira Foto 25
Prédio para Venda em Ericeira Foto 26
Prédio para Venda em Ericeira Foto 27
Prédio para Venda em Ericeira Foto 28
Prédio para Venda em Ericeira Foto 29
Prédio para Venda em Ericeira Foto 30
Prédio para Venda em Ericeira Foto 31
Prédio para Venda em Ericeira Foto 32
Prédio para Venda em Ericeira Foto 33
Prédio para Venda em Ericeira Foto 34
Prédio para Venda em Ericeira Foto 35
Prédio para Venda em Ericeira Foto 36
Prédio para Venda em Ericeira Foto 37
Prédio para Venda em Ericeira Foto 38
Prédio para Venda em Ericeira Foto 39
Prédio para Venda em Ericeira Foto 40
Prédio para Venda em Ericeira Foto 41
Planta 1 / 4
Prédio para Venda em Ericeira Planta 1
Prédio para Venda em Ericeira Planta 2
Prédio para Venda em Ericeira Planta 3
Prédio para Venda em Ericeira Planta 4
Clicky