Terreno Comércio / Armazém para Venda em Sado
1.225.000 €
Tipo
Terreno Comércio / Armazém
Negócio
Venda
Área Bruta
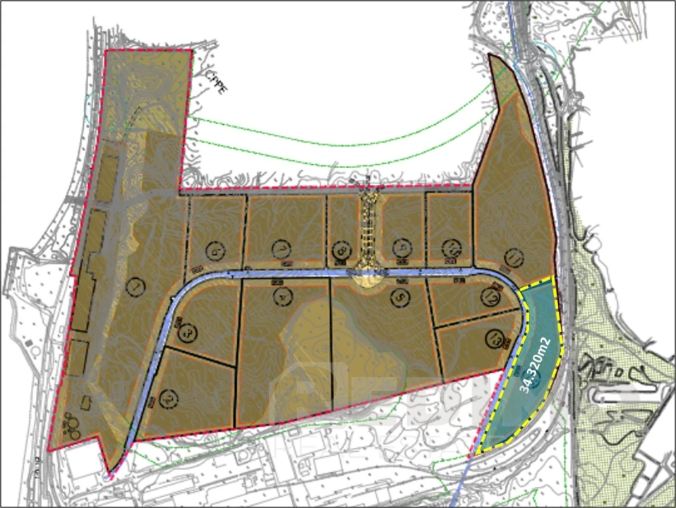
34320 m²
Condição
Não Aplicável
Área do Terreno
34320 m²
TERRENO INDUSTRIAL 34.320m2
O Parque Industrial 'SAPEC BAY' está localizado na Península de Setúbal, na Herdade das Praias.
O imóvel insere-se numa zona industrial perto da Central Termoeléctrica de Setúbal, caracterizada pela
presença de armazéns e industria, nomeadamente as instalações da Sapec na proximidade imediata, bem
como de algumas actividades industriais de grande dimensão, onde se destaca a Alstom, Portucel,
Setenave, Porto de Setúbal e uma envolvente mais distante diversificada, contando com áreas residenciais
nas Praias Sado, Manteigadas e o Politécnico de Setúbal.
A rede viária garante uma grande proximidade aos eixos de circulação local, regional e nacional,
encontrando-se igualmente próxima da via-férrea.
Dadas as características e implantação de indústrias, a zona é ponto de passagem de veículos ligeiros e
pesados.
Em termos de desenvolvimento urbanístico, trata-se de uma zona industrial estabilizada, existindo parcelas
de terreno sem ocupação perto dos imóveis. O local beneficia de bons acessos rodoviários, encontrandose a cerca de 5km da EN10 e 8km da A12.
A estação ferroviária de Praias - Sado localiza-se a cerca de 3kms. Existe ainda um ramal ferroviário que
serve o parque industrial, bem como um cais portuário.
O estacionamento em superfície processa-se sem dificuldade à entrada dos lotes através de espaços
destinados a esse fim. O local dispõe igualmente de zonas de parqueamento de veículos pesados.
O imóvel insere-se numa zona industrial perto da Central Termoeléctrica de Setúbal, caracterizada pela
presença de armazéns e industria, nomeadamente as instalações da Sapec na proximidade imediata, bem
como de algumas actividades industriais de grande dimensão, onde se destaca a Alstom, Portucel,
Setenave, Porto de Setúbal e uma envolvente mais distante diversificada, contando com áreas residenciais
nas Praias Sado, Manteigadas e o Politécnico de Setúbal.
A rede viária garante uma grande proximidade aos eixos de circulação local, regional e nacional,
encontrando-se igualmente próxima da via-férrea.
Dadas as características e implantação de indústrias, a zona é ponto de passagem de veículos ligeiros e
pesados.
Em termos de desenvolvimento urbanístico, trata-se de uma zona industrial estabilizada, existindo parcelas
de terreno sem ocupação perto dos imóveis. O local beneficia de bons acessos rodoviários, encontrandose a cerca de 5km da EN10 e 8km da A12.
A estação ferroviária de Praias - Sado localiza-se a cerca de 3kms. Existe ainda um ramal ferroviário que
serve o parque industrial, bem como um cais portuário.
O estacionamento em superfície processa-se sem dificuldade à entrada dos lotes através de espaços
destinados a esse fim. O local dispõe igualmente de zonas de parqueamento de veículos pesados.
Localização
Sado, Setúbal, Setúbal
Informação do anúncio
ID do anúncio
872102
Referência Externa
1286-TRI
Atualizado em
12/11/2025 11:26:49
Anunciante
Chamada para a rede móvel nacional
Redimo Real Estate
AMI 16183
Referência do imóvel:
1286-TRI
Terreno Comércio / Armazém para Venda em Sado