Terreno para Venda em Ferreiras
7.500.000 €
Tipo
Terreno
Negócio
Venda
Área Bruta
14435 m²
Área Útil
12193 m²
Condição
Em projecto
Certificado Energético
Isento
Área do Terreno
31990 m²
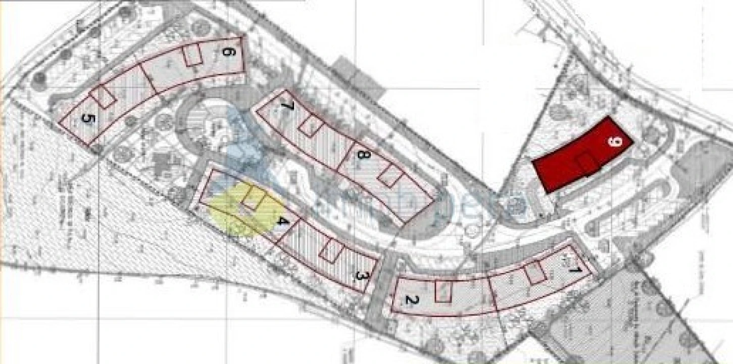
LOTEAMENTO PARA CONSTRUÇÃO DE 170 FOGOS - FERREIRAS
Bem no centro da Vila de Ferreiras, a poucos minutos de Albufeira, perto de todo o tipo de os bens e serviços.
Loteamento Habitacional constituído por 9 Lotes para a construção de 170 fogos de várias tipologias:
112 Apartamentos T1;
38 Apartamentos T2;
20 Apartamentos T3;
193 Lugares de estacionamento privados;
90 Lugares de estacionamento públicos;
1 Health Club;
Os lotes 1; 2; 3; 4; 6; 7 terão 3 pisos, os lotes 5 e 8 terão 2 pisos e o lote 9 tem previsto para o rés do chão o Health Club.
PONTOS DE INTERESSE:
Escola/Creche (1,5km), Infantário (600mts), Mercado (1,1km), Farmácia (1,2km), CTT (1,9km), Supermercado (300mts), Restaurantes (1km), Bares (1km), Estação Ferroviária (400mts), Algarve Shopping (3,6km), Praia (5,5km), Centro de Albufeira (6km), Hospital (4,8km), Terminal Rodoviário Albufeira (5,9km), Golfe (10km), Autoestrada (4,3km), Aeroporto Faro (35km).
Marque já a sua visita!
Loteamento Habitacional constituído por 9 Lotes para a construção de 170 fogos de várias tipologias:
112 Apartamentos T1;
38 Apartamentos T2;
20 Apartamentos T3;
193 Lugares de estacionamento privados;
90 Lugares de estacionamento públicos;
1 Health Club;
Os lotes 1; 2; 3; 4; 6; 7 terão 3 pisos, os lotes 5 e 8 terão 2 pisos e o lote 9 tem previsto para o rés do chão o Health Club.
PONTOS DE INTERESSE:
Escola/Creche (1,5km), Infantário (600mts), Mercado (1,1km), Farmácia (1,2km), CTT (1,9km), Supermercado (300mts), Restaurantes (1km), Bares (1km), Estação Ferroviária (400mts), Algarve Shopping (3,6km), Praia (5,5km), Centro de Albufeira (6km), Hospital (4,8km), Terminal Rodoviário Albufeira (5,9km), Golfe (10km), Autoestrada (4,3km), Aeroporto Faro (35km).
Marque já a sua visita!
Localização
Ferreiras, Albufeira, Faro
Informação do anúncio
ID do anúncio
883750
Referência Externa
CP010
Atualizado em
13/05/2025 05:42:52
Consultor
Imobipêra
Terreno para Venda em Ferreiras