Voltar
Terreno para Venda em São Teotónio Foto 1
Terreno para Venda em São Teotónio Foto 2
Terreno para Venda em São Teotónio Foto 3
Terreno para Venda em São Teotónio Foto 4
Terreno para Venda em São Teotónio Foto 5

Terreno para Venda em São Teotónio

6.945.000 €

Tipo
Terreno
Negócio
Venda
Área Bruta
48015 m²
Área Útil
48015 m²
Condição
Não Aplicável
Área do Terreno
95556 m²

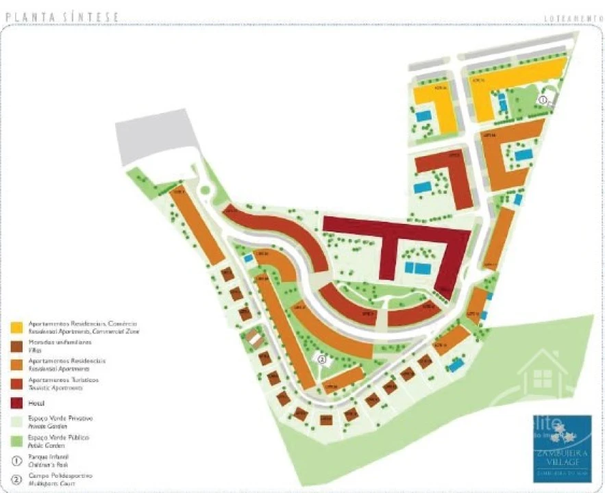
Terreno para construção de empreendimento de luxo na costa vicentina, Zambujeira do Mar

TER_10869

A cerca de 1, 5 Km do mar, na belíssima Costa Vicentina, está localizado este terreno com área total de 95.556 m2, composto por 29 lotes, com projeto de loteamento aprovado e infraestruturas, para construção de empreendimento.

O empreendimento é destinado à construção de moradias, apartamentos residenciais, apartamentos turísticos, comércio e uma unidade hoteleira:
145 fogos habitacionais, 77 unidades de alojamento, comércio e 1 unidade hoteleira com 110 unidades de alojamento/quartos

Área Total dos Lotes: 50.165m2
Nº de lotes: 29
Área bruta de construção total potencial: 48.015 m2

Distribuída da seguinte forma:
23.825 m2 para habitação
4.090 m2 para comércio
20.100 m2 para turismo
Lotes situados junto à povoação de Zambujeira do Mar, a nascente, junto ao limite do perímetro urbano. Trata-se de uma urbanização cujas infraestruturas estão já realizadas (já houve receção provisória por parte da autarquia), mas não existe ainda qualquer construção. Tem um enquadramento paisagístico bom, alguns lotes têm vista para o mar.
A costa de Zambujeira do Mar, integrada no Parque Natural do Sudoeste Alentejano e Costa Vicentina, é debruada a falésias e pequenas praias que, fora da época alta turística, são verdadeiros paraísos.
Destacam-se, além da praia central da Zambujeira, (bastante popular para a prática do bodyboard), as praias dos Alteirinhos, Nossa Senhora, Arquinha e Tonel.

A principal actividade é o turismo, mas são também relevantes a agricultura, a pecuária e a pesca, albergando um dos quatro portos do concelho (chamado de Entrada da Barca).

Para além das magníficas praias, e da saborosa cozinha típica alentejana, outra das grandes atrações desta zona é sem dúvida a realização anual (em Agosto), do Festival do Sudoeste, o maior dos festivais de música de Verão do país, sediado a alguns quilómetros da aldeia.
Ainda em Agosto, no dia 15, realizam-se as festas religiosas e procissão dedicadas à padroeira local, Nossa Senhora do Mar, e no dia 29 de Agosto realiza-se a feira anual.
A colectividade da terra, a Associação Cultural e Recreativa Zambujeirense, realiza diversas actividades lúdicas, culturais e desportivas.

Marque já a sua visita!

A informação disponibilizada, ainda que precisa, não dispensa a sua confirmação nem pode ser considerada vinculativa.

Contacte-nos através do + (telefone) e + (telefone)
Veja os nossos imóveis em (url)

Localização

São Teotónio, Odemira, Beja

Informação do anúncio

ID do anúncio 909108
Referência Externa TER_10869
Atualizado em 29/10/2024 18:49:11
Imobiliária Elite AMI 9685
Referência do imóvel: TER_10869
Phone
Chamada para a rede fixa nacional
Imobiliária Elite AMI 9685
Referência do imóvel: TER_10869
Phone
Chamada para a rede fixa nacional
1 / 11
Terreno para Venda em São Teotónio Foto 1
Terreno para Venda em São Teotónio Foto 2
Terreno para Venda em São Teotónio Foto 3
Terreno para Venda em São Teotónio Foto 4
Terreno para Venda em São Teotónio Foto 5
Terreno para Venda em São Teotónio Foto 6
Terreno para Venda em São Teotónio Foto 7
Terreno para Venda em São Teotónio Foto 8
Terreno para Venda em São Teotónio Foto 9
Terreno para Venda em São Teotónio Foto 10
Terreno para Venda em São Teotónio Foto 11
Terreno para Venda em São Teotónio
Clicky