Terreno para Venda em Miragaia e Marteleira
75.000 €
Tipo
Terreno
Negócio
Venda
Condição
Em projecto
Certificado Energético
Isento
Área do Terreno
3901 m²
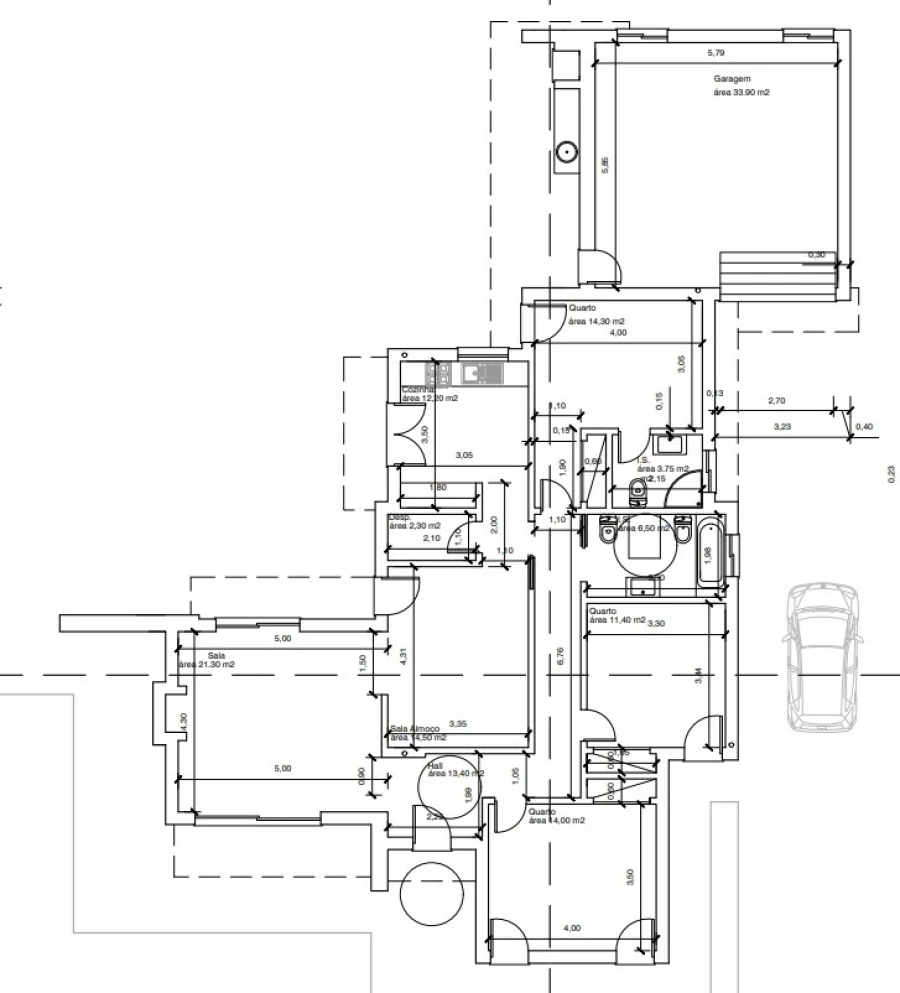
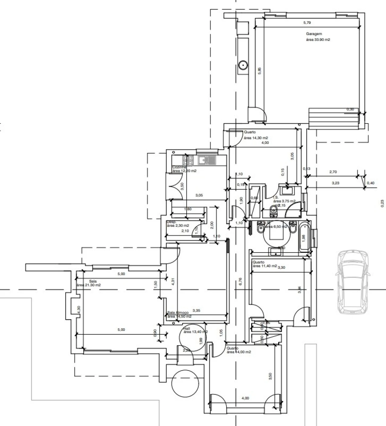
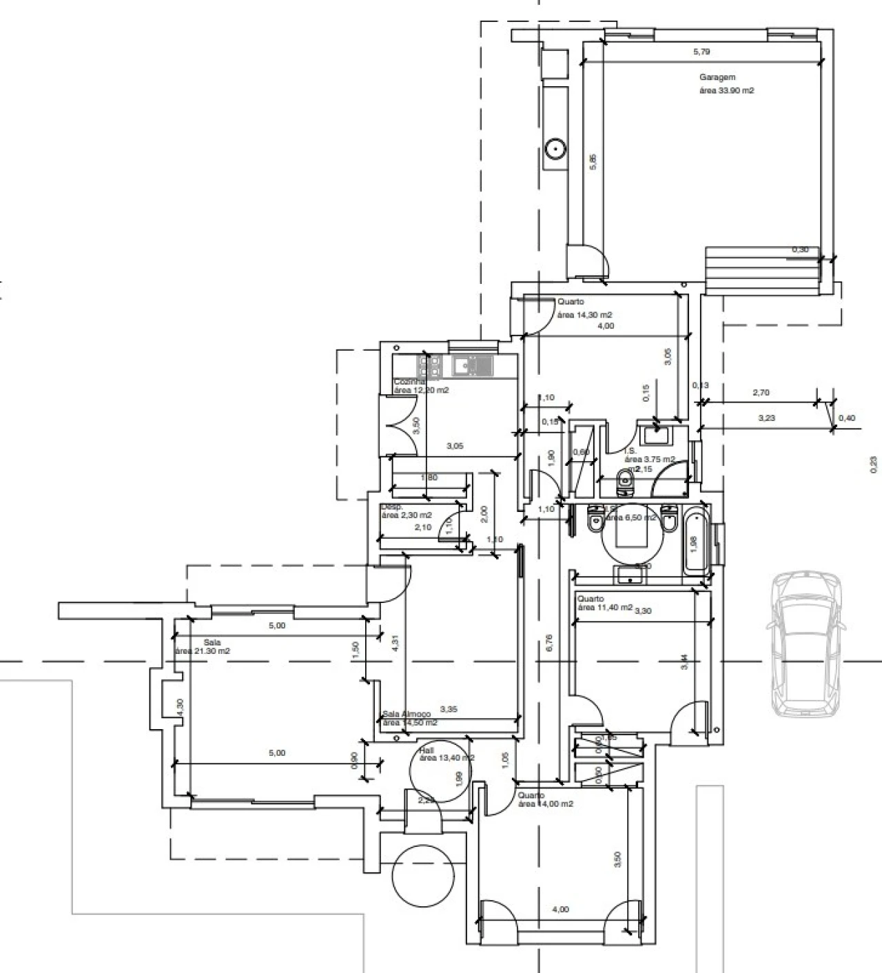
Terreno com projeto aprovado
Terreno para construção.
Localizado na Moita dos Ferreiros, a 5 minutos da entrada da A8, muito próximo do Bombarral, Lourinhã, Caldas da Rainha, Óbidos e a 40 minutos de Lisboa.
Com 3900.60 m2 de área total, dos quais 1001 m2 urbanos, com 218.35 m2 de implantação.
Tem atualmente um projeto aprovado para moradia T3, térrea com 147.55 m2 de área total.
Com licença para iniciar a construção de imediato.
Ótima oportunidade para vir construir a sua moradia de sonho, bem localizada e com qualidade de vida.
Localizado na Moita dos Ferreiros, a 5 minutos da entrada da A8, muito próximo do Bombarral, Lourinhã, Caldas da Rainha, Óbidos e a 40 minutos de Lisboa.
Com 3900.60 m2 de área total, dos quais 1001 m2 urbanos, com 218.35 m2 de implantação.
Tem atualmente um projeto aprovado para moradia T3, térrea com 147.55 m2 de área total.
Com licença para iniciar a construção de imediato.
Ótima oportunidade para vir construir a sua moradia de sonho, bem localizada e com qualidade de vida.
Localização
Miragaia e Marteleira, Lourinhã, Lisboa
Informação do anúncio
ID do anúncio
954089
Referência Externa
SÒL_312
Atualizado em
27/04/2026 03:41:11
Anunciante
Chamada para a rede móvel nacional
G.L.S. Imobiliária
AMI 18528
Referência do imóvel:
SÒL_312
Terreno para Venda em Miragaia e Marteleira