Terreno para Venda em São Mamede de Infesta e Senhora da Hora
1.100.000 €
Tipo
Terreno
Negócio
Venda
Área Bruta
1212 m²
Certificado Energético
N/A
Área do Terreno
1375 m²
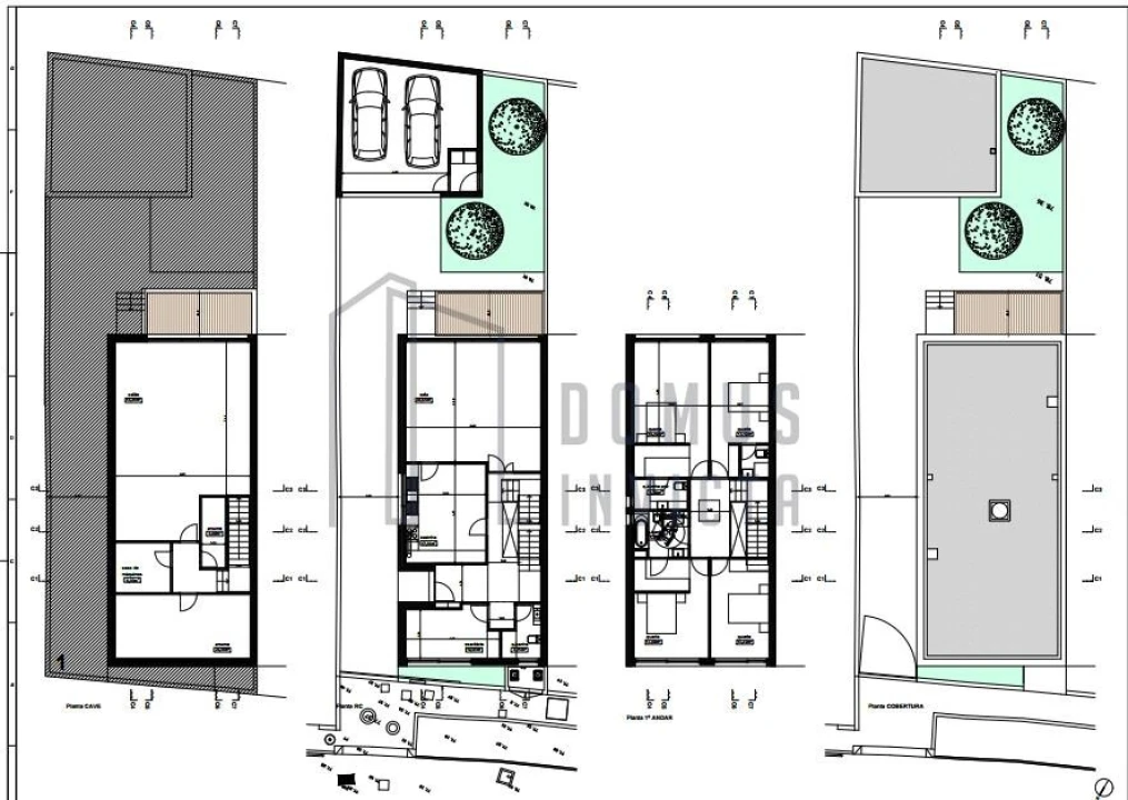
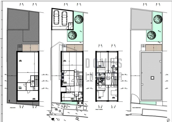
Loteamento para Moradias
Terreno destinado a construção, com Loteamento aprovado para cinco moradias unifamiliares de tipologia T4.
As obras de urbanização como os arruamentos, passeios, infraestruturas e iluminação publica encontram-se já realizadas.
Cada lote tem os projetos de arquitetura da moradia concluídos e especialidades (com mapa de quantidades) aprovadas pelas entidades competentes e estão aprovados para cave, r/c e 1º andar.
Em excelente localização (5 minutos do Norte Shopping e Metro) e bom acesso à Auto estrada.
Venda lote a lote ou o loteamento.
Excelente oportunidade!
Pronto a construir.
Contacte para mais informações!
A DOMUS INVICTA é uma agência de mediação e consultoria imobiliária com escritório na zona da Boavista, no Porto, focada na prossecução dos objetivos dos nossos clientes.
Atuamos essencialmente no segmento residencial, angariando, promovendo e comercializando imóveis de construção nova, imóveis usados, imóveis para reabilitação e terrenos para construção.
MEDIAÇÃO IMOBILIÁRIA
Focados no perfil, expectativas e objetivos dos clientes, mediamos processos de compra e venda, arrendamentos e gestão de imóveis. Utilizamos as mais modernas e eficientes ferramentas para promoção e venda de imóveis.
Prestamos o serviço de procurement imobiliário a clientes compradores.
CONSULTORIA JURÍDICA
Recorremos a conceituadas firmas de advogados que nos assessoram na nossa atividade e nos processos de compra e venda.
SOLUÇÕES DE FINANCIAMENTO
Com recurso a parceiros experientes, proporcionamos aos nossos clientes as melhores soluções de financiamento, promovendo e agilizando os processos de crédito com vista à rápida concretização dos negócios.
GESTÃO PROCESSUAL
Para que o processo de aquisição de um imóvel se desenvolva de forma ágil e transparente, encarregamo-nos da obtenção de toda a documentação necessária e acompanhamos o processo até à outorga da escritura de compra e venda.
ARQUITETURA E OBRAS
Com vista à concretização dos projetos dos clientes, trabalhamos com parceiros que prestam o aconselhamento necessário, apresentam as soluções mais viáveis, constroem, supervisionam e fiscalizam obras.
AVALIAÇÃO DE IMÓVEIS
Contamos com a colaboração de peritos certificados para a determinação do valor de mercado de um imóvel, traduzindo o seu valor na conjuntura atual, tendo em consideração, entre outros aspectos, as dinâmicas das variáveis da oferta e da procura que caracterizam o mercado imobiliário, no momento da avaliação.
O seu imóvel, o nosso compromisso!
As obras de urbanização como os arruamentos, passeios, infraestruturas e iluminação publica encontram-se já realizadas.
Cada lote tem os projetos de arquitetura da moradia concluídos e especialidades (com mapa de quantidades) aprovadas pelas entidades competentes e estão aprovados para cave, r/c e 1º andar.
Em excelente localização (5 minutos do Norte Shopping e Metro) e bom acesso à Auto estrada.
Venda lote a lote ou o loteamento.
Excelente oportunidade!
Pronto a construir.
Contacte para mais informações!
A DOMUS INVICTA é uma agência de mediação e consultoria imobiliária com escritório na zona da Boavista, no Porto, focada na prossecução dos objetivos dos nossos clientes.
Atuamos essencialmente no segmento residencial, angariando, promovendo e comercializando imóveis de construção nova, imóveis usados, imóveis para reabilitação e terrenos para construção.
MEDIAÇÃO IMOBILIÁRIA
Focados no perfil, expectativas e objetivos dos clientes, mediamos processos de compra e venda, arrendamentos e gestão de imóveis. Utilizamos as mais modernas e eficientes ferramentas para promoção e venda de imóveis.
Prestamos o serviço de procurement imobiliário a clientes compradores.
CONSULTORIA JURÍDICA
Recorremos a conceituadas firmas de advogados que nos assessoram na nossa atividade e nos processos de compra e venda.
SOLUÇÕES DE FINANCIAMENTO
Com recurso a parceiros experientes, proporcionamos aos nossos clientes as melhores soluções de financiamento, promovendo e agilizando os processos de crédito com vista à rápida concretização dos negócios.
GESTÃO PROCESSUAL
Para que o processo de aquisição de um imóvel se desenvolva de forma ágil e transparente, encarregamo-nos da obtenção de toda a documentação necessária e acompanhamos o processo até à outorga da escritura de compra e venda.
ARQUITETURA E OBRAS
Com vista à concretização dos projetos dos clientes, trabalhamos com parceiros que prestam o aconselhamento necessário, apresentam as soluções mais viáveis, constroem, supervisionam e fiscalizam obras.
AVALIAÇÃO DE IMÓVEIS
Contamos com a colaboração de peritos certificados para a determinação do valor de mercado de um imóvel, traduzindo o seu valor na conjuntura atual, tendo em consideração, entre outros aspectos, as dinâmicas das variáveis da oferta e da procura que caracterizam o mercado imobiliário, no momento da avaliação.
O seu imóvel, o nosso compromisso!
Localização
São Mamede de Infesta e Senhora da Hora, Matosinhos, Porto
Informação do anúncio
ID do anúncio
1006082
Referência Externa
DI-711E
Atualizado em
15/05/2026 23:21:45
Terreno para Venda em São Mamede de Infesta e Senhora da Hora