Terreno para Venda em Quinta Grande
800.000 €
Tipo
Terreno
Negócio
Venda
Área Bruta
10923 m²
Condição
Como novo
Certificado Energético
Em validação
Área do Terreno
10923 m²
Terreno - Cabo Girão
--------------------------------------
**** CRYPTO ACCEPTED ****
** LEGALISED BY NOTARY **
* find out more - contact us *
--------------------------------------
Terreno com 10923m2 a poucos metros do icónico miradouro do Cabo Girão
Com capacidade construtiva, aqui poderá construir um empreendimento com uma vista de cortar a respiração.
Muito versátil para executar algo do seu agrado, dada a sua dimensão, forma e posicionamento.
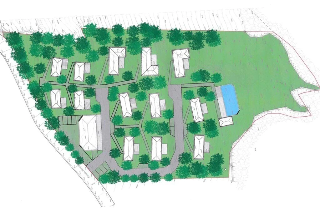
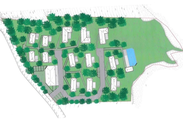
Já com um estudo de viabilidade para a construção de um aldeamento turístico.
Capacidade construtiva:
Empreendimentos turísticos
- Índice máximo de utilização do solo: 0,8 (8730,40m2);
- Índice máximo de impermeabilização do Solo: 50%
Habitação
- Índice máximo de utilização do solo: 0,5;
- Área máxima de construção: 250m2;
- Altura máxima da edificação: 8m;
- Altura máxima da fachada: 6m;
- Índice máximo de impermeabilização do Solo: 30%;
- Afastamentos laterais e a tardoz: metade da altura da fachada, com o mínimo de 3m
Não perca, contate:
Juan Figueira
+351 963 143 986
**** CRYPTO ACCEPTED ****
** LEGALISED BY NOTARY **
* find out more - contact us *
--------------------------------------
Terreno com 10923m2 a poucos metros do icónico miradouro do Cabo Girão
Com capacidade construtiva, aqui poderá construir um empreendimento com uma vista de cortar a respiração.
Muito versátil para executar algo do seu agrado, dada a sua dimensão, forma e posicionamento.
Já com um estudo de viabilidade para a construção de um aldeamento turístico.
Capacidade construtiva:
Empreendimentos turísticos
- Índice máximo de utilização do solo: 0,8 (8730,40m2);
- Índice máximo de impermeabilização do Solo: 50%
Habitação
- Índice máximo de utilização do solo: 0,5;
- Área máxima de construção: 250m2;
- Altura máxima da edificação: 8m;
- Altura máxima da fachada: 6m;
- Índice máximo de impermeabilização do Solo: 30%;
- Afastamentos laterais e a tardoz: metade da altura da fachada, com o mínimo de 3m
Não perca, contate:
Juan Figueira
+351 963 143 986
Localização
Quinta Grande, Câmara de Lobos, Ilha da Madeira
Informação do anúncio
ID do anúncio
1010080
Referência Externa
10320-2-JF
Atualizado em
01/10/2025 01:50:55
Terreno para Venda em Quinta Grande