Prédio para Venda em Agualva e Mira-Sintra
1.600.000 €
Tipo
Prédio
Negócio
Venda
Área Bruta
1216 m²
Condição
Para Obras
Certificado Energético
C
Área do Terreno
808 m²
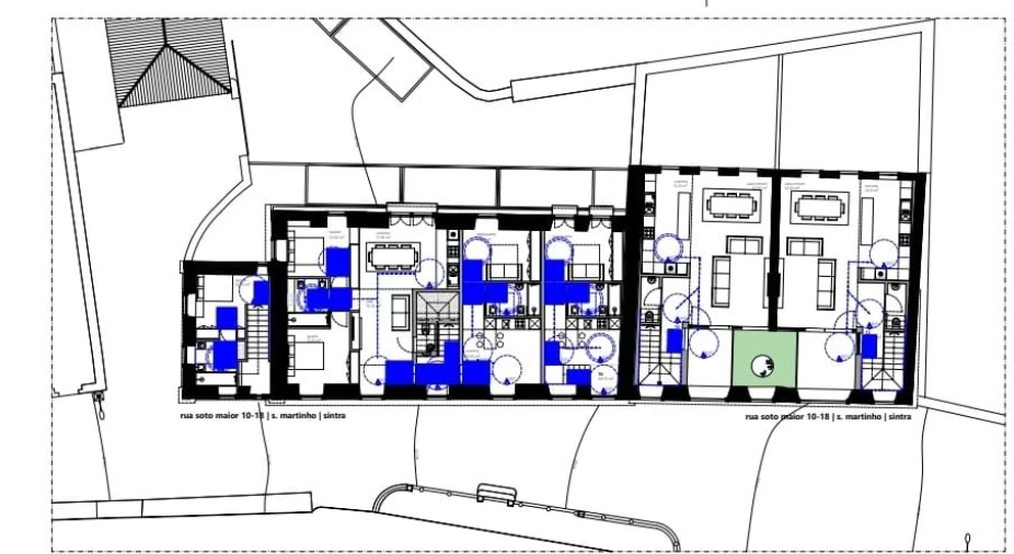
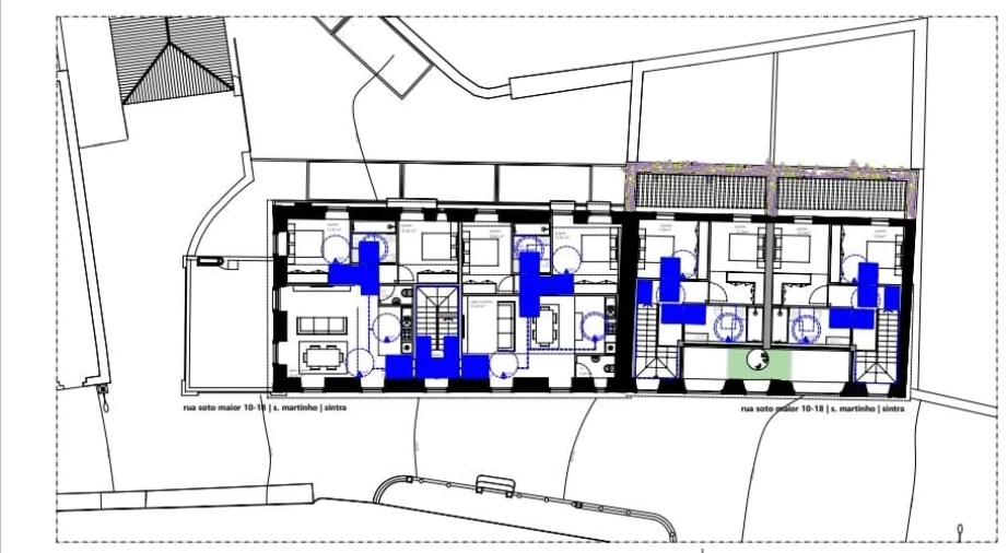
Prédio devoluto no centro histórico da Vila Sintra, projeto aprovados para 11 apartament
Este projeto é um exemplo de como arquitetura contemporânea e valorização do patrimônio podem coexistir, promovendo uma Sintra funcional e integrada sem perder seu encanto histórico.
Projeto de Requalificação no Centro Histórico de Sintra
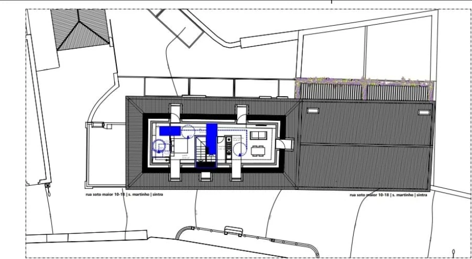
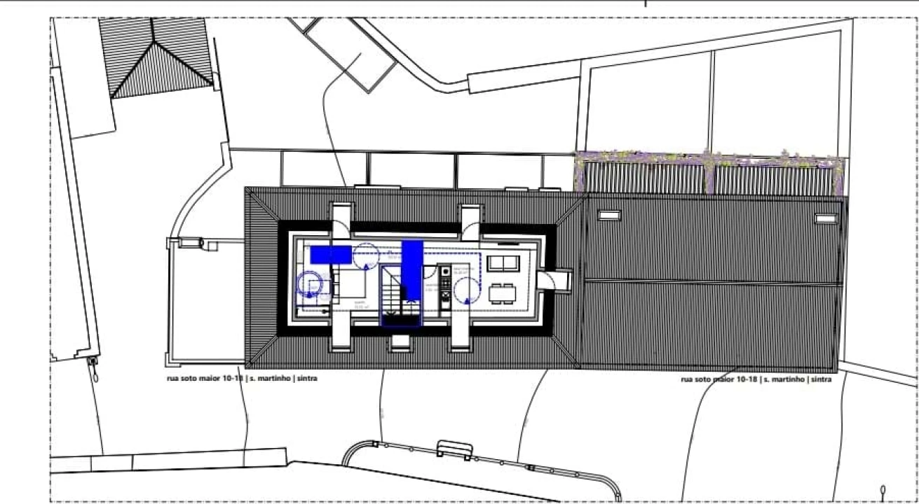
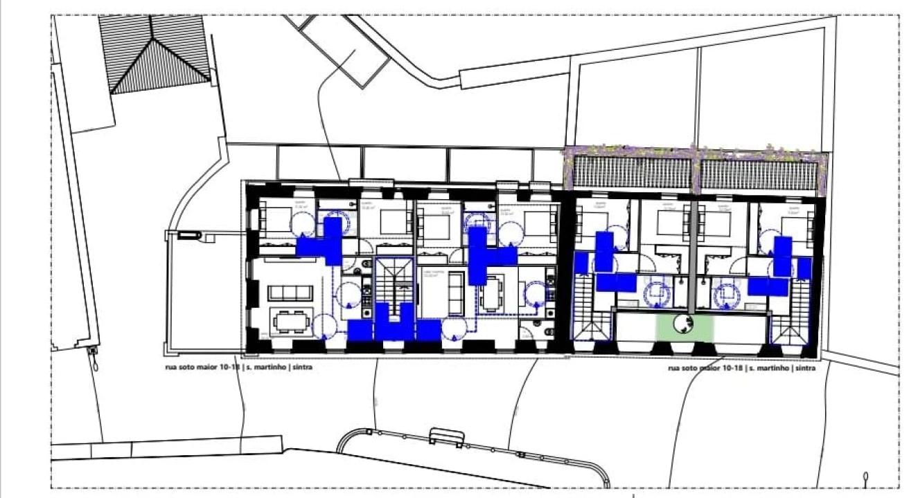
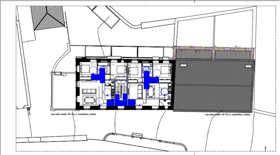
A intervenção prevê o restauro e ampliação dos edifícios existentes, com a preservação das fachadas de alvenaria de pedra e a inserção de novos elementos modernos que irão otimizar a funcionalidade e melhorar a qualidade de vida dos futuros moradores. No piso superior, será adicionada uma varanda com pérgula, oferecendo um espaço ao ar livre integrado ao ambiente, enquanto no piso térreo será criada uma cobertura de duas águas simples, respeitando a arquitetura tradicional.
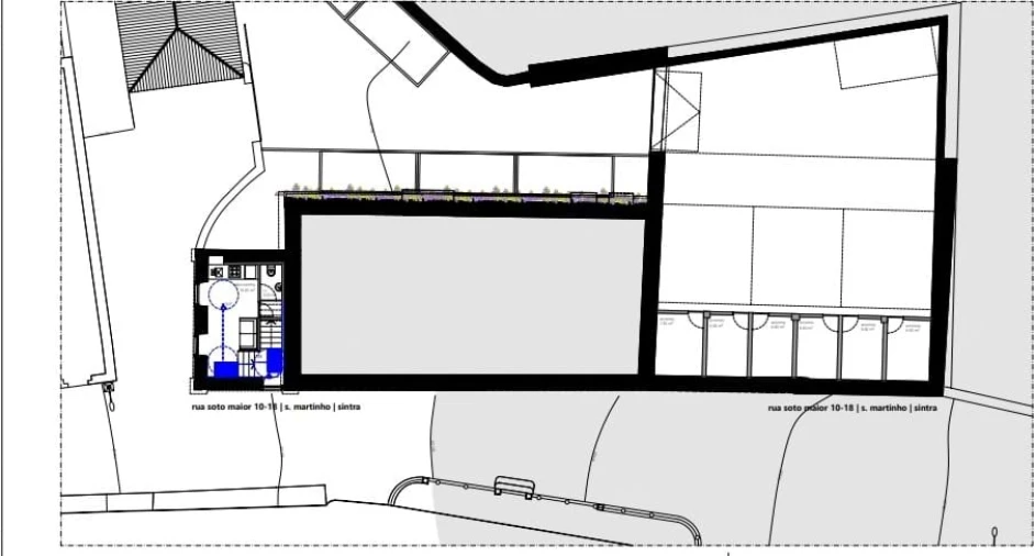
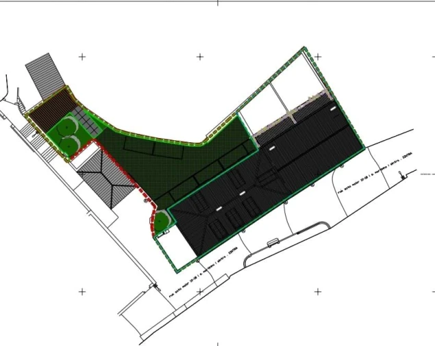
Localizado no coração do centro histórico de Sintra, este projeto envolve três edifícios voltados para a Rua Soto Maior, com um logradouro situado na parte posterior. A proposta contempla a transformação e ampliação dos imóveis, criando um edifício residencial coletivo que combina história e modernidade.
**Conceito e Intervenção**
O projeto divide-se em dois tipos de intervenção:
- **Reabilitação Profunda**: Atualização do interior dos edifícios com materiais e tecnologias modernas, preservando sua essência histórica.
- **Métodos Tradicionais**: Emprego de técnicas clássicas para garantir harmonia estética e cultural com a paisagem de Sintra.
O antigo edifício das cavalariças será transformado em um espaço habitacional composto por duas frações, integrando-se ao conjunto de forma funcional e respeitosa com sua história.
**Integração Urbana**
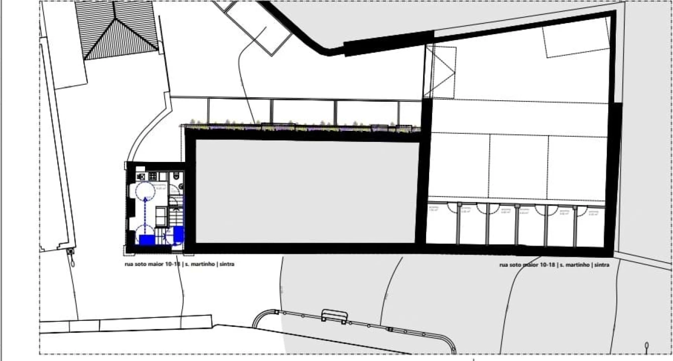
Os edifícios conectam-se de maneira fluida à Rua Soto Maior e ao logradouro posterior, acessado por uma rua lateral. O logradouro será reorganizado como um pequeno pátio, otimizando o uso dos espaços e separando funções, com foco na valorização do uso habitacional em regime de propriedade horizontal.
**Restauro e Conservação**: Preservação das fachadas principais, empenas e alinhamento da fachada posterior no rés-do-chão. Técnicas e materiais tradicionais serão utilizados para manter a identidade histórica e cultural.
- **Reconstrução e Adaptação**: Ampliação do antigo edifício térreo das cavalariças, incluindo a criação de um piso em cave para estacionamento e arrecadações. A fachada principal será mantida, reforçando o equilíbrio entre o novo e o tradicional.
A entrada para a cave, onde será instalado o estacionamento, será feita a partir do logradouro, permitindo um acesso direto e prático, sem comprometer a estética e a fluidez do espaço urbano.
A utilização de técnicas modernas em combinação com métodos tradicionais visa criar um ambiente harmônico, respeitando o legado arquitetônico da cidade e promovendo um desenvolvimento sustentável e inovador para as futuras gerações.
O projeto desenvolve-se em três núcleos distintos, demarcando-se claramente dois tipos de intervenção: uma de reabilitação profunda no seu interior, com introdução de novos materiais e tecnologias modernas, e outra utilizando as técnicas e os métodos tradicionais.
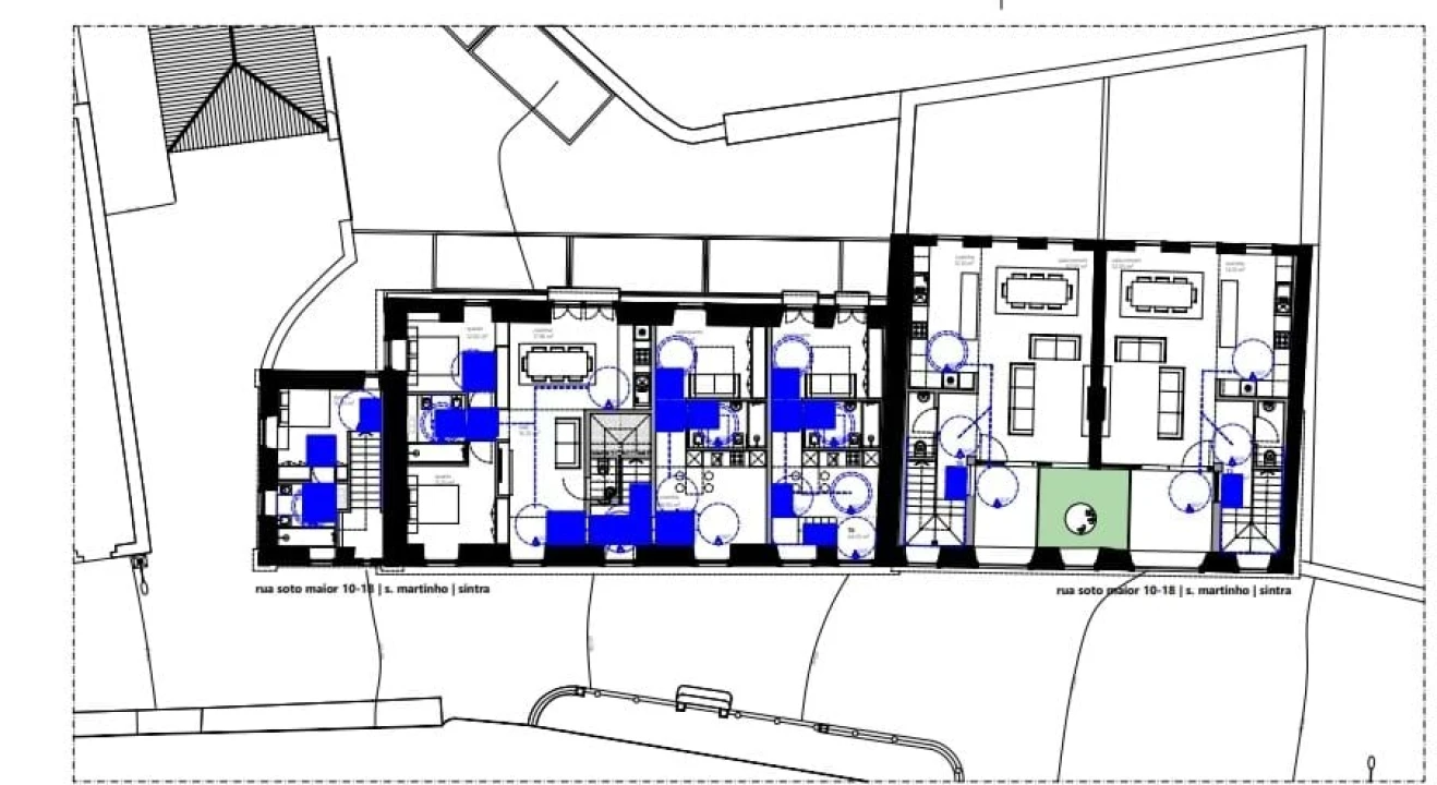
O edifício será composto por 11 apartamentos com tipologias T0, T1 e T2.
2 apartamentos T0
2 apartamentos T1
7 apartamentos T2
Cada unidade foi projetada para maximizar a luz natural e a ventilação, criando ambientes amplos e agradáveis, com foco no bem-estar dos moradores. Além disso, o projeto incorpora soluções sustentáveis, como o uso de materiais ecológicos e tecnologias de eficiência energética, alinhando-se às tendências de habitação moderna e responsável.
Projeto de Requalificação no Centro Histórico de Sintra
A intervenção prevê o restauro e ampliação dos edifícios existentes, com a preservação das fachadas de alvenaria de pedra e a inserção de novos elementos modernos que irão otimizar a funcionalidade e melhorar a qualidade de vida dos futuros moradores. No piso superior, será adicionada uma varanda com pérgula, oferecendo um espaço ao ar livre integrado ao ambiente, enquanto no piso térreo será criada uma cobertura de duas águas simples, respeitando a arquitetura tradicional.
Localizado no coração do centro histórico de Sintra, este projeto envolve três edifícios voltados para a Rua Soto Maior, com um logradouro situado na parte posterior. A proposta contempla a transformação e ampliação dos imóveis, criando um edifício residencial coletivo que combina história e modernidade.
**Conceito e Intervenção**
O projeto divide-se em dois tipos de intervenção:
- **Reabilitação Profunda**: Atualização do interior dos edifícios com materiais e tecnologias modernas, preservando sua essência histórica.
- **Métodos Tradicionais**: Emprego de técnicas clássicas para garantir harmonia estética e cultural com a paisagem de Sintra.
O antigo edifício das cavalariças será transformado em um espaço habitacional composto por duas frações, integrando-se ao conjunto de forma funcional e respeitosa com sua história.
**Integração Urbana**
Os edifícios conectam-se de maneira fluida à Rua Soto Maior e ao logradouro posterior, acessado por uma rua lateral. O logradouro será reorganizado como um pequeno pátio, otimizando o uso dos espaços e separando funções, com foco na valorização do uso habitacional em regime de propriedade horizontal.
**Restauro e Conservação**: Preservação das fachadas principais, empenas e alinhamento da fachada posterior no rés-do-chão. Técnicas e materiais tradicionais serão utilizados para manter a identidade histórica e cultural.
- **Reconstrução e Adaptação**: Ampliação do antigo edifício térreo das cavalariças, incluindo a criação de um piso em cave para estacionamento e arrecadações. A fachada principal será mantida, reforçando o equilíbrio entre o novo e o tradicional.
A entrada para a cave, onde será instalado o estacionamento, será feita a partir do logradouro, permitindo um acesso direto e prático, sem comprometer a estética e a fluidez do espaço urbano.
A utilização de técnicas modernas em combinação com métodos tradicionais visa criar um ambiente harmônico, respeitando o legado arquitetônico da cidade e promovendo um desenvolvimento sustentável e inovador para as futuras gerações.
O projeto desenvolve-se em três núcleos distintos, demarcando-se claramente dois tipos de intervenção: uma de reabilitação profunda no seu interior, com introdução de novos materiais e tecnologias modernas, e outra utilizando as técnicas e os métodos tradicionais.
O edifício será composto por 11 apartamentos com tipologias T0, T1 e T2.
2 apartamentos T0
2 apartamentos T1
7 apartamentos T2
Cada unidade foi projetada para maximizar a luz natural e a ventilação, criando ambientes amplos e agradáveis, com foco no bem-estar dos moradores. Além disso, o projeto incorpora soluções sustentáveis, como o uso de materiais ecológicos e tecnologias de eficiência energética, alinhando-se às tendências de habitação moderna e responsável.
Localização
Agualva e Mira-Sintra, Sintra, Lisboa
Informação do anúncio
ID do anúncio
1017638
Referência Externa
CB01-0571
Atualizado em
26/04/2026 00:42:18
Anunciante
Chamada para a rede fixa nacional
Coldwell Banker Luxus Cascais
AMI 1032
Referência do imóvel:
CB01-0571
Prédio para Venda em Agualva e Mira-Sintra
Vídeo