Voltar
Terreno para Venda em Serra e Junceira Foto 1
Terreno para Venda em Serra e Junceira Foto 2
Terreno para Venda em Serra e Junceira Foto 3
Terreno para Venda em Serra e Junceira Foto 4
Terreno para Venda em Serra e Junceira Foto 5

Terreno para Venda em Serra e Junceira

290.000 €

Tipo
Terreno
Negócio
Venda
Ano de Construção
2024
Área Bruta
2257 m²
Certificado Energético
N/A
Área do Terreno
8320 m²

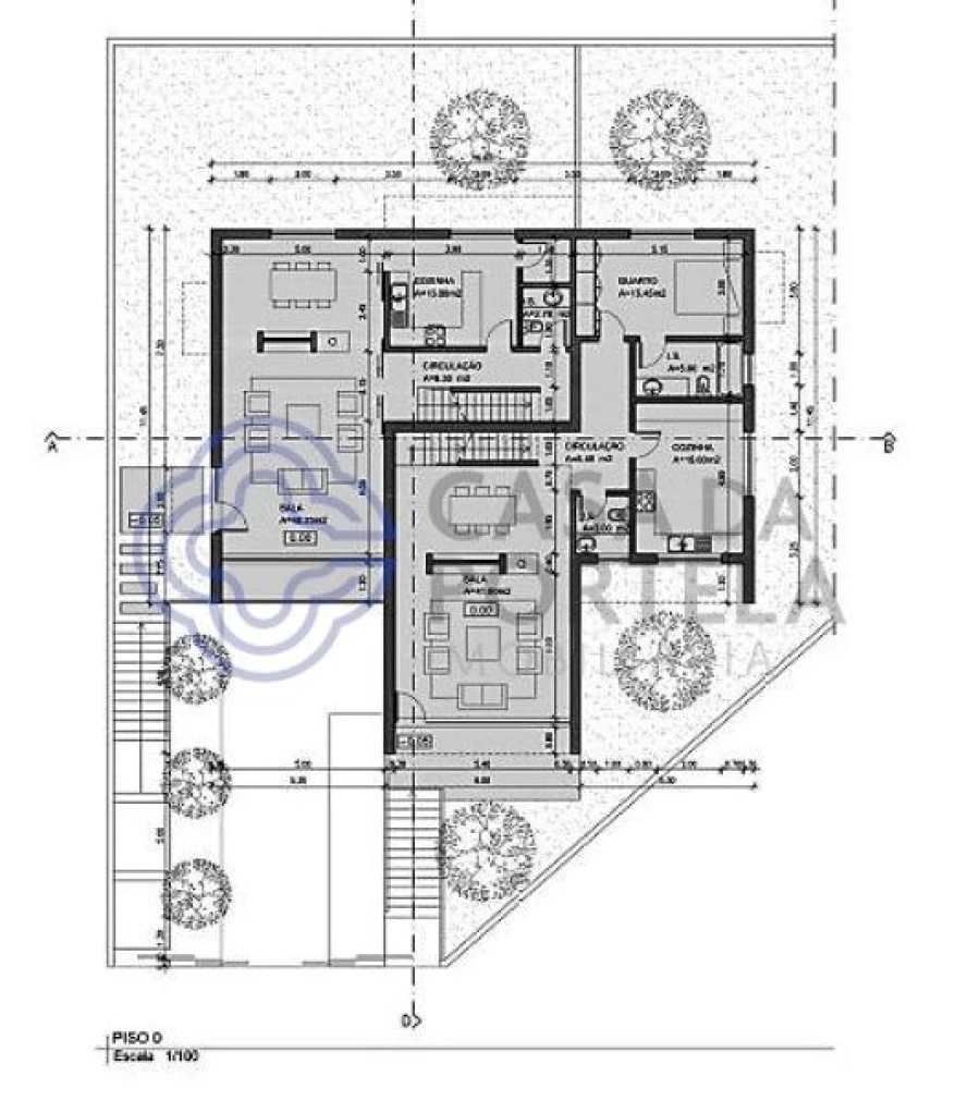
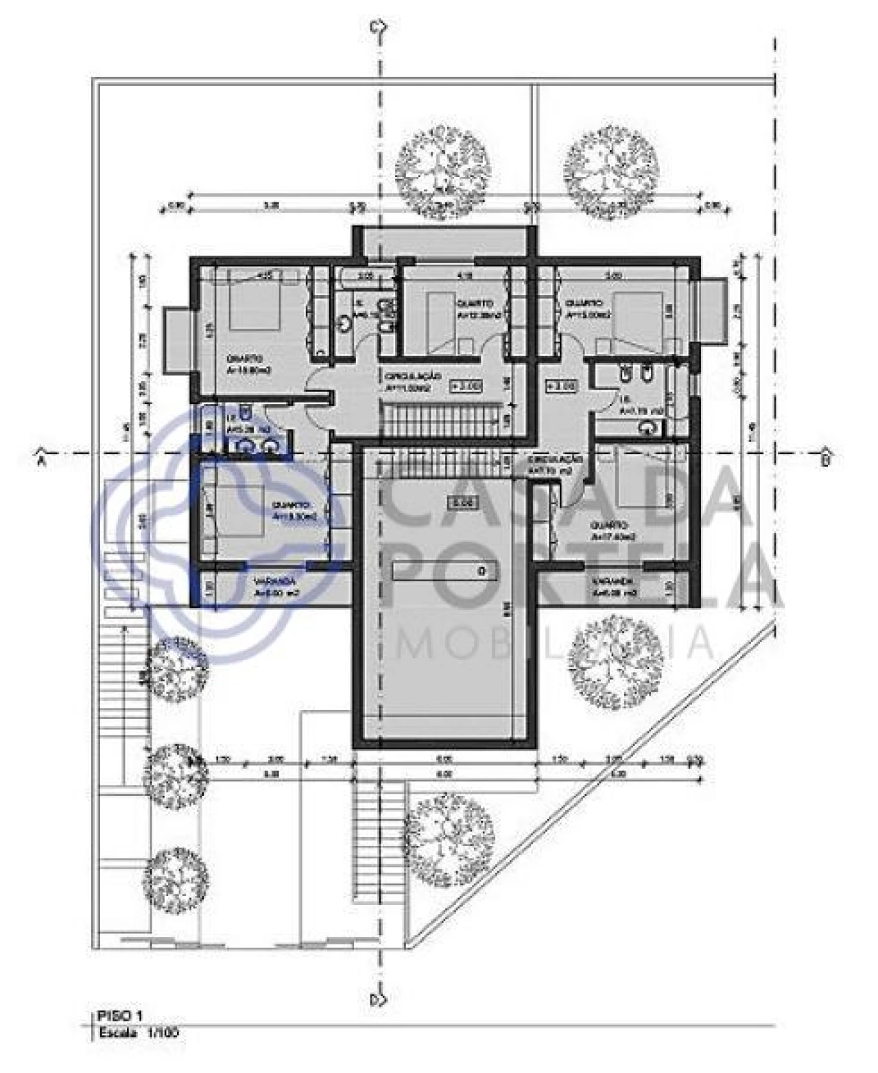
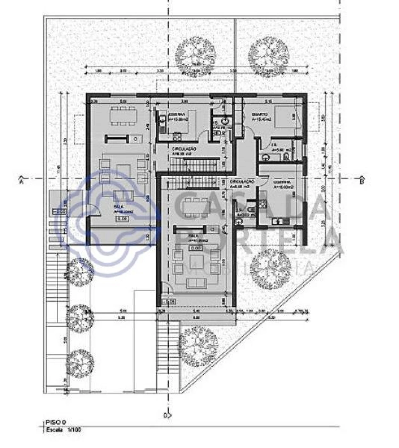
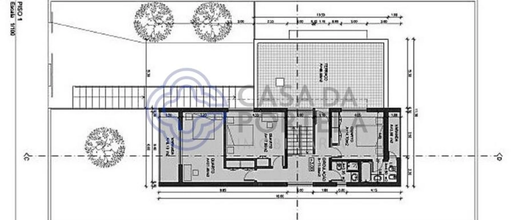
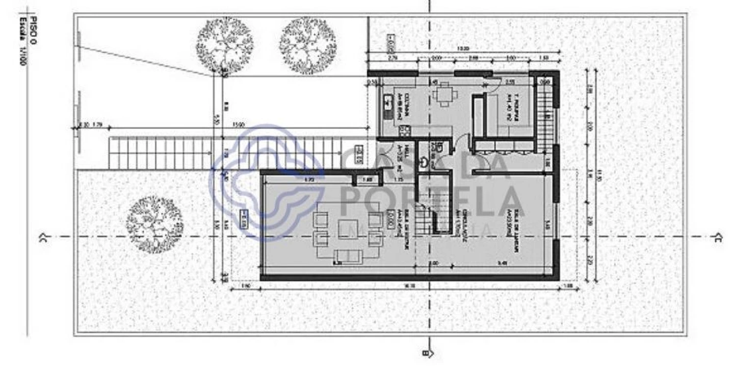
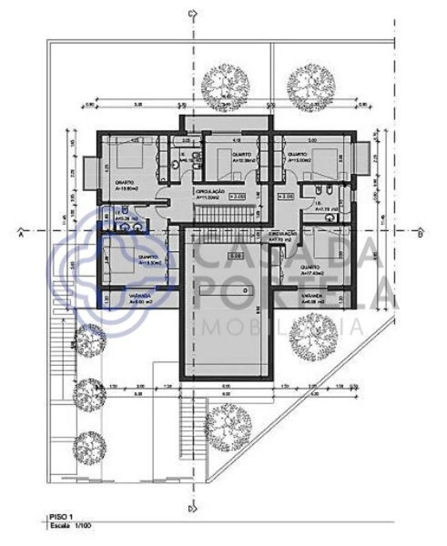
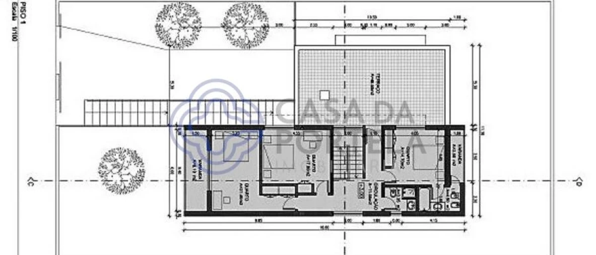
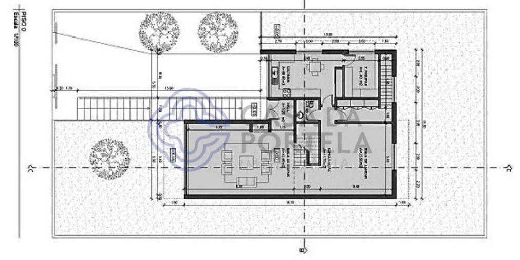
Terreno para construir 9 Moradias em Tomar, no centro de Portugal.

Terreno para construir 9 Moradias em Tomar, no centro de Portugal.

Localiza-se a 1km do centro histórico da cidade de Tomar.

Tem licença a pagamento para execução de um condomínio fechado, para 7 moradias unifamiliares (7 frações) e 1 bifamiliar (2 frações) e respetivas infraestruturas.
A licença emitida pela Câmara Municipal de Tomar, é única, o que permite construir de uma só vez as moradias e o respetivo arruamento, onde se inclui todas as infra estruturas, como a rede de águas, esgotos, gás, telecomunicações e eletricidade.
Se o proprietário quiser optar pela construção faseada, esta será autorizada pela Câmara. Pode construir isoladamente as moradias, no entanto terá sempre de construir inicialmente o arruamento e as respetivas infraestruturas que possibilitam que as moradias possam ter condições de habitabilidade.
Como o loteamento foi aprovado como condomínio fechado, poderá na zona de entrada construir uma portaria com segurança 24 horas por dia.

Área total 8.320,00 m2
Área total de construção 2.257,25 m2
Nº de lotes 8
Nº de fogos 9
Nº de pisos 2
Nº de lugares de estacionamento fechado 15
Nº de lugares de estacionamento à superfície 13
Lotes com a área entre 624,00 m2 e os 895,00 m2
Moradias com área bruta entre 220,00 m2 e 262,00 m2

LOCALIZAÇÃO:

Está a 5 minutos do centro histórico de Tomar com o histórico Convento do Cristo e Castelo construído pelos Cavaleiros Templários no século XII e está classificado como Património Mundial pela Unesco.
Para o lago da Barragem de "Castelo de Bode" é apenas cerca de 10 minutos de distância. Este lago é popular para todos os tipos de atividades de desportos aquáticos. O lago também é um paraíso para a vida selvagem com água muito pura e existem várias praias fluviais perto a propriedade onde você pode relaxar ao sol.
O acesso à auto estrada é de cerca de 5 minutos, onde chega ao aeroporto de Lisboa em uma hora e meia, embora seja possível utilizar o comboio ou autocarro para esta viagem.
A costa do mar é de cerca de quarenta e cinco minutos de carro, onde você tem belas praias, como a Nazaré, S. Martinho do Porto e Peniche ideal para os amantes do surf e outras atividades de mar.


A CASA DA PORTELA Imobiliária – É uma empresa de mediação imobiliária e Intermediação de Crédito criada em 2013. Os seus sócios fundadores possuem um sólido conhecimento acumulado desde 1994 sobre o mercado imobiliário, mantendo-se atentos às suas tendências e evolução, e com uma Intermediação de Crédito registado no Banco de Portugal com o nº 0004889.
A empresa começou por centrar-se na região do Grande Porto, conseguindo, desde o início, um grande volume de transações. O sucesso do modelo de negócio fez com que a marca Casa da Portela imobiliária chegasse em 2022 a Vila Nova de Famalicão. A Casa da Portela imobiliária pretende valorizar o trabalho dos consultores e prestar um serviço de excelência aos seus clientes, proporcionando um serviço de qualidade e tranquilidade, de forma a realizar bons negócios, garantindo a satisfação dos nossos clientes e parceiros. Para atingir esse propósito, dispomos de uma equipa multidisciplinar de profissionais qualificados, com vasta experiência em mediação imobiliária que nos permite apresentar e sugerir as melhores alternativas para os seus objetivos de venda, de arrendamento, ou de investimento imobiliário.

Possuímos uma rede de contatos privilegiada que nos permite potenciar a divulgação, a gestão e a concretização de negócio do seu imóvel em vários formatos.

3 Pilares fundamentais da Casa da Portela:

Missão
A nossa missão é orientar os nossos objetivos excecionais (financeiros, humanos e sociais) na nossa organização e uni-los aos nossos não menos excecionais clientes, atendendo sempre às suas necessidades, desejos e expectativas. A Casa da Portela imobiliária nasceu para que fosse possível prestar um acompanhamento e apoio contínuos, explicação e esclarecimento de dúvidas, sobre todo o processo de compra, venda ou arrendamento de imóveis em Portugal. A concretização de tudo isto faz com que a nossa máxima ambição seja sermos os melhores no mercado imobiliário.

Visão
A nossa visão é sermos a empresa de referência no mercado imobiliário, assim como sermos reconhecidos como a melhor opção para os nossos clientes. Para isso, fazemos sempre por manter um espírito inovador e de liderança que nos levará ao reconhecimento pela nossa excelência no mercado.

Valores
Os nossos valores são sempre o conjunto das nossas atitudes e crenças, que envolvem todas as pessoas da organização, para que, em uníssono, consigamos atingir os resultados de excelência a que nos propomos sempre que são baseados na Qualidade, Profissionalismo, Responsabilidade, Respeito e Inovação.

Localização

Serra e Junceira, Tomar, Santarém

Informação do anúncio

ID do anúncio 1018909
Referência Externa 195401
Atualizado em 05/12/2025 00:56:32
Casa da Portela AMI 10340
Referência do imóvel: 195401
Phone
Chamada para a rede fixa nacional
Casa da Portela AMI 10340
Referência do imóvel: 195401
Phone
Chamada para a rede fixa nacional
1 / 40
Terreno para Venda em Serra e Junceira Foto 1
Terreno para Venda em Serra e Junceira Foto 2
Terreno para Venda em Serra e Junceira Foto 3
Terreno para Venda em Serra e Junceira Foto 4
Terreno para Venda em Serra e Junceira Foto 5
Terreno para Venda em Serra e Junceira Foto 6
Terreno para Venda em Serra e Junceira Foto 7
Terreno para Venda em Serra e Junceira Foto 8
Terreno para Venda em Serra e Junceira Foto 9
Terreno para Venda em Serra e Junceira Foto 10
Terreno para Venda em Serra e Junceira Foto 11
Terreno para Venda em Serra e Junceira Foto 12
Terreno para Venda em Serra e Junceira Foto 13
Terreno para Venda em Serra e Junceira Foto 14
Terreno para Venda em Serra e Junceira Foto 15
Terreno para Venda em Serra e Junceira Foto 16
Terreno para Venda em Serra e Junceira Foto 17
Terreno para Venda em Serra e Junceira Foto 18
Terreno para Venda em Serra e Junceira Foto 19
Terreno para Venda em Serra e Junceira Foto 20
Terreno para Venda em Serra e Junceira Foto 21
Terreno para Venda em Serra e Junceira Foto 22
Terreno para Venda em Serra e Junceira Foto 23
Terreno para Venda em Serra e Junceira Foto 24
Terreno para Venda em Serra e Junceira Foto 25
Terreno para Venda em Serra e Junceira Foto 26
Terreno para Venda em Serra e Junceira Foto 27
Terreno para Venda em Serra e Junceira Foto 28
Terreno para Venda em Serra e Junceira Foto 29
Terreno para Venda em Serra e Junceira Foto 30
Terreno para Venda em Serra e Junceira Foto 31
Terreno para Venda em Serra e Junceira Foto 32
Terreno para Venda em Serra e Junceira Foto 33
Terreno para Venda em Serra e Junceira Foto 34
Terreno para Venda em Serra e Junceira Foto 35
Terreno para Venda em Serra e Junceira Foto 36
Terreno para Venda em Serra e Junceira Foto 37
Terreno para Venda em Serra e Junceira Foto 38
Terreno para Venda em Serra e Junceira Foto 39
Terreno para Venda em Serra e Junceira Foto 40
Clicky