Voltar
Terreno para Venda em Ramada e Caneças Foto 1
Terreno para Venda em Ramada e Caneças Foto 2
Terreno para Venda em Ramada e Caneças Foto 3
Terreno para Venda em Ramada e Caneças Foto 4
Terreno para Venda em Ramada e Caneças Foto 5

Terreno para Venda em Ramada e Caneças

119.000 €

Tipo
Terreno
Negócio
Venda
Área Útil
200 m²
Condição
Novo
Certificado Energético
Isento
Área do Terreno
300 m²

Descrição

Fantástico Terreno no Bairro do Casal Novo - Caneças

Terreno com projecto aprovado na Câmara Municipal de Odivelas com Licenças a pagamento

Projecto: Construção de moradia T4
Edifício constituído por 2 pisos de habitação (2 pisos acima do solo e 1 abaixo -cave-) + Rooftop
4 quartos, sala, cozinha, 4 Wc
Isolamento térmico e acústico
Certificado energético previsto: A

Área do terreno: 300 m2
Área útil interior de pavimento: 172,97 m2
Descrição dos pisos
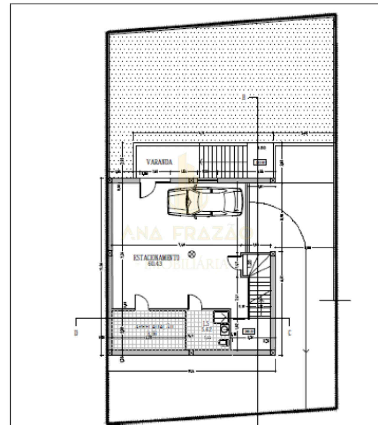
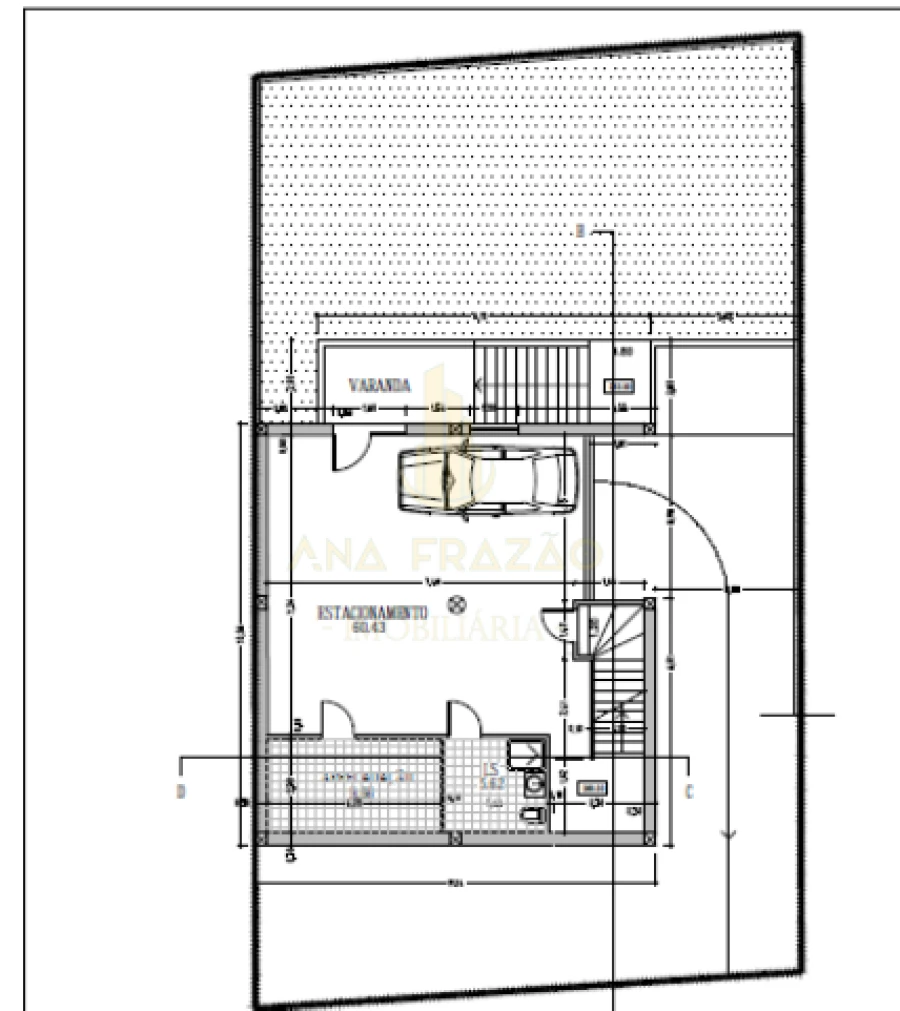
Piso -1
Estacionamento: 60,43 m2
Arrecadação: 9,66 m2
Wc: 5,62 m2
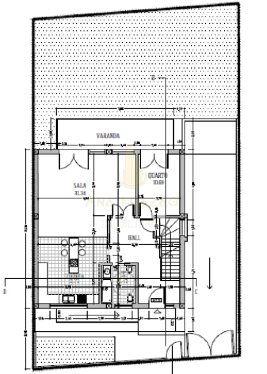
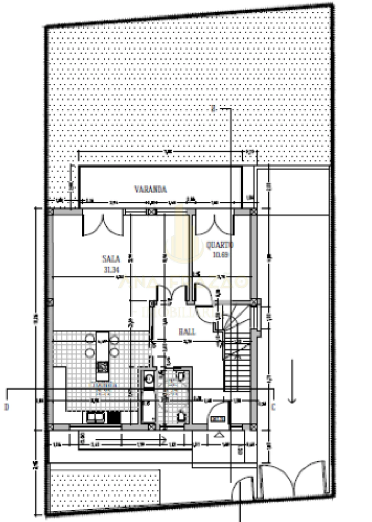
Piso 1
Hall de entrada
Sala: 31,34 m2
Cozinha: 17,72 m2
Wc: 5,47 m2
Quarto: 10,69 m2
Cozinha
Varanda: 15,01 m2
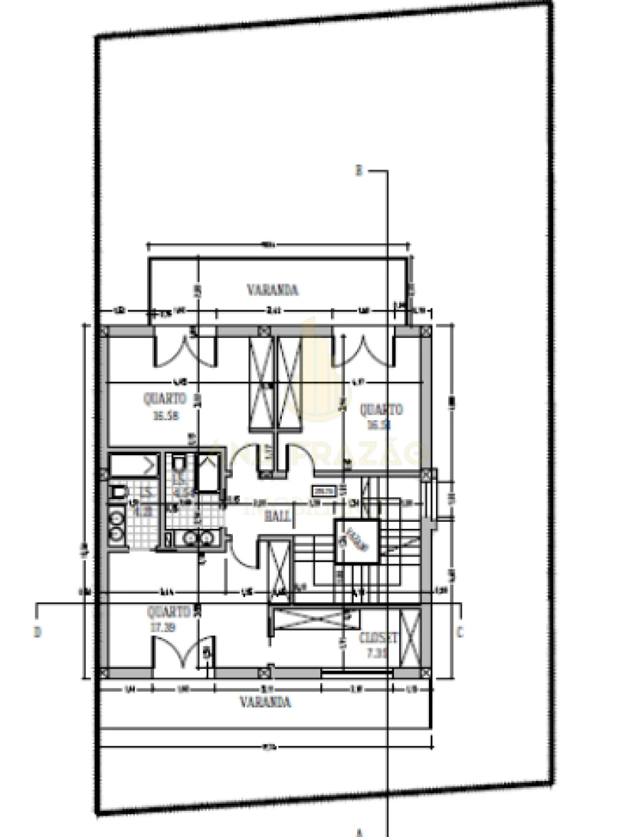
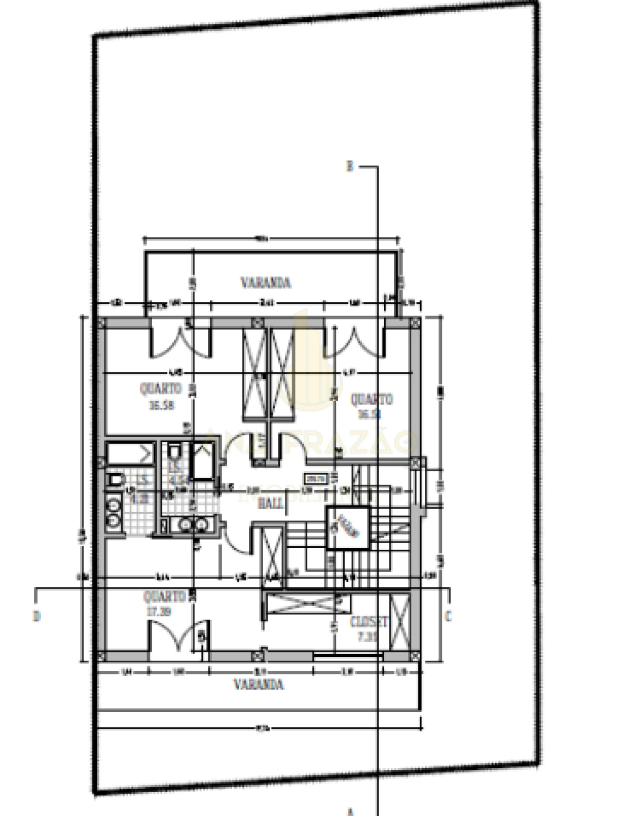
Piso 2
Hall
Quarto: 16,58 m2
Quarto: 16,51 m2
Suite: 17,39 m2 com closet: 7,35 m2 e Wc: 4,21 m2
Wc de acesso a hall: 4,54 m2
Varanda quartos: 18,08 m2
Varanda da Suite: 14,61 m2
Piso 3 - Rooftop
Acesso à cobertura: 13,2 m2
Área coberta: 58,05 m2
Área descoberta: 50 m2

Pontos de interesse:
Anta das Pedras Grandes (Monumento Nacional)
Zona verde com parque infantil e equipamentos de manutenção bio saudáveis
Fontes de Caneças: Fontainhas, Castanheiros, Piçarras, Passarinhos, Castelo de Vide, Fonte Velha, Fonte Santa e Fonte do Ouro.

Uma casa pensada para si!
Venha conhecer.

Localização

Ramada e Caneças, Odivelas, Lisboa

Informação do anúncio

ID do anúncio 1037967
Referência Externa 00002
Atualizado em 05/02/2025 05:40:49
Ana Frazão Imobiliária AMI 14759
Referência do imóvel: 00002
Phone
Chamada para a rede móvel nacional
Ana Frazão Imobiliária AMI 14759
Referência do imóvel: 00002
Phone
Chamada para a rede móvel nacional
1 / 9
Terreno para Venda em Ramada e Caneças Foto 1
Terreno para Venda em Ramada e Caneças Foto 2
Terreno para Venda em Ramada e Caneças Foto 3
Terreno para Venda em Ramada e Caneças Foto 4
Terreno para Venda em Ramada e Caneças Foto 5
Terreno para Venda em Ramada e Caneças Foto 6
Terreno para Venda em Ramada e Caneças Foto 7
Terreno para Venda em Ramada e Caneças Foto 8
Terreno para Venda em Ramada e Caneças Foto 9
Clicky