Voltar
Prédio para Venda em Marvila Foto 1
Prédio para Venda em Marvila Foto 2
Prédio para Venda em Marvila Foto 3
Prédio para Venda em Marvila Foto 4
Prédio para Venda em Marvila Foto 5

Prédio para Venda em Marvila

5.400.000 €

Tipo
Prédio
Negócio
Venda
Área Bruta
1489 m²
Condição
Usado
Certificado Energético
Isento

Escritório à venda em Marvila

Espaço amplo, com vista rio, inserido em zona empresarial e habitacional, na zona ribeirinha, Lisboa - Oriente.
Capacidade para mais de 200 postos de trabalhos.

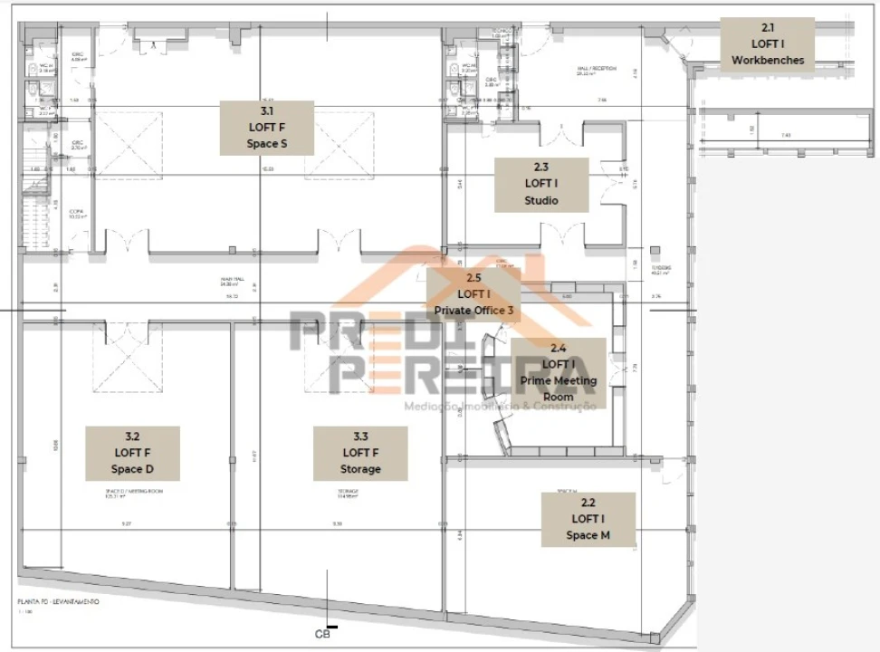
Venda de duas propriedades em conjunto (Loft I+F). Dividida em 2 pisos.

Loft I
No último 5º andar, há uma fração com 308m², altura de 3,50m e 42m de janelas com vista para o rio 'Mar da Prata', num edifício de armazéns e escritórios, em Braço de Prata, em frente à antiga 'Fábrica da Tabaqueira' e ao novo empreendimento residencial e comercial Prata Riverside Village, da VIC properties.
Anteriormente um edifício bancário para espaço de escritório e atividades de compensação e arquivo de cheques.

Loft F
Uma fração contígua ao Loft I, com 1.181,29m², altura entre 3,50m e 3,90m, com 4 clarabóias com cerca de 12m² cada distribuídas pelo espaço, com um mezanino superior, armazenamento e loft.
O edifício tem 2 entradas, com elevador e elevador de carga cada. Uma entrada em frente ao rio com estacionamento público (gratuito) e a entrada dos fundos com paragem de autocarro à porta e a 200m da estação ferroviária da Linha de Sintra com ligação às estações Gare do Oriente (cidade nova), Sta. Apolónia (cidade antiga) e Entrecampos (centro de hub).

Propriedade adquirida com leasing em 2016, investimentos na sua recuperação total com capital próprio, criando a infraestrutura para escritórios servidos, negócio de coworking e armazém, estando os espaços atualmente em fase 1 (com o negócio de coworking).

Na fase 2, o potencial projetado é para 183 empregos 362K/ano - Rendimento 8,4%, rentabilidade atual reduzida, 100K/ano - Rendimento 2,32%. Propriedades adequadas para Golden-Visa, pela sua idade e área ARU, adquirindo em co-propriedade para cada GV-500K.

O Loft I tem um encargo de 340K e o Loft F tem um encargo de 129K em contratos de leasing. Projeto da fase 2 em 2024 (planos e 3D nos conteúdos)
A. Interior:
-Piso em nível elevado (0,50m) devido à vista para o rio no loft I
-Envidraçamentos (4x nos 3 espaços) virados para a empena do edifício.
-Escritórios com divisórias de vidro ou cortinas de vidro.
-Aumento do número de banheiros nos 2 lofts

B. Exterior:
-Terraço no topo do poço do elevador atual, com vista para o Tejo sul acessível a todo o condomínio.
-Terraço privado dos lofts, com saída direta do mezanino do loft F, também funcionando como saída de emergência, ligando-se às escadas sul do edifício, através de um corredor em estruturas metálicas, sobre as telhas do telhado.
-Modificação de espaços nos bastidores e criação de banheiros, ao lado da saída para o terraço privado.
-Modificação das portas de entrada e vestíbulos, Norte e Sul, para uma imagem menos industrial.

As 2 propriedades têm melhorias subjacentes na sua venda com obras em curso.
Estando sujeitas a discussão e inclusão no preço apresentado ou não.
O preço das 2 frações independentes vendidas juntas, com obras de melhorias da Fase 2, é de 5.400.000€.
Existe a possibilidade de efetuar a compra nas atuais condições, sendo que nesse caso o valor do negócio é de 5.150.000€.

Descubra o seu parceiro de confiança desde 2009! Na Predipereira, estamos aqui para si!
Explore as oportunidades em Predipereira.net OU visite-nos em facebook.com/predipereira.lda.
Como Intermediários de Crédito Certificados pelo Banco de Portugal (n.º0002387), estamos prontos para orientá-lo GRATUITAMENTE em todo o processo de crédito à habitação.
A jornada para a casa dos seus sonhos começa aqui, connosco!

Localização

Marvila, Lisboa, Lisboa

Informação do anúncio

ID do anúncio 1045860
Referência Externa PP5256
Atualizado em 16/04/2025 23:42:35
PREDIPEREIRA - Mediação Imobiliária & Construção, Unipessoal Lda. AMI 8546
Referência do imóvel: PP5256
Phone
Chamada para a rede fixa nacional
PREDIPEREIRA - Mediação Imobiliária & Construção, Unipessoal Lda. AMI 8546
Referência do imóvel: PP5256
Phone
Chamada para a rede fixa nacional
1 / 49
Prédio para Venda em Marvila Foto 1
Prédio para Venda em Marvila Foto 2
Prédio para Venda em Marvila Foto 3
Prédio para Venda em Marvila Foto 4
Prédio para Venda em Marvila Foto 5
Prédio para Venda em Marvila Foto 6
Prédio para Venda em Marvila Foto 7
Prédio para Venda em Marvila Foto 8
Prédio para Venda em Marvila Foto 9
Prédio para Venda em Marvila Foto 10
Prédio para Venda em Marvila Foto 11
Prédio para Venda em Marvila Foto 12
Prédio para Venda em Marvila Foto 13
Prédio para Venda em Marvila Foto 14
Prédio para Venda em Marvila Foto 15
Prédio para Venda em Marvila Foto 16
Prédio para Venda em Marvila Foto 17
Prédio para Venda em Marvila Foto 18
Prédio para Venda em Marvila Foto 19
Prédio para Venda em Marvila Foto 20
Prédio para Venda em Marvila Foto 21
Prédio para Venda em Marvila Foto 22
Prédio para Venda em Marvila Foto 23
Prédio para Venda em Marvila Foto 24
Prédio para Venda em Marvila Foto 25
Prédio para Venda em Marvila Foto 26
Prédio para Venda em Marvila Foto 27
Prédio para Venda em Marvila Foto 28
Prédio para Venda em Marvila Foto 29
Prédio para Venda em Marvila Foto 30
Prédio para Venda em Marvila Foto 31
Prédio para Venda em Marvila Foto 32
Prédio para Venda em Marvila Foto 33
Prédio para Venda em Marvila Foto 34
Prédio para Venda em Marvila Foto 35
Prédio para Venda em Marvila Foto 36
Prédio para Venda em Marvila Foto 37
Prédio para Venda em Marvila Foto 38
Prédio para Venda em Marvila Foto 39
Prédio para Venda em Marvila Foto 40
Prédio para Venda em Marvila Foto 41
Prédio para Venda em Marvila Foto 42
Prédio para Venda em Marvila Foto 43
Prédio para Venda em Marvila Foto 44
Prédio para Venda em Marvila Foto 45
Prédio para Venda em Marvila Foto 46
Prédio para Venda em Marvila Foto 47
Prédio para Venda em Marvila Foto 48
Prédio para Venda em Marvila Foto 49
Clicky