Terreno para Venda em Pechão
250.000 €
Tipo
Terreno
Negócio
Venda
Ano de Construção
2006
Condição
Para Obras
Certificado Energético
Não aplicável
Área do Terreno
474 m²
Terreno urbano com 474 m² e projeto aprovado para moradia com cave e piscina em Pechão, Ol
Terreno urbano com 474 m² para venda na Urbanização Montarroio, em Pechão, Olhão, com projeto aprovado.
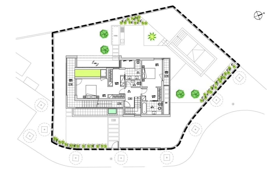
O projeto contempla uma moradia de três pisos com 206 m², distribuída por rés-do-chão, primeiro andar, cobertura e cave.
No rés-do-chão inclui-se hall de entrada, cozinha com zona de lavandaria, sala comum, casa de banho de serviço e quarto em suite com base de duche.
O primeiro andar dispõe de dois quartos em suite com closets, varandas e acesso ao terraço de cobertura com zona técnica e painéis solares.
Na cave está prevista uma zona multiusos com 40 m², casa de máquinas e lavandaria.
O exterior contará com jardim, piscina, zona de refeições, estacionamento ao ar livre, garagem e casa de banho com duche de apoio à área exterior.
O projeto de arquitetura e especialidades encontra-se aprovado.
Destaques:
Terreno urbano com 474 m²
Projeto aprovado para moradia com 206 m²
Três pisos + cave + cobertura
Três quartos em suite (um no rés-do-chão)
Closets, varandas e terraço técnico com painéis solares
Cave com zona multiusos e lavandaria
Jardim, piscina e zona de refeições
Garagem e estacionamento aberto
Casa de banho exterior
Localização estratégica:
Em Pechão, Olhão
Próximo do centro e de todos os serviços
Com acessos fáceis a comércio, escolas, hospital e transportes
A poucos minutos de Faro e do aeroporto
Terreno com projeto aprovado para moradia moderna com cave e piscina ideal para construção numa zona tranquila e bem servida.
IMI: 163/ ano
O projeto contempla uma moradia de três pisos com 206 m², distribuída por rés-do-chão, primeiro andar, cobertura e cave.
No rés-do-chão inclui-se hall de entrada, cozinha com zona de lavandaria, sala comum, casa de banho de serviço e quarto em suite com base de duche.
O primeiro andar dispõe de dois quartos em suite com closets, varandas e acesso ao terraço de cobertura com zona técnica e painéis solares.
Na cave está prevista uma zona multiusos com 40 m², casa de máquinas e lavandaria.
O exterior contará com jardim, piscina, zona de refeições, estacionamento ao ar livre, garagem e casa de banho com duche de apoio à área exterior.
O projeto de arquitetura e especialidades encontra-se aprovado.
Destaques:
Terreno urbano com 474 m²
Projeto aprovado para moradia com 206 m²
Três pisos + cave + cobertura
Três quartos em suite (um no rés-do-chão)
Closets, varandas e terraço técnico com painéis solares
Cave com zona multiusos e lavandaria
Jardim, piscina e zona de refeições
Garagem e estacionamento aberto
Casa de banho exterior
Localização estratégica:
Em Pechão, Olhão
Próximo do centro e de todos os serviços
Com acessos fáceis a comércio, escolas, hospital e transportes
A poucos minutos de Faro e do aeroporto
Terreno com projeto aprovado para moradia moderna com cave e piscina ideal para construção numa zona tranquila e bem servida.
IMI: 163/ ano
Localização
Pechão, Olhão, Faro
Informação do anúncio
ID do anúncio
1049121
Referência Externa
BRV-809
Atualizado em
26/04/2026 00:45:00
Anunciante
Chamada para a rede fixa nacional
Brava Properties
AMI 21073
Referência do imóvel:
BRV-809
Terreno para Venda em Pechão