Terreno para Venda em Vilar de Nantes
50.000 €
Tipo
Terreno
Negócio
Venda
Área Bruta
290 m²
Área Útil
446 m²
Condição
Não aplicável
Área do Terreno
446 m²
Lote de terreno destinado à construção de moradia, situado em uma localização privilegiada
Descubra este incrível lote à venda na tranquila zona de Nantes, em Chaves. Com 6 pontos de interesse a uma curta distância a pé, este terreno beneficia de fácil acesso a diversos serviços e comodidades. A paragem de autocarro de Nantes encontra-se a apenas 4 minutos a pé, garantindo deslocações rápidas pela cidade e região.
A exposição solar neste lote é excelente, proporcionando uma iluminação natural abundante durante todo o dia, o que valoriza ainda mais a qualidade de vida na área. Além disso, a vista para a cidade de Chaves é um dos seus grandes encantos, oferecendo um cenário único e relaxante, com a beleza da paisagem urbana a contrastar com a paz que caracteriza a zona.
A área onde se insere o lote é predominantemente residencial, tranquila e segura, perfeita para famílias que procuram um ambiente calmo e acolhedor. A proximidade com o centro da cidade, apenas a 5 minutos de carro, permite-lhe aceder facilmente a tudo o que a cidade tem para oferecer, desde escolas, supermercados, restaurantes, centros de saúde e outras infraestruturas de apoio.
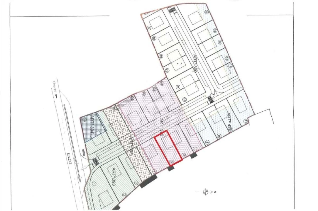
Este lote tem uma área total de 446m2, uma área de implantação de 102m2 e uma área bruta de construção de 290m2.
Este lote é, sem dúvida, uma oportunidade única para quem pretende construir a casa dos seus sonhos numa zona de excelência, com uma localização privilegiada e todo o conforto necessário para viver bem.
A exposição solar neste lote é excelente, proporcionando uma iluminação natural abundante durante todo o dia, o que valoriza ainda mais a qualidade de vida na área. Além disso, a vista para a cidade de Chaves é um dos seus grandes encantos, oferecendo um cenário único e relaxante, com a beleza da paisagem urbana a contrastar com a paz que caracteriza a zona.
A área onde se insere o lote é predominantemente residencial, tranquila e segura, perfeita para famílias que procuram um ambiente calmo e acolhedor. A proximidade com o centro da cidade, apenas a 5 minutos de carro, permite-lhe aceder facilmente a tudo o que a cidade tem para oferecer, desde escolas, supermercados, restaurantes, centros de saúde e outras infraestruturas de apoio.
Este lote tem uma área total de 446m2, uma área de implantação de 102m2 e uma área bruta de construção de 290m2.
Este lote é, sem dúvida, uma oportunidade única para quem pretende construir a casa dos seus sonhos numa zona de excelência, com uma localização privilegiada e todo o conforto necessário para viver bem.
Localização
Vilar de Nantes, Chaves, Vila Real
Informação do anúncio
ID do anúncio
1051193
Referência Externa
322/T/02265
Atualizado em
27/04/2026 00:43:09
Anunciante
Chamada para a rede fixa nacional
COMPRARCASA CHAVES
AMI 10147
Referência do imóvel:
322/T/02265
Terreno para Venda em Vilar de Nantes
Vídeo