Voltar
Terreno para Venda em Vilar de Nantes Foto 1
Terreno para Venda em Vilar de Nantes Foto 2
Terreno para Venda em Vilar de Nantes Foto 3
Terreno para Venda em Vilar de Nantes Foto 4
Terreno para Venda em Vilar de Nantes Foto 5

Terreno para Venda em Vilar de Nantes

50.000 €

Tipo
Terreno
Negócio
Venda
Área Bruta
330 m²
Área Útil
110 m²
Condição
Não aplicável
Área do Terreno
318 m²

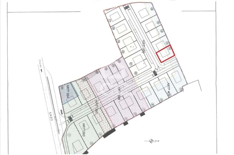
Lote de terreno destinado à construção de moradia, situado em uma localização privilegiada

Descubra este incrível lote à venda na tranquila zona de Nantes, em Chaves. Com 6 pontos de interesse a uma curta distância a pé, este terreno beneficia de fácil acesso a diversos serviços e comodidades. A paragem de autocarro de Nantes encontra-se a apenas 4 minutos a pé, garantindo deslocações rápidas pela cidade e região.

A exposição solar neste lote é excelente, proporcionando uma iluminação natural abundante durante todo o dia, o que valoriza ainda mais a qualidade de vida na área. Além disso, a vista para a cidade de Chaves é um dos seus grandes encantos, oferecendo um cenário único e relaxante, com a beleza da paisagem urbana a contrastar com a paz que caracteriza a zona.

A área onde se insere o lote é predominantemente residencial, tranquila e segura, perfeita para famílias que procuram um ambiente calmo e acolhedor. A proximidade com o centro da cidade, apenas a 5 minutos de carro, permite-lhe aceder facilmente a tudo o que a cidade tem para oferecer, desde escolas, supermercados, restaurantes, centros de saúde e outras infraestruturas de apoio.

Este lote tem uma área total de 318m2, uma área de implantação de 110 m2 e uma área bruta de construção de 330m2.

Este lote é, sem dúvida, uma oportunidade única para quem pretende construir a casa dos seus sonhos numa zona de excelência, com uma localização privilegiada e todo o conforto necessário para viver bem.

Localização

Vilar de Nantes, Chaves, Vila Real

Informação do anúncio

ID do anúncio 1051201
Referência Externa 322/T/02272
Atualizado em 27/04/2026 00:43:10
COMPRARCASA CHAVES AMI 10147
Referência do imóvel: 322/T/02272
Phone
Chamada para a rede fixa nacional
COMPRARCASA CHAVES AMI 10147
Referência do imóvel: 322/T/02272
Phone
Chamada para a rede fixa nacional
1 / 18
Terreno para Venda em Vilar de Nantes Foto 1
Terreno para Venda em Vilar de Nantes Foto 2
Terreno para Venda em Vilar de Nantes Foto 3
Terreno para Venda em Vilar de Nantes Foto 4
Terreno para Venda em Vilar de Nantes Foto 5
Terreno para Venda em Vilar de Nantes Foto 6
Terreno para Venda em Vilar de Nantes Foto 7
Terreno para Venda em Vilar de Nantes Foto 8
Terreno para Venda em Vilar de Nantes Foto 9
Terreno para Venda em Vilar de Nantes Foto 10
Terreno para Venda em Vilar de Nantes Foto 11
Terreno para Venda em Vilar de Nantes Foto 12
Terreno para Venda em Vilar de Nantes Foto 13
Terreno para Venda em Vilar de Nantes Foto 14
Terreno para Venda em Vilar de Nantes Foto 15
Terreno para Venda em Vilar de Nantes Foto 16
Terreno para Venda em Vilar de Nantes Foto 17
Terreno para Venda em Vilar de Nantes Foto 18
Clicky