Voltar
Terreno para Venda em Pegões Foto 1
Terreno para Venda em Pegões Foto 2
Terreno para Venda em Pegões Foto 3
Terreno para Venda em Pegões Foto 4
Terreno para Venda em Pegões Foto 5

Terreno para Venda em Pegões

850.000 €

Tipo
Terreno
Negócio
Venda
Área Bruta
108508 m²
Área Útil
108508 m²
Condição
Usado
Certificado Energético
Isento
Área do Terreno
108508 m²

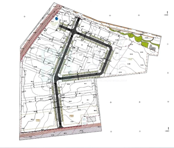
Terreno de 108.508m2 com PIP aprovado para a construção de 34.931m2 em Pegões-Gare, Montij

Excelente lote de terreno com 108.508m2 (110.690m2 na DGT e 116.748 no PIP) com PIP aprovado para a construção de 34.931m2 em Armazéns, Comercio e/ou Serviços em 19 lotes independentes com uma área total de 59.381m2.

Área de implantação máxima total de 23.752,40m2. Altura máxima do Edificado de 9 metros. Os lotes 16 a 19 serão implantados em banda e os restantes lotes a implantação é isolada, com um afastamento mínimo ao limite do lote de 9 metros.

Localização privilegiada frente à EN10 e à estação de comboios (mercadoria e passageiros) de Pegões-Gare.

Atualmente encontra-se sem ocupação ou utilização e com um coberto arbóreo e arbustivo predominantemente constituído por eucaliptos, pinheiros e um subcoberto de matos, apresentando uma forma predominantemente trapezoidal com a maior dimensão - cerca de 380 m - de orientação norte, e a menor dimensão - cerca de 283 m - com uma orientação sul.

Aparte do PIP aprovado, poder-se-á dar outro uso, conforme PDM.
A área é atualmente classificada pelo PDM em vigor como urbanizável habitacional mista de nível IV (Pegões-Gare) para onde se indicam parâmetros de densidade bruta de 20 fogos/ha e de densidade líquida (aplicada às áreas exclusivamente destinadas a habitação ou outros usos urbanos complementares) de 30 fogos/ha. Estes valores traduzir-se-ão por sua vez em parâmetros de ocupação do solo máxima de 0,25 e de utilização de 0,45 e um numero máximo de pisos de três. Contudo e, não obstante, considerando a localização do terreno numa perspectiva territorial próxima, relativa a Pegões-Gare, como também numa perspectiva territorial alargada, relativa ao território concelhio, ao da Península de Setúbal e mesmo ao da AML, constata-se que possui uma situação muito privilegiada em termos de acessos e logística.

Terreno rústico com 108.508 m2, situado a sul de Pegões-Gare entre este núcleo e a via férrea, confronta a Poente com a EN 10 e a Sul com a linha de caminho-de-ferro do Sul e rua não pavimentada que liga ao Largo José Ribeiro Santana, a Norte por zona verde e Rua da Mãe de Água que dá acesso ao aglomerado de Pegões-Gare e à EN10 e a Nascente com prédio rústico, equipamento escolar e parte da Av. 25 de Abril.

Excelentes acessos rodoviários frente à N10, a 2 km da EN4, uma distância de menos de 5 km da autoestrada A13, a cerca de 9 Km da autoestrada A6 para Espanha e da autoestrada A2 Algarve/Lisboa/Setúbal, a 53 km da cidade do Montijo, Ponte Vasco da Gama e Aeroporto, e também a cerca de 36 Km do Porto de Setúbal. Por outro lado, temos a via férrea do Alentejo - Lisboa. ... Parece forçoso ter de se concluir que possui uma acessibilidade tanto local, como concelhia e mesmo metropolitana ímpar convocando a possibilidade de uma sua decisiva valorização indiscutivelmente urbana, mas empresarial.

Venha conhecer, aproveite esta oportunidade, e desenvolva o Seu projeto imobiliário!

Localização

Pegões, Montijo, Setúbal

Informação do anúncio

ID do anúncio 1054178
Referência Externa TER_4060
Atualizado em 12/01/2026 06:02:09
Carpe Domus AMI 9466
Referência do imóvel: TER_4060
Phone
Chamada para a rede fixa nacional
Carpe Domus AMI 9466
Referência do imóvel: TER_4060
Phone
Chamada para a rede fixa nacional
1 / 45
Terreno para Venda em Pegões Foto 1
Terreno para Venda em Pegões Foto 2
Terreno para Venda em Pegões Foto 3
Terreno para Venda em Pegões Foto 4
Terreno para Venda em Pegões Foto 5
Terreno para Venda em Pegões Foto 6
Terreno para Venda em Pegões Foto 7
Terreno para Venda em Pegões Foto 8
Terreno para Venda em Pegões Foto 9
Terreno para Venda em Pegões Foto 10
Terreno para Venda em Pegões Foto 11
Terreno para Venda em Pegões Foto 12
Terreno para Venda em Pegões Foto 13
Terreno para Venda em Pegões Foto 14
Terreno para Venda em Pegões Foto 15
Terreno para Venda em Pegões Foto 16
Terreno para Venda em Pegões Foto 17
Terreno para Venda em Pegões Foto 18
Terreno para Venda em Pegões Foto 19
Terreno para Venda em Pegões Foto 20
Terreno para Venda em Pegões Foto 21
Terreno para Venda em Pegões Foto 22
Terreno para Venda em Pegões Foto 23
Terreno para Venda em Pegões Foto 24
Terreno para Venda em Pegões Foto 25
Terreno para Venda em Pegões Foto 26
Terreno para Venda em Pegões Foto 27
Terreno para Venda em Pegões Foto 28
Terreno para Venda em Pegões Foto 29
Terreno para Venda em Pegões Foto 30
Terreno para Venda em Pegões Foto 31
Terreno para Venda em Pegões Foto 32
Terreno para Venda em Pegões Foto 33
Terreno para Venda em Pegões Foto 34
Terreno para Venda em Pegões Foto 35
Terreno para Venda em Pegões Foto 36
Terreno para Venda em Pegões Foto 37
Terreno para Venda em Pegões Foto 38
Terreno para Venda em Pegões Foto 39
Terreno para Venda em Pegões Foto 40
Terreno para Venda em Pegões Foto 41
Terreno para Venda em Pegões Foto 42
Terreno para Venda em Pegões Foto 43
Terreno para Venda em Pegões Foto 44
Terreno para Venda em Pegões Foto 45
Clicky