Terreno para Venda em Valega
75.000 €
Tipo
Terreno
Negócio
Venda
Área Útil
1861 m²
Condição
Não Aplicável
Certificado Energético
Isento
Área do Terreno
2861 m²
Descrição
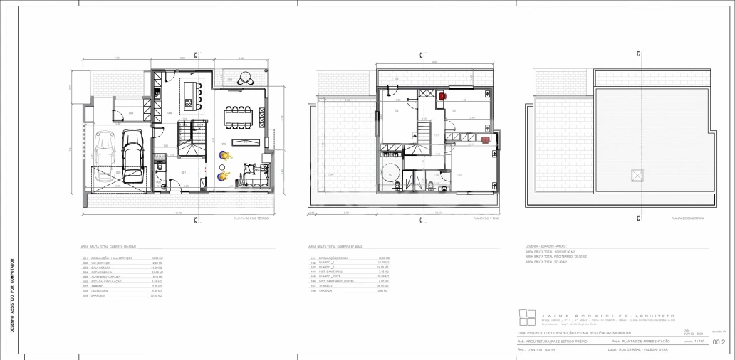
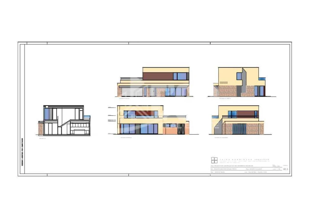
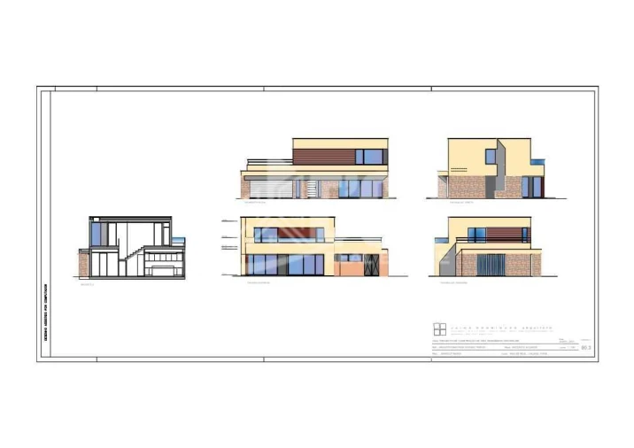
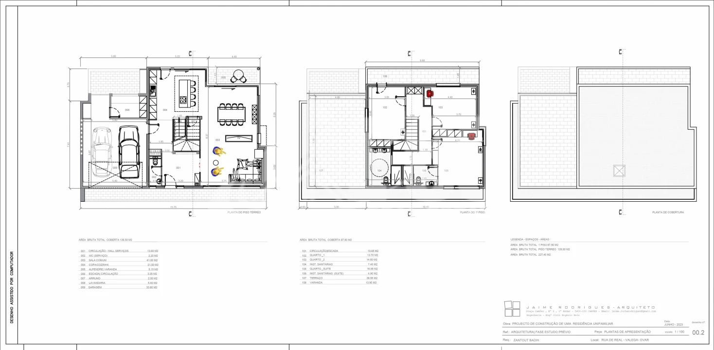
Terreno com Projeto Aprovado para Moradia – Válega, Ovar
Apresentamos este excelente terreno localizado em Válega, Ovar, com uma área total de 1.861 m², ideal para a construção de uma moradia de sonho.
O terreno já possui projeto aprovado, oferecendo uma oportunidade única para quem deseja construir uma casa personalizada num local tranquilo e bem localizado.
Com espaço amplo, este terreno permite a criação de áreas de lazer, jardim, piscina ou até mesmo uma zona de cultivo, garantindo conforto e privacidade.
Não perca esta oportunidade! Entre em contacto para mais informações ou para agendar uma visita.
Na Espaço60, acreditamos firmemente que a compra, venda ou arrendamento de uma propriedade vai além de uma simples transação - é a concretização de sonhos e aspirações. Com mais de 35 anos de experiência dedicada à mediação imobiliária exclusiva, consolidamos a nossa posição como líderes confiáveis neste setor em constante evolução.
A nossa equipa é formada por consultores profissionais apaixonados e experientes, cada um comprometido em oferecer um serviço personalizado e eficiente. Desde o primeiro contacto até à conclusão da transação, estamos ao seu lado, fornecendo orientação especializada e soluções à medida para satisfazer as suas necessidades únicas.
Na Espaço60, a transparência e a integridade são os pilares de todas as nossas ações. Valorizamos cada cliente e cada negociação, buscando construir relações de confiança baseadas em comunicação aberta, honestidade e resultados excecionais.
Ao escolher o Espaço60, está a optar por um parceiro confiável e dedicado que irá superar as suas expectativas e tornar o processo imobiliário uma experiência tranquila e gratificante. Estamos aqui para transformar os seus sonhos imobiliários em realidade.
Apresentamos este excelente terreno localizado em Válega, Ovar, com uma área total de 1.861 m², ideal para a construção de uma moradia de sonho.
O terreno já possui projeto aprovado, oferecendo uma oportunidade única para quem deseja construir uma casa personalizada num local tranquilo e bem localizado.
Com espaço amplo, este terreno permite a criação de áreas de lazer, jardim, piscina ou até mesmo uma zona de cultivo, garantindo conforto e privacidade.
Não perca esta oportunidade! Entre em contacto para mais informações ou para agendar uma visita.
Na Espaço60, acreditamos firmemente que a compra, venda ou arrendamento de uma propriedade vai além de uma simples transação - é a concretização de sonhos e aspirações. Com mais de 35 anos de experiência dedicada à mediação imobiliária exclusiva, consolidamos a nossa posição como líderes confiáveis neste setor em constante evolução.
A nossa equipa é formada por consultores profissionais apaixonados e experientes, cada um comprometido em oferecer um serviço personalizado e eficiente. Desde o primeiro contacto até à conclusão da transação, estamos ao seu lado, fornecendo orientação especializada e soluções à medida para satisfazer as suas necessidades únicas.
Na Espaço60, a transparência e a integridade são os pilares de todas as nossas ações. Valorizamos cada cliente e cada negociação, buscando construir relações de confiança baseadas em comunicação aberta, honestidade e resultados excecionais.
Ao escolher o Espaço60, está a optar por um parceiro confiável e dedicado que irá superar as suas expectativas e tornar o processo imobiliário uma experiência tranquila e gratificante. Estamos aqui para transformar os seus sonhos imobiliários em realidade.
Localização
Valega, Ovar, Aveiro
Informação do anúncio
ID do anúncio
1061387
Referência Externa
10250064
Atualizado em
21/02/2025 05:28:25
Anunciante
Chamada para a rede fixa nacional
E60 Real Estate
AMI 23515
Referência do imóvel:
10250064
Terreno para Venda em Valega