Voltar
Terreno para Venda em Venade e Azevedo Foto 1
Terreno para Venda em Venade e Azevedo Foto 2
Terreno para Venda em Venade e Azevedo Foto 3
Terreno para Venda em Venade e Azevedo Foto 4
Terreno para Venda em Venade e Azevedo Foto 5

Terreno para Venda em Venade e Azevedo

69.000 €

Tipo
Terreno
Negócio
Venda
Condição
Não Aplicável
Certificado Energético
Isento
Área do Terreno
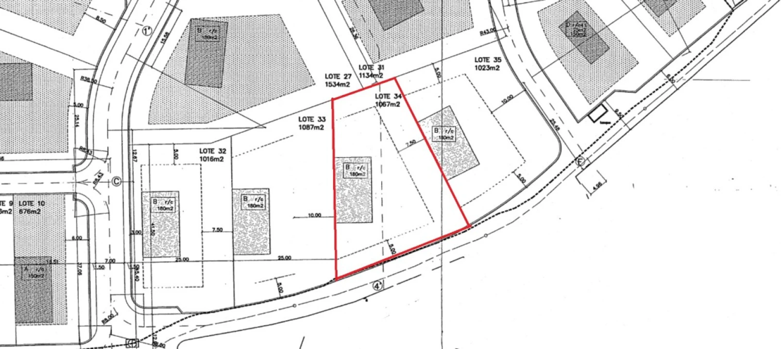
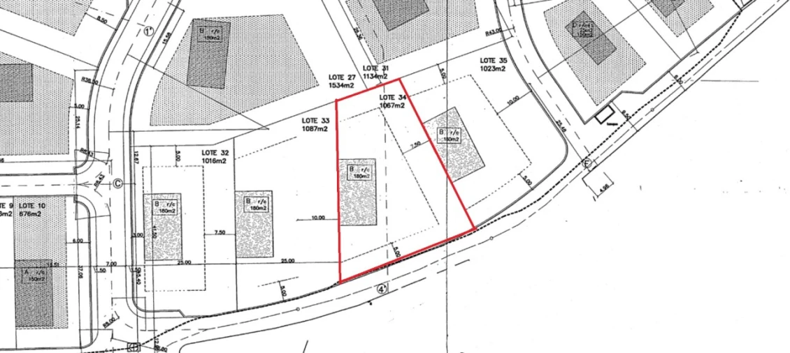
1067 m²

Lote destinado a construção, situado em Venade

Lote destinado a construção, situado na Urbanização Vale de Esquilos - Venade

O lote tem bom acesso, boa exposição solar e terreno plano.

Segundo o quadro Sinóptico permite a construção de uma moradia térrea com uma área de implantação de 180 M2 + 25 M2 de estacionamento coberto + anexo.

Venha visitar!

MITOS E REALIDADES - Sociedade de Mediação Imobiliária, Lda.

Licença AMI - 11024

Empresa do setor imobiliário que atua no mercado de Arrendamento e Venda de Imóveis.

Com um padrão de seriedade na prestação de serviços imobiliários, procura realizar bons negócios com eficiência, proporcionando assim, tranquilidade aos seus clientes.

A nossa equipa de colaboradores é formada por profissionais experientes, com vasto conhecimento para sugerir as melhores alternativas. Além disso, dispomos de um sistema totalmente informatizado, o que permite uma maior agilidade na pesquisa e adequação do perfil do imóvel às solicitações do cliente.

Apoiada pelo profissionalismo e seriedade, a MITOS está colocada entre as maiores imobiliárias de Viana do Castelo.

#mitos
#mitosimobiliaria
#imobiliária
#vianadocastelo
#realestate

Localização

Venade e Azevedo, Caminha, Viana do Castelo

Informação do anúncio

ID do anúncio 1070637
Referência Externa R990
Atualizado em 28/07/2025 13:19:28
Mitos - Mediação Imobiliária AMI 11024
Referência do imóvel: R990
Phone
Chamada para a rede fixa nacional
MITOS - Mediação Imobiliária, Lda.
Phone
Chamada para a rede móvel nacional
Mitos - Mediação Imobiliária AMI 11024
Referência do imóvel: R990
Phone
Chamada para a rede fixa nacional
MITOS - Mediação Imobiliária, Lda.
Phone
Chamada para a rede móvel nacional
1 / 6
Terreno para Venda em Venade e Azevedo Foto 1
Terreno para Venda em Venade e Azevedo Foto 2
Terreno para Venda em Venade e Azevedo Foto 3
Terreno para Venda em Venade e Azevedo Foto 4
Terreno para Venda em Venade e Azevedo Foto 5
Terreno para Venda em Venade e Azevedo Foto 6
Terreno para Venda em Venade e Azevedo
Clicky