Voltar
Terreno para Venda em Ramalde Foto 1
Terreno para Venda em Ramalde Foto 2
Terreno para Venda em Ramalde Foto 3
Terreno para Venda em Ramalde Foto 4
Terreno para Venda em Ramalde Foto 5

Terreno para Venda em Ramalde

410.000 €

Tipo
Terreno
Negócio
Venda
Condição
Em projecto
Certificado Energético
Isento
Área do Terreno
351 m²

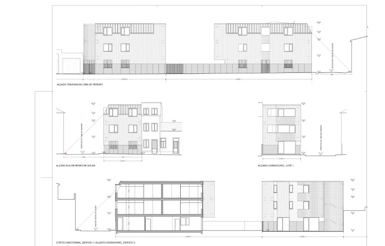
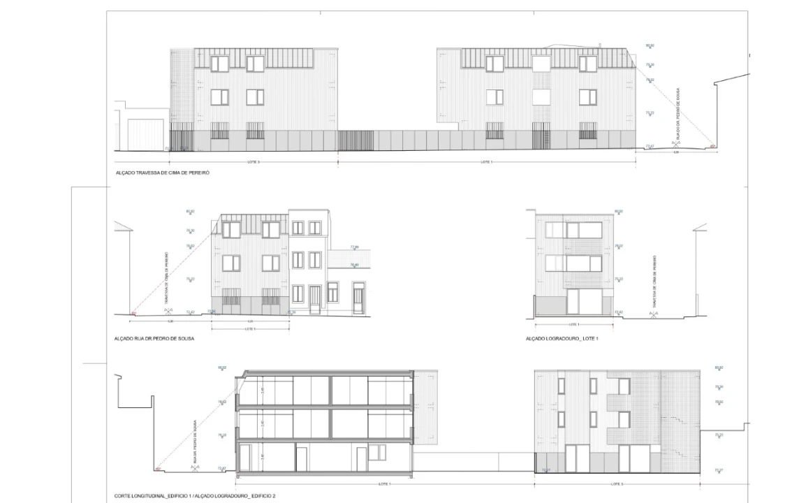
️ Terreno com Projeto Aprovado | Pereiró, Porto

️ Terreno com Projeto Aprovado | Pereiró, Porto

Terreno com projeto aprovado para a construção de prédio com 8 apartamentos T1 e T2,
localizado numa zona estratégica de Pereiró, próxima de serviços e transportes.

Excelente oportunidade para investimento ou desenvolvimento imobiliário.

Para mais informações, contacte o nosso escritório do Porto.

️️️
A PREDIAL LIZ - Sociedade de Mediação Imobiliária, com mais de 65 anos no mercado, sempre se dedicou à atividade imobiliária, a essa data pouco corrente no nosso País.
A forma correta e o dinamismo que sempre orientaram a sua Administração, granjearam-lhe desde logo uma reputação de honorabilidade que se tem considerado inalterada.
Ao longo dos anos e quer se trate de aquisições de pequenas residências, quer da comercialização de grandes empreendimentos, a Empresa soube sempre manter um nível de eficácia e diligência justificativa, por si só, do vasto leque de clientes que a procuram.
Empresas construtoras e Entidades Públicas da maior projeção têm-lhe concedido preferência na comercialização de seus empreendimentos e aquisição de imóveis para instalações próprias.
A sólida organização e a elevada capacidade técnica de quantos a integram conferiram à PREDIAL LIZ o prestígio social que hoje possui, dentro da sua área de atividade.
Excelentes instalações em edifícios próprios, situados nos melhores locais de Lisboa, Porto e Faro, facilitam consulta rápida aos seus ficheiros de propriedades.
Pessoal altamente especializado orienta, no melhor sentido, aplicações de capital e investimentos diversos a par de minucioso estudo e concretização da parte burocrática.
Tendo em conta uma diversificação geográfica, abrimos em 1992 a Delegação Norte, na cidade do Porto e em 1993, a Delegação Sul, na cidade de Faro.

Localização

Ramalde, Porto, Porto

Informação do anúncio

ID do anúncio 1086014
Referência Externa 16075-p
Atualizado em 14/12/2025 13:17:37
A Predial Liz - Sociedade Mediação Imobiliária, Lda AMI 442
Referência do imóvel: 16075-p
Phone
Chamada para a rede fixa nacional
Predial Liz Portugal
Predial Liz Portugal
Phone
Chamada para a rede móvel nacional
A Predial Liz - Sociedade Mediação Imobiliária, Lda AMI 442
Referência do imóvel: 16075-p
Phone
Chamada para a rede fixa nacional
Predial Liz Portugal
Predial Liz Portugal
Phone
Chamada para a rede móvel nacional
1 / 17
Terreno para Venda em Ramalde Foto 1
Terreno para Venda em Ramalde Foto 2
Terreno para Venda em Ramalde Foto 3
Terreno para Venda em Ramalde Foto 4
Terreno para Venda em Ramalde Foto 5
Terreno para Venda em Ramalde Foto 6
Terreno para Venda em Ramalde Foto 7
Terreno para Venda em Ramalde Foto 8
Terreno para Venda em Ramalde Foto 9
Terreno para Venda em Ramalde Foto 10
Terreno para Venda em Ramalde Foto 11
Terreno para Venda em Ramalde Foto 12
Terreno para Venda em Ramalde Foto 13
Terreno para Venda em Ramalde Foto 14
Terreno para Venda em Ramalde Foto 15
Terreno para Venda em Ramalde Foto 16
Terreno para Venda em Ramalde Foto 17
Clicky