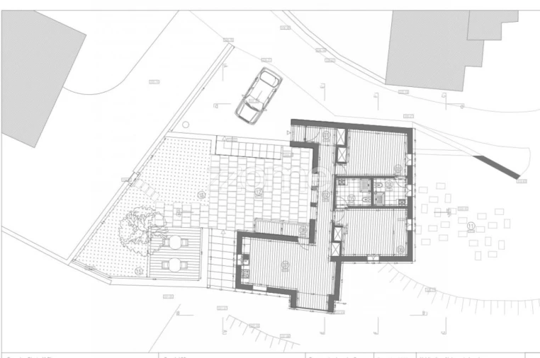
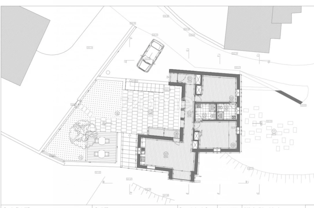
Moradia T3 para Venda em Raiva, Pedorido e Paraíso
77.000 €
Tipo
Moradia
Negócio
Venda
Quartos
3
Casas de Banho
1
Área Bruta
158 m²
Área Útil
158 m²
Condição
Para recuperar
Certificado Energético
Isento
Área do Terreno
900 m²
Descrição
Identificação do imóvel: ZMPT575147
ENCANTADORA CASA RURAL PARA RESTAURAR NO PARAÍSO - CASTELO DE PAIVA Descubra esta fantástica oportunidade de adquirir uma casa rural para restaurar, situada na pitoresca localidade de Paraíso, no concelho de Castelo de Paiva. Um verdadeiro refúgio rodeado pela serenidade da natureza, perfeito para quem procura tranquilidade ou deseja investir num projeto de turismo rural.
Localização Privilegiada e Acessos Excelentes:
A propriedade beneficia de uma localização estratégica, com ótimos acessos através da famosa EN222, considerada uma das estradas mais bonitas do mundo, ligando Castelo de Paiva ao Peso da Régua, ao longo do rio Douro. A estrada proporciona uma experiência única de condução, com vistas deslumbrantes sobre o vale do Douro e as vinhas em socalcos.
Pontos de Interesse e Distâncias:
- Passadiços do Paiva (aprox. 10 km) - Um dos maiores atrativos turísticos da região, com percursos pedestres de beleza incomparável.
- Praia Fluvial do Castelo (aprox. 8 km) - Zona de lazer junto ao rio, perfeita para dias de verão.
- Miradouro de Santa Mafalda (aprox. 12 km) - Vistas panorâmicas sobre o vale do Douro.
- Centro Histórico de Castelo de Paiva (aprox. 7 km) - Património cultural e tradições locais.
- Rota dos Vinhos Verdes (várias quintas a partir de 5 km) - Degustação e visita a vinhas típicas da região.
- Cidade do Porto (aprox. 50 km) - Acesso fácil pela EN222 e A32.
Uma Oportunidade com Potencial Infinito:
Esta casa rural para restaurar oferece um excelente potencial de valorização, quer para habitação própria, quer para alojamento local ou turismo rural. A envolvente natural, aliada à proximidade dos principais pontos turísticos e à icónica EN222, torna esta propriedade verdadeiramente especial.
Não perca esta oportunidade única!
Entre em contacto para mais informações e agende a sua visita.
3 razões para comprar com a Zome
+ acompanhamento
Com uma preparação e experiência única no mercado imobiliário, os consultores Zome põem toda a sua dedicação em dar-lhe o melhor acompanhamento, orientando-o com a máxima confiança, na direção certa das suas necessidades e ambições.
Daqui para a frente, vamos criar uma relação próxima e escutar com atenção as suas expectativas, porque a nossa prioridade é a sua felicidade! Porque é importante que sinta que está acompanhado, e que estamos consigo sempre.
+ simples
Os consultores Zome têm uma formação única no mercado, ancorada na partilha de experiência prática entre profissionais e fortalecida pelo conhecimento de neurociência aplicada que lhes permite simplificar e tornar mais eficaz a sua experiência imobiliária.
Deixe para trás os pesadelos burocráticos porque na Zome encontra o apoio total de uma equipa experiente e multidisciplinar que lhe dá suporte prático em todos os aspetos fundamentais, para que a sua experiência imobiliária supere as expectativas.
+ feliz
O nosso maior valor é entregar-lhe felicidade!
Liberte-se de preocupações e ganhe o tempo de qualidade que necessita para se dedicar ao que lhe faz mais feliz.
Agimos diariamente para trazer mais valor à sua vida com o aconselhamento fiável de que precisa para, juntos, conseguirmos atingir os melhores resultados.
Com a Zome nunca vai estar perdido ou desacompanhado e encontrará algo que não tem preço: a sua máxima tranquilidade!
É assim que se vai sentir ao longo de toda a experiência: Tranquilo, seguro, confortável e... FELIZ!
Notas:
1. Caso seja um consultor imobiliário, este imóvel está disponível para partilha de negócio. Não hesite em apresentar aos seus clientes compradores e fale connosco para agendar a sua visita.
2. Para maior facilidade na identificação deste imóvel, por favor, refira o respetivo ID ZMPT ou o respetivo agente que lhe tenha enviado a sugestão.
ENCANTADORA CASA RURAL PARA RESTAURAR NO PARAÍSO - CASTELO DE PAIVA Descubra esta fantástica oportunidade de adquirir uma casa rural para restaurar, situada na pitoresca localidade de Paraíso, no concelho de Castelo de Paiva. Um verdadeiro refúgio rodeado pela serenidade da natureza, perfeito para quem procura tranquilidade ou deseja investir num projeto de turismo rural.
Localização Privilegiada e Acessos Excelentes:
A propriedade beneficia de uma localização estratégica, com ótimos acessos através da famosa EN222, considerada uma das estradas mais bonitas do mundo, ligando Castelo de Paiva ao Peso da Régua, ao longo do rio Douro. A estrada proporciona uma experiência única de condução, com vistas deslumbrantes sobre o vale do Douro e as vinhas em socalcos.
Pontos de Interesse e Distâncias:
- Passadiços do Paiva (aprox. 10 km) - Um dos maiores atrativos turísticos da região, com percursos pedestres de beleza incomparável.
- Praia Fluvial do Castelo (aprox. 8 km) - Zona de lazer junto ao rio, perfeita para dias de verão.
- Miradouro de Santa Mafalda (aprox. 12 km) - Vistas panorâmicas sobre o vale do Douro.
- Centro Histórico de Castelo de Paiva (aprox. 7 km) - Património cultural e tradições locais.
- Rota dos Vinhos Verdes (várias quintas a partir de 5 km) - Degustação e visita a vinhas típicas da região.
- Cidade do Porto (aprox. 50 km) - Acesso fácil pela EN222 e A32.
Uma Oportunidade com Potencial Infinito:
Esta casa rural para restaurar oferece um excelente potencial de valorização, quer para habitação própria, quer para alojamento local ou turismo rural. A envolvente natural, aliada à proximidade dos principais pontos turísticos e à icónica EN222, torna esta propriedade verdadeiramente especial.
Não perca esta oportunidade única!
Entre em contacto para mais informações e agende a sua visita.
3 razões para comprar com a Zome
+ acompanhamento
Com uma preparação e experiência única no mercado imobiliário, os consultores Zome põem toda a sua dedicação em dar-lhe o melhor acompanhamento, orientando-o com a máxima confiança, na direção certa das suas necessidades e ambições.
Daqui para a frente, vamos criar uma relação próxima e escutar com atenção as suas expectativas, porque a nossa prioridade é a sua felicidade! Porque é importante que sinta que está acompanhado, e que estamos consigo sempre.
+ simples
Os consultores Zome têm uma formação única no mercado, ancorada na partilha de experiência prática entre profissionais e fortalecida pelo conhecimento de neurociência aplicada que lhes permite simplificar e tornar mais eficaz a sua experiência imobiliária.
Deixe para trás os pesadelos burocráticos porque na Zome encontra o apoio total de uma equipa experiente e multidisciplinar que lhe dá suporte prático em todos os aspetos fundamentais, para que a sua experiência imobiliária supere as expectativas.
+ feliz
O nosso maior valor é entregar-lhe felicidade!
Liberte-se de preocupações e ganhe o tempo de qualidade que necessita para se dedicar ao que lhe faz mais feliz.
Agimos diariamente para trazer mais valor à sua vida com o aconselhamento fiável de que precisa para, juntos, conseguirmos atingir os melhores resultados.
Com a Zome nunca vai estar perdido ou desacompanhado e encontrará algo que não tem preço: a sua máxima tranquilidade!
É assim que se vai sentir ao longo de toda a experiência: Tranquilo, seguro, confortável e... FELIZ!
Notas:
1. Caso seja um consultor imobiliário, este imóvel está disponível para partilha de negócio. Não hesite em apresentar aos seus clientes compradores e fale connosco para agendar a sua visita.
2. Para maior facilidade na identificação deste imóvel, por favor, refira o respetivo ID ZMPT ou o respetivo agente que lhe tenha enviado a sugestão.
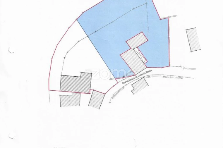
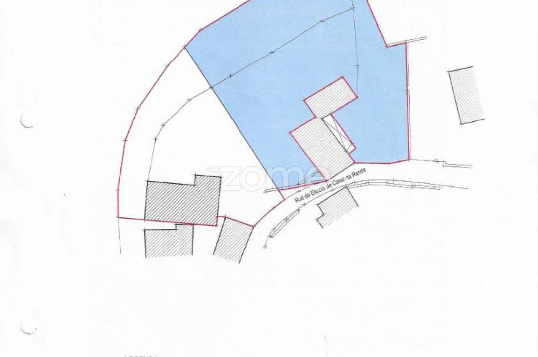
Localização
Casal da Renda
Raiva, Pedorido e Paraíso, Castelo de Paiva, Aveiro
A localização exacta do imóvel não está disponível. O mapa apresenta a zona aproximada.
Informação do anúncio
ID do anúncio
1099433
Referência Externa
ZMPT575147
Atualizado em
25/02/2026 07:01:33
Anunciante
Chamada para a rede fixa nacional
ZOME Porto - CEC
AMI 17432
Referência do imóvel:
ZMPT575147
Moradia T3 para Venda em Raiva, Pedorido e Paraíso