Voltar
Terreno para Venda em Casais Brancos Foto 1
Terreno para Venda em Casais Brancos Foto 2
Terreno para Venda em Casais Brancos Foto 3
Terreno para Venda em Casais Brancos Foto 4
Terreno para Venda em Casais Brancos Foto 5

Terreno para Venda em Casais Brancos

96.000 €

Tipo
Terreno
Negócio
Venda
Área do Terreno
730 m²

Lote de terreno com 730m2 - Peniche

Lote de terreno com 730m2 - Peniche

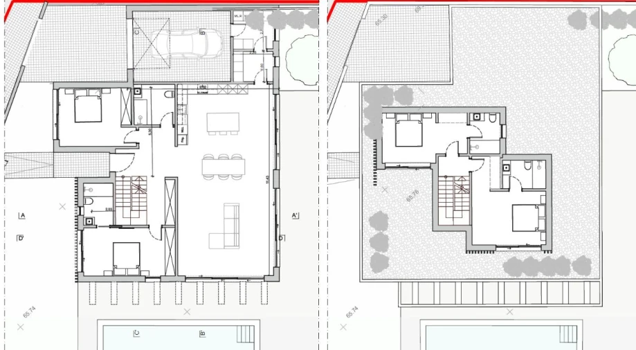
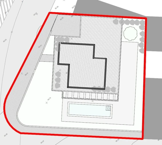
Terreno para construção de moradia unifamilar com garagem e piscina, de tipologia T4, composta por dois pisos.
Neste momento encontra-se em aprovação na Câmara Municipal de Peniche o projeto que consta nas fotos do anúncio.

Para quem aprecia o sossego e o bem-estar, longe das grandes cidades, no entanto, perto das praias e de todos os serviços essenciais.

Excelente oportunidade para investimento.

Localização

Atouguia da Baleia, Peniche, Leiria

Informação do anúncio

ID do anúncio 1100499
Referência Externa RVC2898
Atualizado em 17/03/2025 12:39:52
Rainhavip - Mediação Imobiliária, Lda. AMI 6716
Referência do imóvel: RVC2898
Phone
Chamada para a rede móvel nacional
Rainhavip - Mediação Imobiliária, Lda. AMI 6716
Referência do imóvel: RVC2898
Phone
Chamada para a rede móvel nacional
1 / 7
Terreno para Venda em Casais Brancos Foto 1
Terreno para Venda em Casais Brancos Foto 2
Terreno para Venda em Casais Brancos Foto 3
Terreno para Venda em Casais Brancos Foto 4
Terreno para Venda em Casais Brancos Foto 5
Terreno para Venda em Casais Brancos Foto 6
Terreno para Venda em Casais Brancos Foto 7
Terreno para Venda em Casais Brancos
Clicky