Terreno para Venda em São Felix da Marinha
7.500.000 €
Tipo
Terreno
Negócio
Venda
Área Bruta
11920 m²
Área Útil
11920 m²
Condição
Para Obras
Certificado Energético
Não aplicável
Área do Terreno
11920 m²
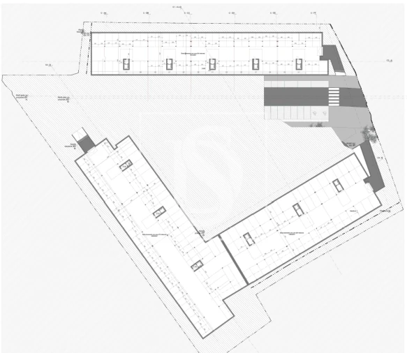
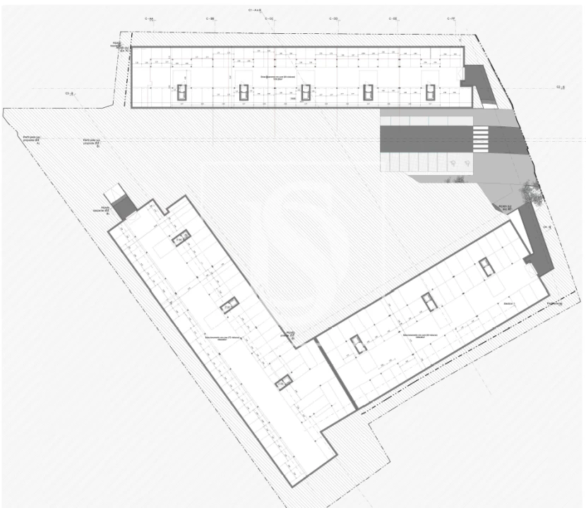
Terreno para com vista mar em São Felix da Marinha 23.403 de área construtiva
Oportunidade Prime para Construtoras e Investidores Terreno de 11.920 m² na Praia de São Félix da Marinha com Potencial para 23.000 m² de Construção!
Apresentamos um terreno exclusivo de 11.920 m², localizado na deslumbrante Praia de São Félix da Marinha, uma das áreas mais valorizadas do litoral. Com um projeto aprovado para dois prédios com apartamentos de alto padrão e vista mar, este é um investimento imperdível para construtoras que buscam desenvolver empreendimentos de luxo em uma localização privilegiada.
Destaques do Terreno:
Projeto para Dois Prédios Modernos Ideal para apartamentos premium com varandas panorâmicas e vistas deslumbrantes para o oceano.
Potencial Construtivo de 23.000 m² Oportunidade para desenvolver um empreendimento exclusivo, aproveitando ao máximo a valorização da região.
Localização de Alto Prestígio Frente marítima, com acesso direto à praia, ciclovias, restaurantes e zonas de lazer.
Mercado Imobiliário Aquecido Preço médio de venda na região para apartamentos com vista mar superior a 3.900 /m², garantindo alta rentabilidade.
Infraestrutura Completa Fácil acesso a vias principais, transportes públicos e serviços essenciais, tornando o projeto ainda mais atrativo para futuros compradores.
Transforme este espaço em um empreendimento de referência na linha costeira!
Em São Félix da Marinha, o preço médio de venda de apartamentos é de aproximadamente 3.536 /m². Para apartamentos com vista para o mar, os valores tendem a ser superiores, refletindo a valorização adicional proporcionada pela localização privilegiada.
Entre em contato agora para mais informações e agendamento de visita!
Apresentamos um terreno exclusivo de 11.920 m², localizado na deslumbrante Praia de São Félix da Marinha, uma das áreas mais valorizadas do litoral. Com um projeto aprovado para dois prédios com apartamentos de alto padrão e vista mar, este é um investimento imperdível para construtoras que buscam desenvolver empreendimentos de luxo em uma localização privilegiada.
Destaques do Terreno:
Projeto para Dois Prédios Modernos Ideal para apartamentos premium com varandas panorâmicas e vistas deslumbrantes para o oceano.
Potencial Construtivo de 23.000 m² Oportunidade para desenvolver um empreendimento exclusivo, aproveitando ao máximo a valorização da região.
Localização de Alto Prestígio Frente marítima, com acesso direto à praia, ciclovias, restaurantes e zonas de lazer.
Mercado Imobiliário Aquecido Preço médio de venda na região para apartamentos com vista mar superior a 3.900 /m², garantindo alta rentabilidade.
Infraestrutura Completa Fácil acesso a vias principais, transportes públicos e serviços essenciais, tornando o projeto ainda mais atrativo para futuros compradores.
Transforme este espaço em um empreendimento de referência na linha costeira!
Em São Félix da Marinha, o preço médio de venda de apartamentos é de aproximadamente 3.536 /m². Para apartamentos com vista para o mar, os valores tendem a ser superiores, refletindo a valorização adicional proporcionada pela localização privilegiada.
Entre em contato agora para mais informações e agendamento de visita!
Localização
São Felix da Marinha, Vila Nova de Gaia, Porto
Informação do anúncio
ID do anúncio
1114478
Referência Externa
DSVNGCANCL27
Atualizado em
24/03/2026 01:36:20
Anunciante
Chamada para a rede móvel nacional
Decisões e Soluções Gaia Candal
AMI 19759
Referência do imóvel:
DSVNGCANCL27
Terreno para Venda em São Felix da Marinha