Voltar
Armazém para Venda em São João da Madeira Foto 1
Armazém para Venda em São João da Madeira Foto 2
Armazém para Venda em São João da Madeira Foto 3
Armazém para Venda em São João da Madeira Foto 4
Armazém para Venda em São João da Madeira Foto 5

Armazém para Venda em São João da Madeira

1.400.000 €

Tipo
Armazém
Negócio
Venda
Ano de Construção
2016
Casas de Banho
4
Área Útil
2572 m²
Condição
Como novo
Certificado Energético
Isento
Área do Terreno
2572 m²

Pavilhão Industrial Moderno à Venda em São João da Madeira

Oportunidade Única! Pavilhão Industrial Moderno à Venda em São João da Madeira

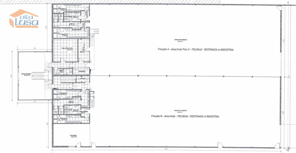
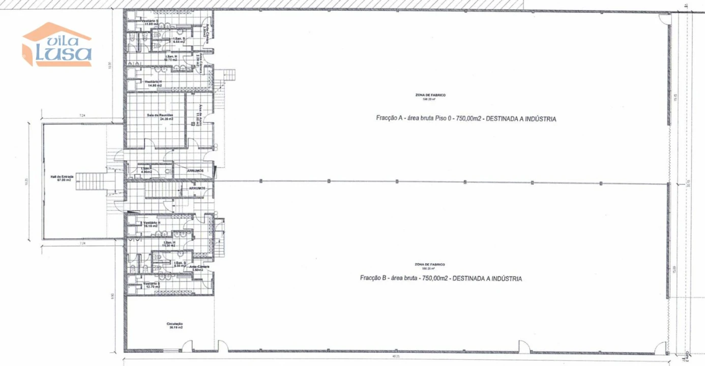
Venda de armazém industrial semi-novo, com arquitetura moderna, localizado na prestigiada zona industrial de São João da Madeira, junto à EN1 e com ligação direta à A32 e A1 — garantindo excelente acessibilidade logística

O imóvel é composto por duas frações contíguas (aprox. 870m² cada), totalizando cerca de 1.740m² de área bruta privativa, sobre um terreno de 4.600m². Esta configuração permite utilização própria e/ou arrendamento parcial, otimizando o seu investimento,,,,,,

Características principais

Pé direito: 6m nas extremidades, 7m na zona central

Hall de entrada independente

Zona de produção ampla e funcional

Instalações sanitárias completas

Piso superior com escritórios, salas de reunião e áreas técnicas

Logradouro com 8 lugares de estacionamento,

Área traseira para manobras de camiões e cargas pesadas

Área exterior de 99,10m².

Este pavilhão é ideal para empresas industriais, logísticas ou de armazenagem que valorizem qualidade construtiva, localização estratégica e versatilidade operacional.

Não perca esta oportunidade! Agende já a sua visita e conheça de perto o espaço ideal para impulsionar o seu negócio

Localização

São João da Madeira, São João da Madeira, Aveiro

Informação do anúncio

ID do anúncio 1144850
Referência Externa 801257009
Atualizado em 12/01/2026 09:01:35
Loja 01 - VILA LUSA - Gaia AMI 7917
Referência do imóvel: 801257009
Phone
Chamada para a rede fixa nacional
Loja 01 - VILA LUSA - Gaia AMI 7917
Referência do imóvel: 801257009
Phone
Chamada para a rede fixa nacional
1 / 27
Armazém para Venda em São João da Madeira Foto 1
Armazém para Venda em São João da Madeira Foto 2
Armazém para Venda em São João da Madeira Foto 3
Armazém para Venda em São João da Madeira Foto 4
Armazém para Venda em São João da Madeira Foto 5
Armazém para Venda em São João da Madeira Foto 6
Armazém para Venda em São João da Madeira Foto 7
Armazém para Venda em São João da Madeira Foto 8
Armazém para Venda em São João da Madeira Foto 9
Armazém para Venda em São João da Madeira Foto 10
Armazém para Venda em São João da Madeira Foto 11
Armazém para Venda em São João da Madeira Foto 12
Armazém para Venda em São João da Madeira Foto 13
Armazém para Venda em São João da Madeira Foto 14
Armazém para Venda em São João da Madeira Foto 15
Armazém para Venda em São João da Madeira Foto 16
Armazém para Venda em São João da Madeira Foto 17
Armazém para Venda em São João da Madeira Foto 18
Armazém para Venda em São João da Madeira Foto 19
Armazém para Venda em São João da Madeira Foto 20
Armazém para Venda em São João da Madeira Foto 21
Armazém para Venda em São João da Madeira Foto 22
Armazém para Venda em São João da Madeira Foto 23
Armazém para Venda em São João da Madeira Foto 24
Armazém para Venda em São João da Madeira Foto 25
Armazém para Venda em São João da Madeira Foto 26
Armazém para Venda em São João da Madeira Foto 27
Clicky