Armazém para Venda em Sacavém e Prior Velho
8.000.000 €
Tipo
Armazém
Negócio
Venda
Casas de Banho
10
Área Bruta
8895 m²
Área Útil
8800 m²
Condição
Em construção
Certificado Energético
Isento
Área do Terreno
4820 m²
Edificio Industrial, Logístico, Serviços, e Escritórios, unidade multifuncional, junto ao
Edifício Multifuncional Industrial / Logistica / Serviços em construção - Oportunidade de investimento - no mercado de Indústria, e Logística, que continua a apresentar uma tendência de crescimento e procura por parte dos investidores, com foco em projetos diferenciados e de qualidade, com soluções mais sustentáveis, como é o caso deste edifício.
A produção, montagem, armazenamento e gestão de stock fora da Europa tem originado roturas, pelo que a preocupação em responder às necessidades locais tem sofrido um impacto relevante no sector logístico.
Dada a sua localização específica e proximidade aos mercados nacionais e europeus, este edifício de elevada qualidade construtiva, e dimensão, é único neste sentido, por ter a capacidade de satisfazer todas estas necessidades, pois está literalmente ao lado do Aeroporto de Lisboa, está próximo do Porto Marítimo da cidade, e é servido pelos melhores acessos a qualquer zona do país a partir do Prior Velho, através da A-1, A2, CRIL, CREL, A-8, A-12.
Esta localização coloca o ativo na categoria de 'last-mile prime' da Grande Lisboa, um segmento com procura estrutural a outstripar a oferta disponível nos últimos anos. ( a procura excede de forma consistente a oferta disponível: há mais operadores a querer espaços lastmile de qualidade na Grande Lisboa do que armazéns adequados para os receber)
Reúne espaço para escritórios modernos no piso 1 e 2, destinados à gestão e otimização de toda a atividade, oferecendo serviços mais personalizados, tecnológicos e eficientes, com armazéns no piso térreo cujo acesso é efetuado através de três cais de carga/descarga, e na cave, com um pé direito de 8,5 m, sendo munido de elevadores monta-cargas e 2 de serviço bem como copa, wc's e balneários, vestiários e demais instalações de apoio à atividade, tudo no mesmo edifício,
O edifício, cuja construção se encontra concluída a nível de estrutura e alvenarias, 36% pode agora ser totalmente adaptado às necessidades específicas do investidor, nomeadamente, indústria, serviços, armazenamento, logística e distribuição, data center, etc
O investidor deverá executar vãos exteriores e interiores, redes de águas e esgotos, instalação elétrica, elevadores e monta-cargas, revestimentos, equipamentos e arranjos exteriores genericamente 63,5% da obra.
Qualidade construtiva superior (pé direito 8,85 m na cave, 3 cais de carga/descarga, previsão de elevadores monta-cargas, estrutura preparada para data center), incomparavelmente distinta de ativos de construção antiga existentes no mercado.
Área total construída de 8.895 m2 organizada por pisos:
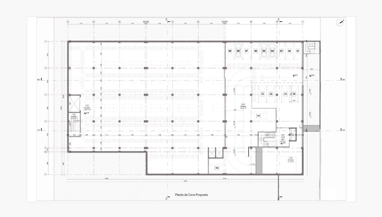
- Cave: 2.705,56 m2 Pé direito 8,85 m ( armazenamento cap. até 2.295 paletes, garagem, arrumos, serviços)
- Mezzaninne: 745,08 m2; Pé direito 3,95 m( escritórios, suporte técnico, vestiários, balneários )
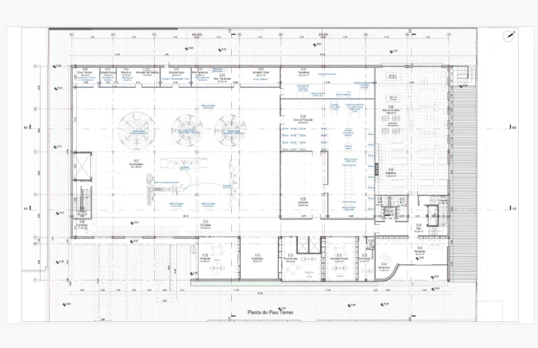
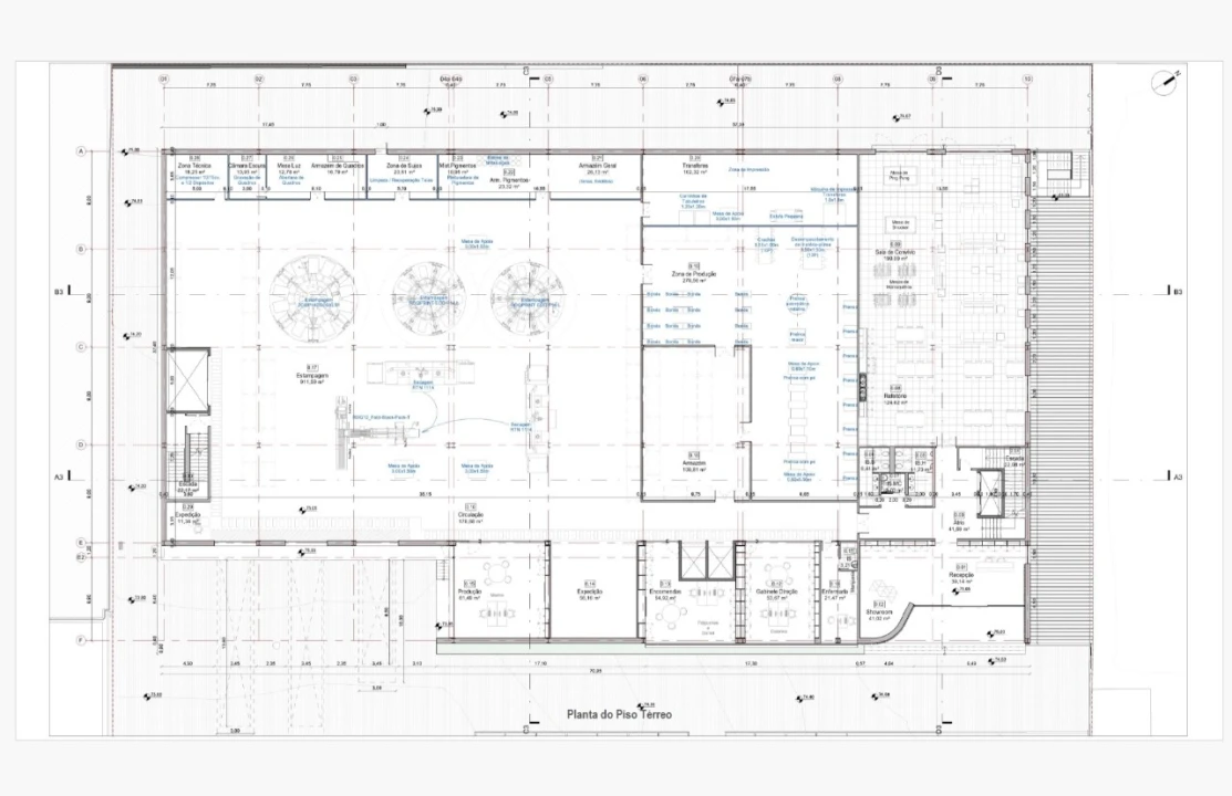
- Piso Térreo: 2.677,18 m2; Pé direito 3,80 m( cap. até 336 paletes, receção, átrio, g. direção, showroom, armazém, transferes, z. Técnica, produção montagem, comércio, expedição)
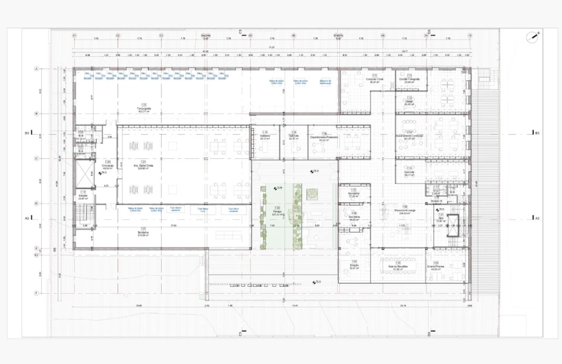
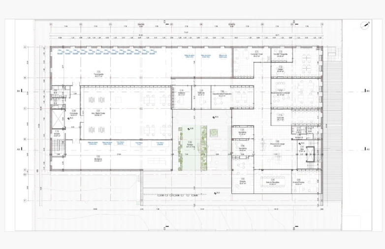
- Piso 1: 2.215,69 m2; Pé direito 3 m ( cap. até 99 paletes, Lounge, Serviços financeiros, direção / Serv. Comerciais / investigação )
Piso 2: 551,92 m2; (Exposição e Marketing, formação e copa do Staff, atividades promocionais, roof top para eventos e conferências ).
Total do Lote 4.820 m2
Implantação 2.705 m2
Cargas admitidas:
Sobrecarga no piso 0 - 5,00 kN/m2
Sobrecarga no piso intermédio e piso 1 - 4,00 kN/m2
Sobrecarga nas coberturas - 3,00 kN/m2
Estacionamentos
Em cave - 15 lugares ligeiros
No exterior - 14 lugares ligeiros
No exterior - 3 lugares pesados
CE - Isento (de acordo nº2, art.18º, Dec Lei 101-D/2020)
Não subestime esta oportunidade.
A decisão a tomar não é apenas financeira é estrutural para o posicionamento de qualquer empresa nos próximos 20 anos, e constituirá uma vantagem competitiva única.
Optar por um compromisso apenas a médio prazo seria perder uma rara vantagem competitiva sustentável a longo prazo que a aquisição deste imóvel configura, preenchendo todas as necessidades de que possam carecer.
Catchment urbano de > 2.000.000 de consumidores (Área Metropolitana de Lisboa) a menos de 20 minutos;
Contate-nos hoje mesmo para agendar visita ou solicitar qualquer outra informação que repute relevante.
A produção, montagem, armazenamento e gestão de stock fora da Europa tem originado roturas, pelo que a preocupação em responder às necessidades locais tem sofrido um impacto relevante no sector logístico.
Dada a sua localização específica e proximidade aos mercados nacionais e europeus, este edifício de elevada qualidade construtiva, e dimensão, é único neste sentido, por ter a capacidade de satisfazer todas estas necessidades, pois está literalmente ao lado do Aeroporto de Lisboa, está próximo do Porto Marítimo da cidade, e é servido pelos melhores acessos a qualquer zona do país a partir do Prior Velho, através da A-1, A2, CRIL, CREL, A-8, A-12.
Esta localização coloca o ativo na categoria de 'last-mile prime' da Grande Lisboa, um segmento com procura estrutural a outstripar a oferta disponível nos últimos anos. ( a procura excede de forma consistente a oferta disponível: há mais operadores a querer espaços lastmile de qualidade na Grande Lisboa do que armazéns adequados para os receber)
Reúne espaço para escritórios modernos no piso 1 e 2, destinados à gestão e otimização de toda a atividade, oferecendo serviços mais personalizados, tecnológicos e eficientes, com armazéns no piso térreo cujo acesso é efetuado através de três cais de carga/descarga, e na cave, com um pé direito de 8,5 m, sendo munido de elevadores monta-cargas e 2 de serviço bem como copa, wc's e balneários, vestiários e demais instalações de apoio à atividade, tudo no mesmo edifício,
O edifício, cuja construção se encontra concluída a nível de estrutura e alvenarias, 36% pode agora ser totalmente adaptado às necessidades específicas do investidor, nomeadamente, indústria, serviços, armazenamento, logística e distribuição, data center, etc
O investidor deverá executar vãos exteriores e interiores, redes de águas e esgotos, instalação elétrica, elevadores e monta-cargas, revestimentos, equipamentos e arranjos exteriores genericamente 63,5% da obra.
Qualidade construtiva superior (pé direito 8,85 m na cave, 3 cais de carga/descarga, previsão de elevadores monta-cargas, estrutura preparada para data center), incomparavelmente distinta de ativos de construção antiga existentes no mercado.
Área total construída de 8.895 m2 organizada por pisos:
- Cave: 2.705,56 m2 Pé direito 8,85 m ( armazenamento cap. até 2.295 paletes, garagem, arrumos, serviços)
- Mezzaninne: 745,08 m2; Pé direito 3,95 m( escritórios, suporte técnico, vestiários, balneários )
- Piso Térreo: 2.677,18 m2; Pé direito 3,80 m( cap. até 336 paletes, receção, átrio, g. direção, showroom, armazém, transferes, z. Técnica, produção montagem, comércio, expedição)
- Piso 1: 2.215,69 m2; Pé direito 3 m ( cap. até 99 paletes, Lounge, Serviços financeiros, direção / Serv. Comerciais / investigação )
Piso 2: 551,92 m2; (Exposição e Marketing, formação e copa do Staff, atividades promocionais, roof top para eventos e conferências ).
Total do Lote 4.820 m2
Implantação 2.705 m2
Cargas admitidas:
Sobrecarga no piso 0 - 5,00 kN/m2
Sobrecarga no piso intermédio e piso 1 - 4,00 kN/m2
Sobrecarga nas coberturas - 3,00 kN/m2
Estacionamentos
Em cave - 15 lugares ligeiros
No exterior - 14 lugares ligeiros
No exterior - 3 lugares pesados
CE - Isento (de acordo nº2, art.18º, Dec Lei 101-D/2020)
Não subestime esta oportunidade.
A decisão a tomar não é apenas financeira é estrutural para o posicionamento de qualquer empresa nos próximos 20 anos, e constituirá uma vantagem competitiva única.
Optar por um compromisso apenas a médio prazo seria perder uma rara vantagem competitiva sustentável a longo prazo que a aquisição deste imóvel configura, preenchendo todas as necessidades de que possam carecer.
Catchment urbano de > 2.000.000 de consumidores (Área Metropolitana de Lisboa) a menos de 20 minutos;
Contate-nos hoje mesmo para agendar visita ou solicitar qualquer outra informação que repute relevante.
Localização
Sacavém e Prior Velho, Loures, Lisboa
Informação do anúncio
ID do anúncio
1148455
Referência Externa
1141306/25LA
Atualizado em
28/04/2026 06:45:58
Anunciante
Chamada para a rede fixa nacional
Arcada Arroios
AMI 24184
Referência do imóvel:
1141306/25LA
Armazém para Venda em Sacavém e Prior Velho
Vídeo