Moradia T3 para Venda em Milharado
350.000 €
Tipo
Moradia
Negócio
Venda
Quartos
3
Casas de Banho
3
Área Bruta
115 m²
Área Útil
115 m²
Certificado Energético
N/A
Área do Terreno
123 m²
Moradia Geminada T3 em Construção – Milharado, Mafra
Apresentamos esta fantástica moradia geminada T3, em construção, situada em Milharado, no concelho de Mafra, ideal para quem procura conforto, modernidade e tranquilidade numa zona em crescimento e excelentes acessos.
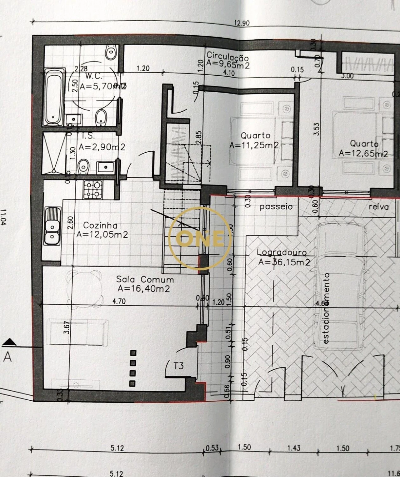
Com uma área de construção de 115 m², esta moradia distribui-se de forma funcional e harmoniosa por dois pisos.
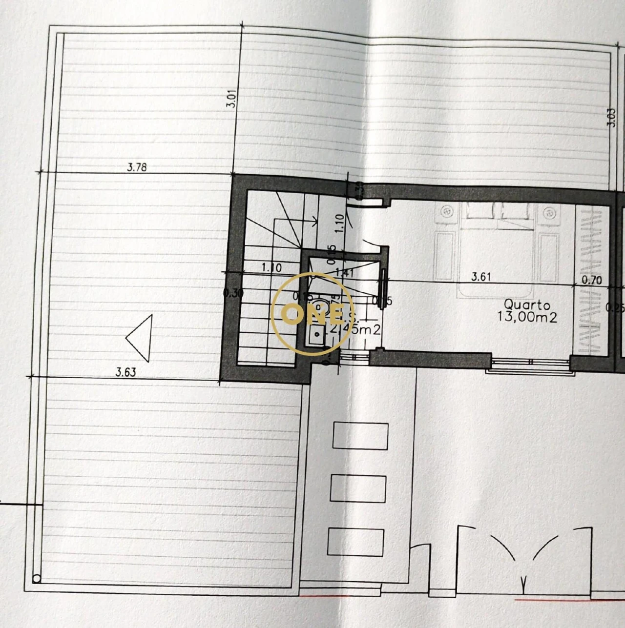
No rés-do-chão com área de implantação de 87,26m2, encontra uma sala de estar, cozinha equipada, 2 quartos, 2 WC e um logradouro com 36,15m2, possibilitando estacionamento para uma viatura. O primeiro andar dispõe de uma suíte com uma área útil de 15,45m2.
Principais características:
• Tipologia T3 (2 quartos + 1 suíte)
• 3 casas de banho
• Sala ampla e luminosa
• Cozinha funcional
• Logradouro com estacionamento (1 carro)
Inserida numa zona calma e com bons acessos, esta é uma excelente oportunidade para quem procura viver perto da natureza, sem abdicar da proximidade à praia e à cidade de Lisboa.
Estas moradias já se encontram em fase de construção, com previsão de finalização para o fim do próxmo ano.
Brevemente iremos disponibilizar mais fotos e um modelo 3D.
Não perca esta oportunidade. Agende já a sua visita!
Contacte-nos para mais informações.
A Realty One Group, é a marca que mais cresce nos Estados Unidos, com mais de 20 anos, em 26 países.
O presidente da Realty One Group é o Vinnie Tracey, que foi presidente durante 40 anos de uma das marcas líderes mundiais, e hoje é o Líder da Realty One Group, que com toda sua experiência esta a tornar a Realty One Group, uma das marcas Líderes nos Estados Unidos, e que já há alguns anos se espalha para todo mundo...
Motivos para escolher a ONE
AS PESSOAS PRIMEIRO..
Contamos com vários anos, com vários agentes premiados.
-Os consultores têm formação de alto nível nacional e internacional, como os melhores formadores nacionais e internacionais, em todas vertentes do negócio, e de forma gratuita para o poder ajudar com mais eficiência.
“Enquanto usufrui dos prazeres da sua vida, compre e venda o seu imóvel de forma rápida e segura...”
ONE house, ONE dream, ONE life (style)
Com uma área de construção de 115 m², esta moradia distribui-se de forma funcional e harmoniosa por dois pisos.
No rés-do-chão com área de implantação de 87,26m2, encontra uma sala de estar, cozinha equipada, 2 quartos, 2 WC e um logradouro com 36,15m2, possibilitando estacionamento para uma viatura. O primeiro andar dispõe de uma suíte com uma área útil de 15,45m2.
Principais características:
• Tipologia T3 (2 quartos + 1 suíte)
• 3 casas de banho
• Sala ampla e luminosa
• Cozinha funcional
• Logradouro com estacionamento (1 carro)
Inserida numa zona calma e com bons acessos, esta é uma excelente oportunidade para quem procura viver perto da natureza, sem abdicar da proximidade à praia e à cidade de Lisboa.
Estas moradias já se encontram em fase de construção, com previsão de finalização para o fim do próxmo ano.
Brevemente iremos disponibilizar mais fotos e um modelo 3D.
Não perca esta oportunidade. Agende já a sua visita!
Contacte-nos para mais informações.
A Realty One Group, é a marca que mais cresce nos Estados Unidos, com mais de 20 anos, em 26 países.
O presidente da Realty One Group é o Vinnie Tracey, que foi presidente durante 40 anos de uma das marcas líderes mundiais, e hoje é o Líder da Realty One Group, que com toda sua experiência esta a tornar a Realty One Group, uma das marcas Líderes nos Estados Unidos, e que já há alguns anos se espalha para todo mundo...
Motivos para escolher a ONE
AS PESSOAS PRIMEIRO..
Contamos com vários anos, com vários agentes premiados.
-Os consultores têm formação de alto nível nacional e internacional, como os melhores formadores nacionais e internacionais, em todas vertentes do negócio, e de forma gratuita para o poder ajudar com mais eficiência.
“Enquanto usufrui dos prazeres da sua vida, compre e venda o seu imóvel de forma rápida e segura...”
ONE house, ONE dream, ONE life (style)
Localização
Milharado, Mafra, Lisboa
Informação do anúncio
ID do anúncio
1168185
Referência Externa
ONE421714-1
Atualizado em
25/04/2026 23:21:47
Anunciante
Chamada para a rede fixa nacional
Realty ONE Group Family
AMI 25209
Referência do imóvel:
ONE421714-1
Moradia T3 para Venda em Milharado