Voltar
Loja para Venda em Cedofeita, Santo Ildefonso, Sé, Miragaia, São Nicolau e Vitória Foto 1
Loja para Venda em Cedofeita, Santo Ildefonso, Sé, Miragaia, São Nicolau e Vitória Foto 2
Loja para Venda em Cedofeita, Santo Ildefonso, Sé, Miragaia, São Nicolau e Vitória Foto 3
Loja para Venda em Cedofeita, Santo Ildefonso, Sé, Miragaia, São Nicolau e Vitória Foto 4
Loja para Venda em Cedofeita, Santo Ildefonso, Sé, Miragaia, São Nicolau e Vitória Foto 5

Loja para Venda em Cedofeita, Santo Ildefonso, Sé, Miragaia, São Nicolau e Vitória

8.000.000 €

Tipo
Loja
Negócio
Venda
Ano de Construção
1951
Quartos
10
Área Bruta
3226 m²
Área Útil
3226 m²
Condição
Novo
Certificado Energético
Isento

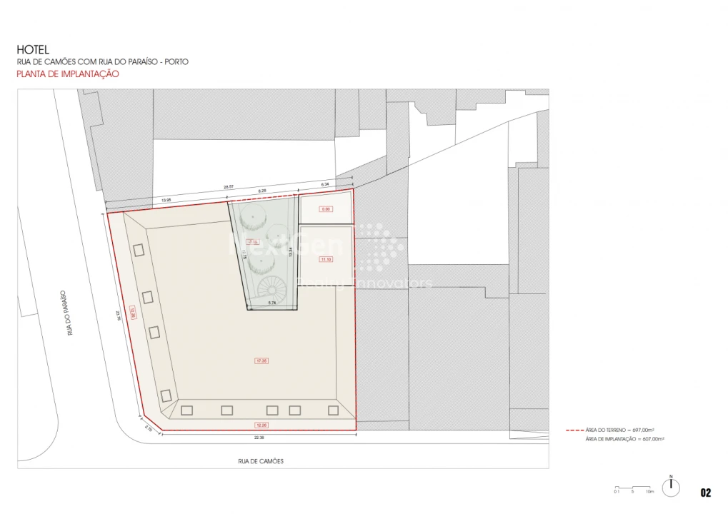
Projeto de Hotel – Rua de Camões c/ Rua do Paraíso – Porto

Apresentamos o estudo de layout para um projeto de hotel com 80 quartos, situado na interseção da Rua de Camões com a Rua do Paraíso, no Porto,. O projeto inclui plantas, cortes, alçados e tabela de áreas, detalhando a proposta para um hotel com 80 quartos. Este resumo foi preparado para destacar os principais elementos do projeto.

Localização:
- Zona Premium da cidade do Porto
- Esquina entre Rua de Camões e Rua do Paraíso

Enquadramento Geral:
- Área do terreno: 697 m²
- Área de implantação: 607 m²
- Área de construção total: 3.226 m²
- Áreas exteriores: 90 m²

Unidade Hoteleira – Quadro de Quartos:
- Total de quartos: 80
- Distribuídos por 5 pisos acima do solo e 1 piso técnico inferior
- Tipos de quarto: Diversificados, com tipologias entre 15 m² e 35,8 m², a maioria equipada com cama de casal (2,00 x 1,60 m)

Distribuição por Pisos:
Piso -1, 607 m2, 8 quartos (e áreas técnicas, receção, serviços)
Piso 1, 607 m2, 8 quartos
Piso 2, 584 m2, 19 quartos
Piso 3, 584 m2, 19 quartos
Piso 4, 461 m2, 15 quartos
Piso 5, 383 m2, 11 quartos

Composição Funcional:
- Lobby/Pequenos-almoços: 183,7 m²
- Receção: 8,1 m²
- Copa de pequeno-almoço: 9,1 m²
- Bar: 7,3 m²
- Backoffice: 5,9 m²
- Ginásio: 30,8 m²
- Lavandaria / Engomadoria / Armazéns / RSU / Técnicas: várias áreas entre 5 m² e 47 m²
- Áreas técnicas diversas: incluídas em piso -1 e cobertura

Características de Construção:
- Projeto aprovado
- Acessos diferenciados para hóspedes e serviços
- Elevadores (hóspedes e serviço)
- Pátio interior com 57,5 m²
- Terraços privados em alguns quartos

✅ Resumo de Viabilidade para Investidor:
- Hotel moderno com 80 quartos em localização estratégica
- Projeto com distribuição funcional otimizada
- Ideal para segmento 4 estrelas ou boutique hotel
- Potencial para exploração turística e eventos

Para mais informações não deixe de nos contactar!

Localização

Cedofeita, Santo Ildefonso, Sé, Miragaia, São Nicolau e Vitória, Porto, Porto

Informação do anúncio

ID do anúncio 1174700
Referência Externa NextPH2500068
Atualizado em 23/04/2025 09:34:38
Next-GenGroup Realty AMI 22872
Referência do imóvel: NextPH2500068
Phone
Chamada para a rede móvel nacional
Next-GenGroup Realty AMI 22872
Referência do imóvel: NextPH2500068
Phone
Chamada para a rede móvel nacional
1 / 11
Loja para Venda em Cedofeita, Santo Ildefonso, Sé, Miragaia, São Nicolau e Vitória Foto 1
Loja para Venda em Cedofeita, Santo Ildefonso, Sé, Miragaia, São Nicolau e Vitória Foto 2
Loja para Venda em Cedofeita, Santo Ildefonso, Sé, Miragaia, São Nicolau e Vitória Foto 3
Loja para Venda em Cedofeita, Santo Ildefonso, Sé, Miragaia, São Nicolau e Vitória Foto 4
Loja para Venda em Cedofeita, Santo Ildefonso, Sé, Miragaia, São Nicolau e Vitória Foto 5
Loja para Venda em Cedofeita, Santo Ildefonso, Sé, Miragaia, São Nicolau e Vitória Foto 6
Loja para Venda em Cedofeita, Santo Ildefonso, Sé, Miragaia, São Nicolau e Vitória Foto 7
Loja para Venda em Cedofeita, Santo Ildefonso, Sé, Miragaia, São Nicolau e Vitória Foto 8
Loja para Venda em Cedofeita, Santo Ildefonso, Sé, Miragaia, São Nicolau e Vitória Foto 9
Loja para Venda em Cedofeita, Santo Ildefonso, Sé, Miragaia, São Nicolau e Vitória Foto 10
Loja para Venda em Cedofeita, Santo Ildefonso, Sé, Miragaia, São Nicolau e Vitória Foto 11
Clicky