Terreno para Venda em Ajuda
1.765.000 €
Tipo
Terreno
Negócio
Venda
Área Bruta
960 m²
Condição
Para Obras
Certificado Energético
Não aplicável
Área do Terreno
610 m²
TO BUY*LOTE DE TERRENO | RUINA | PROJECTO APROVADO | 3 MORADIAS | LISBOA | AJUDA
Terreno com 610m2 no histórico bairro da Ajuda enquadrado pelo Convento da Boa Hora (Sec XVIII) na proximidade do icónico Palácio Nacional da Ajuda.
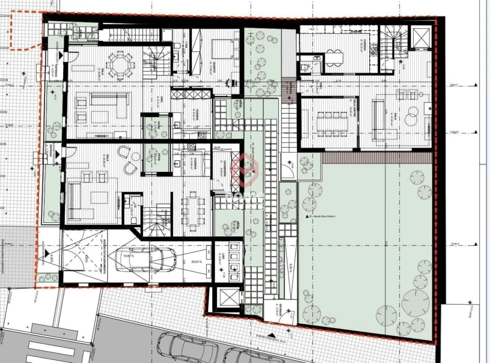
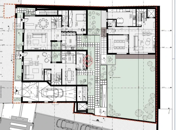
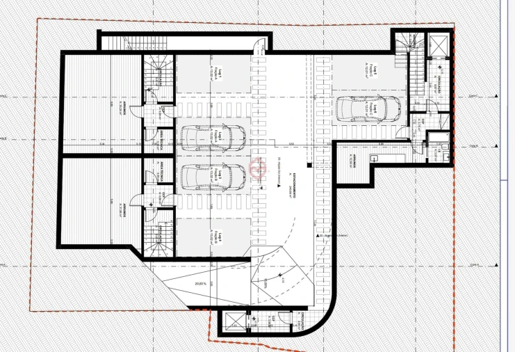
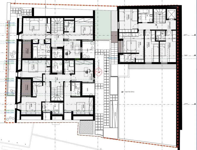
O projeto aprovado na Câmara Municipal de Lisboa contempla um pequeno condomínio com 3 moradias com 960m2 de ABC.
Uma moradia V3 com 230 m2 de AB Privativa também em dois pisos, com dois lugares de garagem e arrumos, com acesso por elevador assegurando assim conforto e sofisticação.
Uma moradia V4 com 230 m2 de AB Privativa em dois pisos com jardim privativo de 125m2, dois lugares de garagem arrumos e lavandaria com acesso por elevador exclusivo.
Uma moradia V4 com 222 m2 de AB Privativa em dois pisos com dois lugares de garagem e arrumos, com acesso por elevador
Todas as áreas foram cuidadosamente projetadas para garantir um equilíbrio harmonioso entre comodidade, requinte e bom gosto.
A Ajuda reúne História, Cultura, Exclusividade, Sofisticação e a Autenticidade da "vida de bairro". É por isso que é atualmente um dos bairros mais procurados de Lisboa por portugueses e estrangeiros.
A localização deste projecto combina tranquilidade, segurança e conveniência, a dois passos do Largo da Boa Hora e também do genuíno Mercado Municipal da Ajuda.
A155O85
HL
O projeto aprovado na Câmara Municipal de Lisboa contempla um pequeno condomínio com 3 moradias com 960m2 de ABC.
Uma moradia V3 com 230 m2 de AB Privativa também em dois pisos, com dois lugares de garagem e arrumos, com acesso por elevador assegurando assim conforto e sofisticação.
Uma moradia V4 com 230 m2 de AB Privativa em dois pisos com jardim privativo de 125m2, dois lugares de garagem arrumos e lavandaria com acesso por elevador exclusivo.
Uma moradia V4 com 222 m2 de AB Privativa em dois pisos com dois lugares de garagem e arrumos, com acesso por elevador
Todas as áreas foram cuidadosamente projetadas para garantir um equilíbrio harmonioso entre comodidade, requinte e bom gosto.
A Ajuda reúne História, Cultura, Exclusividade, Sofisticação e a Autenticidade da "vida de bairro". É por isso que é atualmente um dos bairros mais procurados de Lisboa por portugueses e estrangeiros.
A localização deste projecto combina tranquilidade, segurança e conveniência, a dois passos do Largo da Boa Hora e também do genuíno Mercado Municipal da Ajuda.
A155O85
HL
Localização
Ajuda, Lisboa, Lisboa
Informação do anúncio
ID do anúncio
1174882
Referência Externa
A155139
Atualizado em
07/05/2026 00:38:27
Terreno para Venda em Ajuda