Voltar
Terreno para Venda em Ferrel Foto 1
Terreno para Venda em Ferrel Foto 2
Terreno para Venda em Ferrel Foto 3
Terreno para Venda em Ferrel Foto 4
Terreno para Venda em Ferrel Foto 5

Terreno para Venda em Ferrel

630.000 €

Tipo
Terreno
Negócio
Venda
Área Bruta
1566 m²
Condição
Não aplicável
Certificado Energético
Não aplicável
Área do Terreno
435 m²

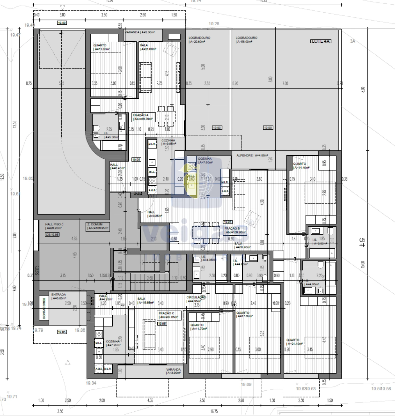
Terreno com Prédio de 9 Frações a Minutos da Praia do Baleal!

Apresentamos este lote de terreno com projeto aprovado, ideal para quem procura investir numa das zonas mais procuradas da região.
Inserido num loteamento em desenvolvimento, com todas as infraestruturas já incluídas, o projeto prevê a construção de um edifício multifamiliar com 9 apartamentos, de tipologias T1 a T3, alguns dos quais com vistas de mar.

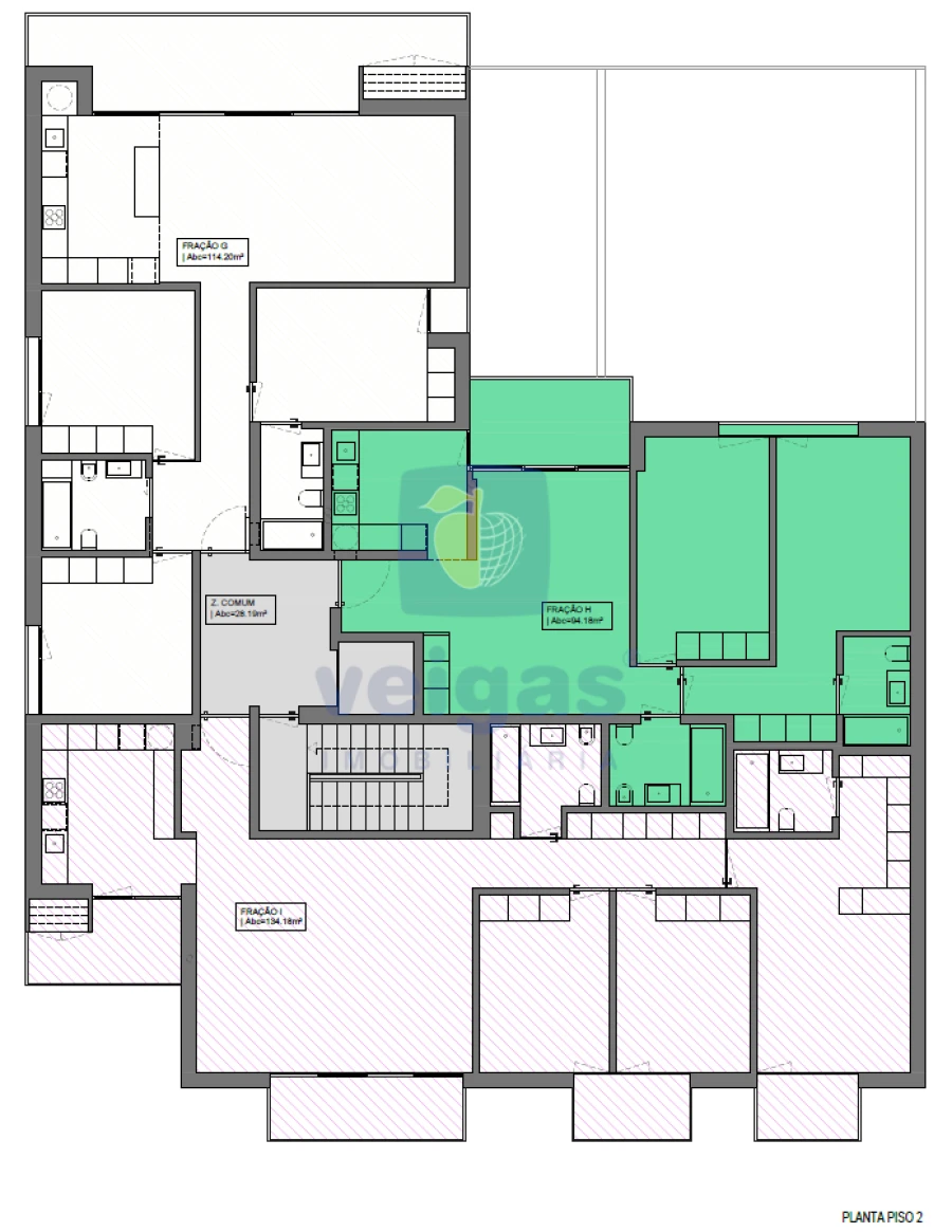
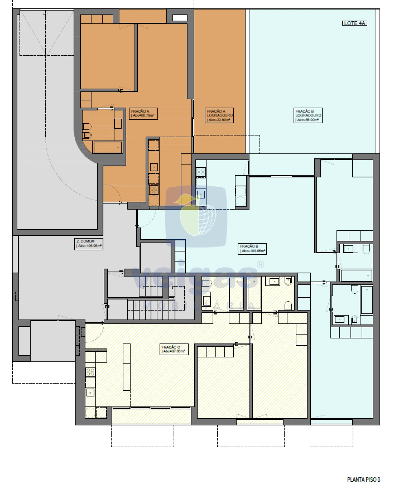
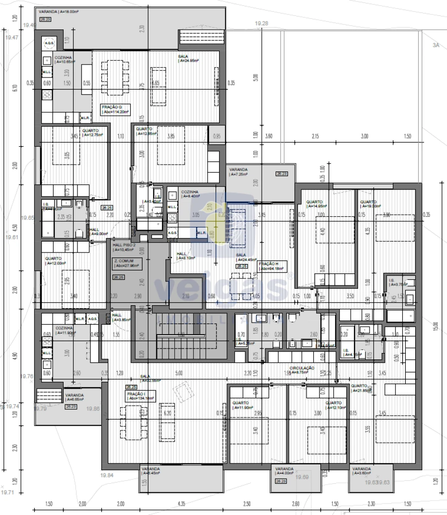
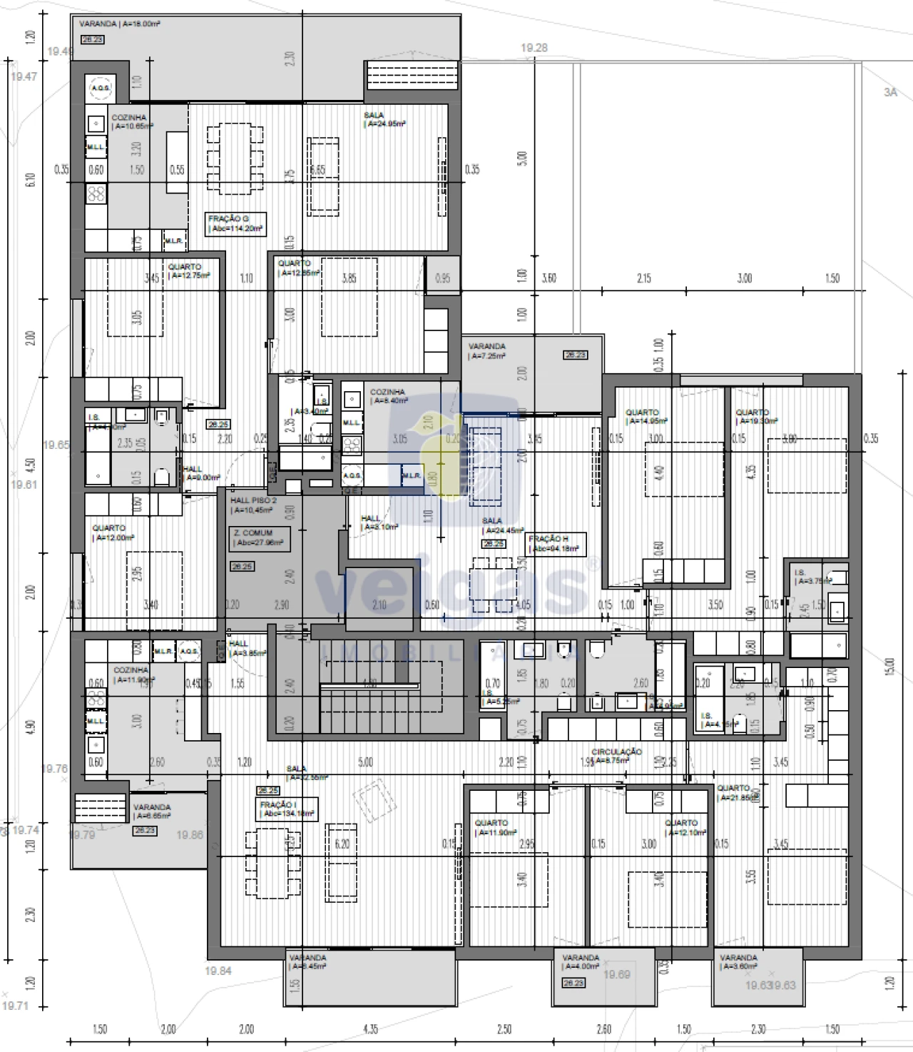
Composição do Lote 4A:

Rés do chão:
1 apartamento T1 (Fração A) com logradouro e varanda 80,05 m²

2 apartamentos T2:
Fração B com logradouro 141,7 m²
Fração C com varanda 84,95 m²

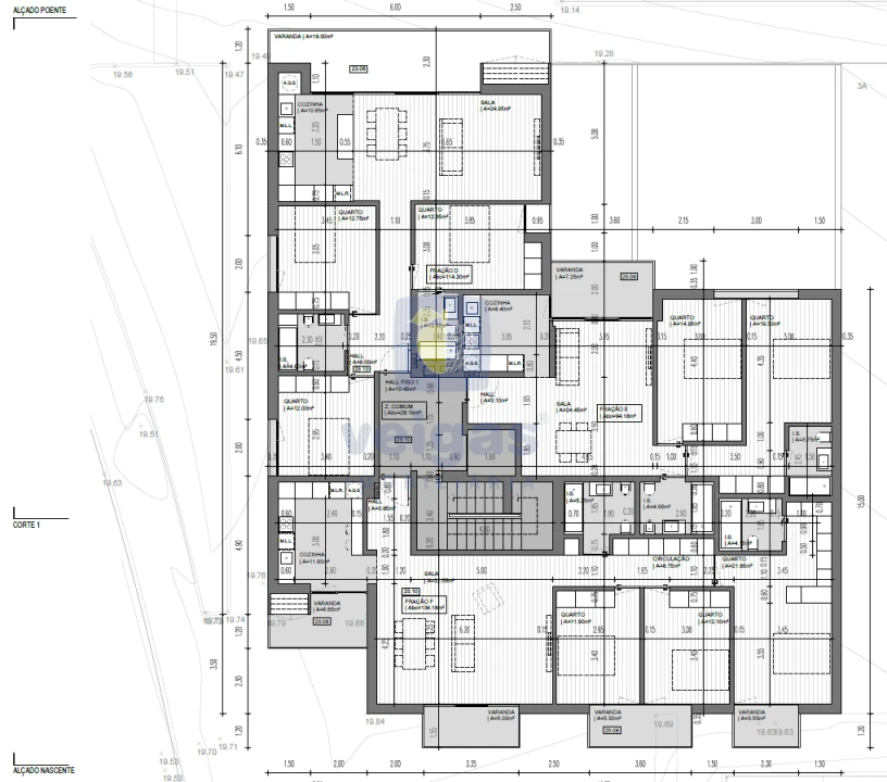
Primeiro andar:
3 apartamentos T3, todos com varandas:

Fração D 108,55 m²
Fração E 92,75 m²
Fração F 127,75 m²

Segundo andar:
3 apartamentos T3, todos com varandas:
Fração G 108,55 m²
Fração H 92,75 m²
Fração I 127,75 m²

O edifício conta ainda com uma garagem privativa, oferecendo 12 lugares de estacionamento.

Com localização privilegiada, a poucos minutos da praia e com projetos de arquitetura e especialidades já aprovados, este lote é uma excelente oportunidade para investidores que procuram um projeto sólido e pronto a avançar.

Não deixe escapar esta oportunidade única!
Contate-nos para mais informações.

Localização

Ferrel, Peniche, Leiria

Informação do anúncio

ID do anúncio 1181544
Referência Externa CPT-216540
Atualizado em 23/02/2026 01:59:05
Veigas Costa Prata AMI 2845
Referência do imóvel: CPT-216540
Veigas Costa Prata AMI 2845
Referência do imóvel: CPT-216540
1 / 42
Terreno para Venda em Ferrel Foto 1
Terreno para Venda em Ferrel Foto 2
Terreno para Venda em Ferrel Foto 3
Terreno para Venda em Ferrel Foto 4
Terreno para Venda em Ferrel Foto 5
Terreno para Venda em Ferrel Foto 6
Terreno para Venda em Ferrel Foto 7
Terreno para Venda em Ferrel Foto 8
Terreno para Venda em Ferrel Foto 9
Terreno para Venda em Ferrel Foto 10
Terreno para Venda em Ferrel Foto 11
Terreno para Venda em Ferrel Foto 12
Terreno para Venda em Ferrel Foto 13
Terreno para Venda em Ferrel Foto 14
Terreno para Venda em Ferrel Foto 15
Terreno para Venda em Ferrel Foto 16
Terreno para Venda em Ferrel Foto 17
Terreno para Venda em Ferrel Foto 18
Terreno para Venda em Ferrel Foto 19
Terreno para Venda em Ferrel Foto 20
Terreno para Venda em Ferrel Foto 21
Terreno para Venda em Ferrel Foto 22
Terreno para Venda em Ferrel Foto 23
Terreno para Venda em Ferrel Foto 24
Terreno para Venda em Ferrel Foto 25
Terreno para Venda em Ferrel Foto 26
Terreno para Venda em Ferrel Foto 27
Terreno para Venda em Ferrel Foto 28
Terreno para Venda em Ferrel Foto 29
Terreno para Venda em Ferrel Foto 30
Terreno para Venda em Ferrel Foto 31
Terreno para Venda em Ferrel Foto 32
Terreno para Venda em Ferrel Foto 33
Terreno para Venda em Ferrel Foto 34
Terreno para Venda em Ferrel Foto 35
Terreno para Venda em Ferrel Foto 36
Terreno para Venda em Ferrel Foto 37
Terreno para Venda em Ferrel Foto 38
Terreno para Venda em Ferrel Foto 39
Terreno para Venda em Ferrel Foto 40
Terreno para Venda em Ferrel Foto 41
Terreno para Venda em Ferrel Foto 42
Clicky