Armazém para Venda em Romeira e Várzea
3.100.000 €
Tipo
Armazém
Negócio
Venda
Área Bruta
4000 m²
Área Útil
4000 m²
Condição
Usado
Certificado Energético
Área do Terreno
21823 m²
Armazém Venda em Romeira e Várzea,Santarém
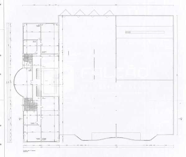
Armazém Industrial Autossuficiente com Escritórios Premium — 4.000 m² em Lote de 21.823 m²
Descubra esta oportunidade exclusiva: um armazém industrial de alta qualidade, inserido num lote generoso de 21.823 m², que combina espaço, eficiência e conforto num só imóvel. Com uma área total coberta de 4.000 m² e uma infraestrutura pensada para empresas exigentes, esta propriedade destaca-se pela sua auto-suficiência energética e pelas condições modernas que oferece.
Com PIP que permite a construção de mais 1000m² de área coberta.
Principais características:
Área industrial ampla com pé direito elevado, ideal para armazenamento ou operações logísticas, e zonas de carga/descarga funcionais;
Edifício de escritórios premium com 1500 m² de escritórios distribuídos entre rés-do-chão e primeiro andar e 3.250 m² de implantação total, distribuído por dois pisos com salas amplas, luz natural abundante e acabamentos de elevada qualidade;
Sala de reuniões panorâmica, com vista desafogada, perfeita para receber clientes e parceiros com profissionalismo;
Climatização independente (AC) em todas as divisões, garantindo conforto durante todo o ano;
Auto-suficiente em energia, com instalação de painéis fotovoltaicos e posto de transformação próprio, reduzindo significativamente os custos operacionais e assegurando autonomia energética, reforçando o compromisso com a sustentabilidade;
Auto-suficiente em energia, com instalação de painéis fotovoltaicos que reduzem significativamente os custos operacionais e
Oficina equipada com fossa de inspeção mecânica para veículos pesados — ideal para operações logísticas ou empresas de transporte;
Estacionamento amplo com 194 lugares para veículos ligeiros e 15 lugares para veículos pesados;
Portaria com portão automático, garantindo controlo de acessos eficiente e segurança reforçada;
Terreno exterior com grande potencial para expansão, ampliação de operações logísticas ou criação de áreas adicionais de apoio;
Infraestruturas completas: instalações sanitárias, zonas técnicas e áreas sociais para o bem-estar dos colaboradores. Localização estratégica, com acessos diretos às principais vias rodoviárias, tornando esta propriedade ideal para empresas industriais, logísticas ou de distribuição que valorizam eficiência, sustentabilidade e uma imagem corporativa forte.
Áreas:
Área total do lote: 21.823 m²
Área de implantação: 3.250 m²
Área de escritórios: 1500 m²
Área de armazém: 2500 m²
Área total coberta (armazéns + escritórios): 4.000 m²
PIP Aprovação para construção de mais 1000m2 de área coberta.
Estacionamento:
194 lugares para veículos ligeiros
15 lugares para veículos pesados
Ideal para empresas que procuram aliar sustentabilidade, eficiência e conforto num espaço único.
Porque deve escolher a Falcão Real Estate:
Optar pela nossa agência é escolher excelência, confiança e resultados. Com uma equipa dedicada, atendimento personalizado e uma abordagem inovadora, estamos comprometidos em tornar a sua experiência imobiliária única e bem-sucedida. Do primeiro contato à realização do seu sonho, estamos aqui para ajudá-lo(a) a cada passo do caminho. Escolha qualidade, escolha a Falcão Real Estate.
Descubra esta oportunidade exclusiva: um armazém industrial de alta qualidade, inserido num lote generoso de 21.823 m², que combina espaço, eficiência e conforto num só imóvel. Com uma área total coberta de 4.000 m² e uma infraestrutura pensada para empresas exigentes, esta propriedade destaca-se pela sua auto-suficiência energética e pelas condições modernas que oferece.
Com PIP que permite a construção de mais 1000m² de área coberta.
Principais características:
Área industrial ampla com pé direito elevado, ideal para armazenamento ou operações logísticas, e zonas de carga/descarga funcionais;
Edifício de escritórios premium com 1500 m² de escritórios distribuídos entre rés-do-chão e primeiro andar e 3.250 m² de implantação total, distribuído por dois pisos com salas amplas, luz natural abundante e acabamentos de elevada qualidade;
Sala de reuniões panorâmica, com vista desafogada, perfeita para receber clientes e parceiros com profissionalismo;
Climatização independente (AC) em todas as divisões, garantindo conforto durante todo o ano;
Auto-suficiente em energia, com instalação de painéis fotovoltaicos e posto de transformação próprio, reduzindo significativamente os custos operacionais e assegurando autonomia energética, reforçando o compromisso com a sustentabilidade;
Auto-suficiente em energia, com instalação de painéis fotovoltaicos que reduzem significativamente os custos operacionais e
Oficina equipada com fossa de inspeção mecânica para veículos pesados — ideal para operações logísticas ou empresas de transporte;
Estacionamento amplo com 194 lugares para veículos ligeiros e 15 lugares para veículos pesados;
Portaria com portão automático, garantindo controlo de acessos eficiente e segurança reforçada;
Terreno exterior com grande potencial para expansão, ampliação de operações logísticas ou criação de áreas adicionais de apoio;
Infraestruturas completas: instalações sanitárias, zonas técnicas e áreas sociais para o bem-estar dos colaboradores. Localização estratégica, com acessos diretos às principais vias rodoviárias, tornando esta propriedade ideal para empresas industriais, logísticas ou de distribuição que valorizam eficiência, sustentabilidade e uma imagem corporativa forte.
Áreas:
Área total do lote: 21.823 m²
Área de implantação: 3.250 m²
Área de escritórios: 1500 m²
Área de armazém: 2500 m²
Área total coberta (armazéns + escritórios): 4.000 m²
PIP Aprovação para construção de mais 1000m2 de área coberta.
Estacionamento:
194 lugares para veículos ligeiros
15 lugares para veículos pesados
Ideal para empresas que procuram aliar sustentabilidade, eficiência e conforto num espaço único.
Porque deve escolher a Falcão Real Estate:
Optar pela nossa agência é escolher excelência, confiança e resultados. Com uma equipa dedicada, atendimento personalizado e uma abordagem inovadora, estamos comprometidos em tornar a sua experiência imobiliária única e bem-sucedida. Do primeiro contato à realização do seu sonho, estamos aqui para ajudá-lo(a) a cada passo do caminho. Escolha qualidade, escolha a Falcão Real Estate.
Localização
Romeira e Várzea, Santarém, Santarém
Informação do anúncio
ID do anúncio
1182175
Referência Externa
FR685
Atualizado em
22/03/2026 03:08:44
Anunciante
Chamada para a rede móvel nacional
Remarkable Finds Lda
AMI 23239
Referência do imóvel:
FR685
Armazém para Venda em Romeira e Várzea