Terreno para Venda em São Mamede de Infesta e Senhora da Hora
2.350.000 €
Tipo
Terreno
Negócio
Venda
Área Bruta
2800 m²
Área Útil
2800 m²
Condição
Não aplicável
Certificado Energético
Área do Terreno
2800 m²
Terreno Para Construção Venda em São Mamede de Infesta e Senhora da Hora,Matosinhos
Terreno c/ PIP para 35 frações - Ao H.S.João
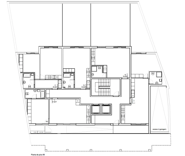
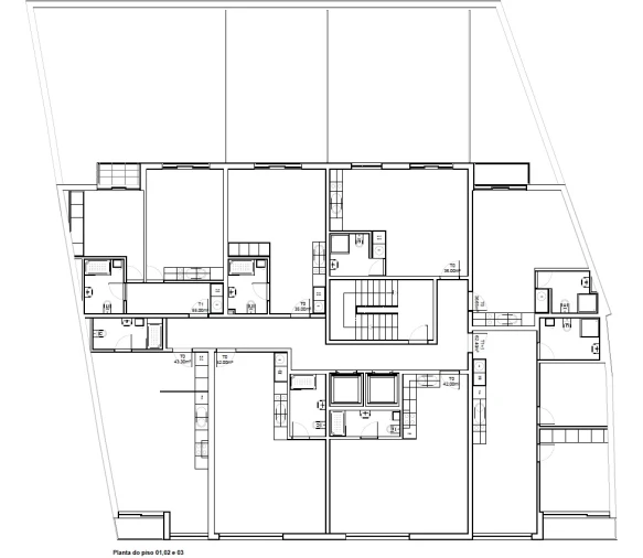
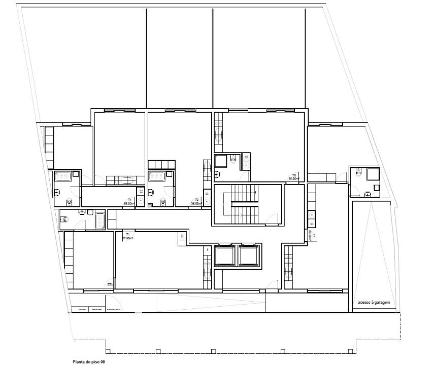
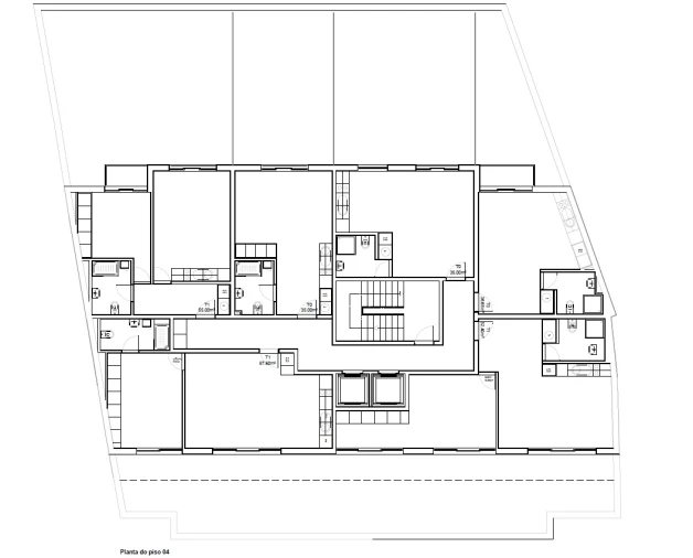
Terreno com PIP em aprovação para 35 frações (T0 - T1 - T1+1) - A 3 minutos do Hospital de S. João, no Porto - Amial
Ref: 2362-SMI
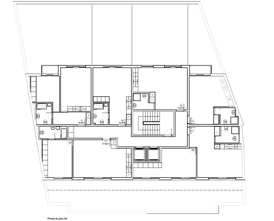
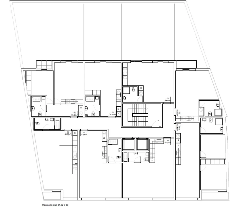
A construção terá Cave + R/C + 4 Pisos
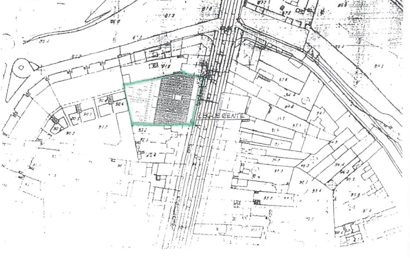
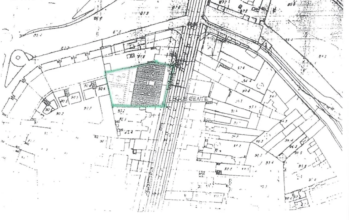
Terreno com área de 793m²
Com +/- 24m de frente, a 300 metros do cruzamento do Amial (Paranhos - Porto)
A 3 minutos do Hospital de São João / IPO e METRO / Pólo Universitário
Com transportes constantes mesmo à porta, para todos os locais do Porto, maia, Matosinhos, baixa do Porto e Pólo Universitário
Estação de Comboio a 300metros (S. Mamede de Infesta)
Devido à sua excelente localização, com fácil venda ainda durante a construção.
Na zona do Amial, local de grande movimento e fácil ligação direta aos principais centros do Porto e Grande Porto, assim como rápidos acessos a Auto estradas, Circunvalação, Via Norte.
Próximo de Supermercados e Farmácias e numa rua com todo o tipo de comércio de proximidade necessário para o dia a dia.
Oportunidade para Construtores / Investidores
Com vendas previstas durante a construção e com excelente rentabilidade, dada à sua óptima localização e proximidade ao H.S.João, Metro e Faculdades.
Prevê-se o volume de vendas de cerca de 8 milhões de euros.
A construção terá cave, rés do chão + 4 pisos.
Próximo ao Hospital de S. João, Pólo Universitário, IPO e Metro a 300 metros (S. Mamede de Infesta), que liga ao H.S.João.
Em frente, tem paragens de autocarro com frequência a cada 10 minutos, para toda a cidade do Porto, Maia e Matosinhos.
Na rua tem Supermercados, Farmácias e variados comércios de apoio.
O prédio a construir permitirá uma mais valia de 40%.
As frações previstas são T0, T1 e T1+1, ideais para o local dada a proximidade ao Hospital de S. João, IPO, Polo Universitário.
O terreno se encontra 90% ao nível da cave, o que permite a economia no seu desaterro.
Consulte-nos para conhecer os pormenores deste Projeto e a sua comercialização.
Proximidades:
Fármácia - 2 minutos, na mesma rua
Autocarros - Paragem em frente (com autocarros que fazem a ligação direta entre o centro da cidade da Maia com o centro das cidade do Porto - Aliados e ainda Ligação ao Hospital de S. João) a cada 10 minutos.
Existe muito comércio de proximidade na própria rua, supermercados, restaurantes, etc.
Comboio S. Mamede de Infesta - a 300m
Hospital S. João - 3 minutos automóvel (10 minutos a pé)
Centro de Saúde - 4 minutos
Supermercado - 4 minutos
Centro Comercial - 10 minutos a pé
Marque já a sua Visita!
Para mais informações contacte-nos!
***
Plot of land with PIP pending approval for 35 units (T0 - T1 - T1+1) - 3 minutes from H. S. João / Amial
Ref: 2362
Plot of land with an area of 793 m²
With +/- 24 m of frontage, 300 meters from the Amial intersection (Paranhos - Porto)
4 minutes from Hospital de S. João / IPO, METRO.
With constant transport right at the door, to all locations in Porto, Maia, Matosinhos, downtown Porto and the University Campus.
Metro station 300 meters away (S. Mamede de Infesta)
Plot of land consisting of 4 old houses with ground floor and basement.
Most of the land is at basement level, which brings advantage in saving on exile.
The building will have a basement + ground floor + 4 floors
Excellent location, in a busy area with easy direct access to the main centres, the whole of Porto and Greater Porto, as well as quick access to motorways, the ring road, Via Norte.
Close to supermarkets, pharmacies, and on a street with all types of local shops necessary for everyday life.
Close to universities, H.S.João, IPO, ISCAP, etc.
Opportunity for builders/investors.
With sales expected during construction and with excellent profitability, given its excellent location and proximity to the Hospital de São João, Metro and Universities.
Terrain avec PIP en attente d'approbation pour 35 unités (T0 - T1 - T1+1) - 3 minutes de H. S. João / Amial
Réf. : 2362
Terrain d'une superficie de 793 m²
Avec +/- 24m de façade, à 300 mètres du carrefour Amial (Paranhos - Porto)
A 4 minutes de l'Hôpital de S. João / IPO, MÉTRO.
Avec un transport constant à votre porte, vers tous les endroits de Porto, Maia, Matosinhos, le centre-ville de Porto et le campus universitaire.
Station de métro à 300 mètres (S. Mamede de Infesta)
Terrain composé de 4 maisons anciennes avec rez-de-chaussée et sous-sol.
La plupart des terrains sont en sous-sol, ce qui apporte des avantages en termes d'économies en exil.
Le bâtiment aura un sous-sol + rez-de-chaussée + 4 étages
Excellent emplacement, dans un quartier animé avec une connexion directe facile aux principaux centres, à l'ensemble de Porto et au Grand Porto, ainsi qu'un accès rapide aux autoroutes, aux rocades, à la Via Norte.
A proximité des supermarchés, pharmacies, et dans une rue avec tous types de commerces de proximité nécessaires à la vie quotidienne.
A proximité des Universités, H.S.João, IPO, ISCAP, etc.
Opportunité pour les constructeurs/investisseurs.
Avec des ventes prévues pendant la construction et une excellente rentabilité, compte tenu de son excellent emplacement et de sa proximité avec l'hôpital de São João, le métro et les collèges.
Terreno com PIP em aprovação para 35 frações (T0 - T1 - T1+1) - A 3 minutos do Hospital de S. João, no Porto - Amial
Ref: 2362-SMI
A construção terá Cave + R/C + 4 Pisos
Terreno com área de 793m²
Com +/- 24m de frente, a 300 metros do cruzamento do Amial (Paranhos - Porto)
A 3 minutos do Hospital de São João / IPO e METRO / Pólo Universitário
Com transportes constantes mesmo à porta, para todos os locais do Porto, maia, Matosinhos, baixa do Porto e Pólo Universitário
Estação de Comboio a 300metros (S. Mamede de Infesta)
Devido à sua excelente localização, com fácil venda ainda durante a construção.
Na zona do Amial, local de grande movimento e fácil ligação direta aos principais centros do Porto e Grande Porto, assim como rápidos acessos a Auto estradas, Circunvalação, Via Norte.
Próximo de Supermercados e Farmácias e numa rua com todo o tipo de comércio de proximidade necessário para o dia a dia.
Oportunidade para Construtores / Investidores
Com vendas previstas durante a construção e com excelente rentabilidade, dada à sua óptima localização e proximidade ao H.S.João, Metro e Faculdades.
Prevê-se o volume de vendas de cerca de 8 milhões de euros.
A construção terá cave, rés do chão + 4 pisos.
Próximo ao Hospital de S. João, Pólo Universitário, IPO e Metro a 300 metros (S. Mamede de Infesta), que liga ao H.S.João.
Em frente, tem paragens de autocarro com frequência a cada 10 minutos, para toda a cidade do Porto, Maia e Matosinhos.
Na rua tem Supermercados, Farmácias e variados comércios de apoio.
O prédio a construir permitirá uma mais valia de 40%.
As frações previstas são T0, T1 e T1+1, ideais para o local dada a proximidade ao Hospital de S. João, IPO, Polo Universitário.
O terreno se encontra 90% ao nível da cave, o que permite a economia no seu desaterro.
Consulte-nos para conhecer os pormenores deste Projeto e a sua comercialização.
Proximidades:
Fármácia - 2 minutos, na mesma rua
Autocarros - Paragem em frente (com autocarros que fazem a ligação direta entre o centro da cidade da Maia com o centro das cidade do Porto - Aliados e ainda Ligação ao Hospital de S. João) a cada 10 minutos.
Existe muito comércio de proximidade na própria rua, supermercados, restaurantes, etc.
Comboio S. Mamede de Infesta - a 300m
Hospital S. João - 3 minutos automóvel (10 minutos a pé)
Centro de Saúde - 4 minutos
Supermercado - 4 minutos
Centro Comercial - 10 minutos a pé
Marque já a sua Visita!
Para mais informações contacte-nos!
***
Plot of land with PIP pending approval for 35 units (T0 - T1 - T1+1) - 3 minutes from H. S. João / Amial
Ref: 2362
Plot of land with an area of 793 m²
With +/- 24 m of frontage, 300 meters from the Amial intersection (Paranhos - Porto)
4 minutes from Hospital de S. João / IPO, METRO.
With constant transport right at the door, to all locations in Porto, Maia, Matosinhos, downtown Porto and the University Campus.
Metro station 300 meters away (S. Mamede de Infesta)
Plot of land consisting of 4 old houses with ground floor and basement.
Most of the land is at basement level, which brings advantage in saving on exile.
The building will have a basement + ground floor + 4 floors
Excellent location, in a busy area with easy direct access to the main centres, the whole of Porto and Greater Porto, as well as quick access to motorways, the ring road, Via Norte.
Close to supermarkets, pharmacies, and on a street with all types of local shops necessary for everyday life.
Close to universities, H.S.João, IPO, ISCAP, etc.
Opportunity for builders/investors.
With sales expected during construction and with excellent profitability, given its excellent location and proximity to the Hospital de São João, Metro and Universities.
Terrain avec PIP en attente d'approbation pour 35 unités (T0 - T1 - T1+1) - 3 minutes de H. S. João / Amial
Réf. : 2362
Terrain d'une superficie de 793 m²
Avec +/- 24m de façade, à 300 mètres du carrefour Amial (Paranhos - Porto)
A 4 minutes de l'Hôpital de S. João / IPO, MÉTRO.
Avec un transport constant à votre porte, vers tous les endroits de Porto, Maia, Matosinhos, le centre-ville de Porto et le campus universitaire.
Station de métro à 300 mètres (S. Mamede de Infesta)
Terrain composé de 4 maisons anciennes avec rez-de-chaussée et sous-sol.
La plupart des terrains sont en sous-sol, ce qui apporte des avantages en termes d'économies en exil.
Le bâtiment aura un sous-sol + rez-de-chaussée + 4 étages
Excellent emplacement, dans un quartier animé avec une connexion directe facile aux principaux centres, à l'ensemble de Porto et au Grand Porto, ainsi qu'un accès rapide aux autoroutes, aux rocades, à la Via Norte.
A proximité des supermarchés, pharmacies, et dans une rue avec tous types de commerces de proximité nécessaires à la vie quotidienne.
A proximité des Universités, H.S.João, IPO, ISCAP, etc.
Opportunité pour les constructeurs/investisseurs.
Avec des ventes prévues pendant la construction et une excellente rentabilité, compte tenu de son excellent emplacement et de sa proximité avec l'hôpital de São João, le métro et les collèges.
Localização
São Mamede de Infesta e Senhora da Hora, Matosinhos, Porto
Informação do anúncio
ID do anúncio
1184847
Referência Externa
2362-SMI
Atualizado em
02/04/2026 02:07:39
Terreno para Venda em São Mamede de Infesta e Senhora da Hora