Moradia T3 para Venda em Bravães
549.000 €
Tipo
Moradia
Negócio
Venda
Ano de Construção
2026
Quartos
3
Casas de Banho
3
Área Bruta
220 m²
Área Útil
220 m²
Certificado Energético
Em tramite
Área do Terreno
1300 m²
Moradia T3 - Bravães
Um projeto diferenciado irá ser edificado num local onde as vistas panorâmicas servem de pano de fundo e a exposição solar nos brinda o dia inteiro.
Situada em Bravães, a 8 minutos do centro de Ponte da Barca, 20 de Viana do Castelo e 30 minutos de Braga, com a ligação do nó da A28 a menos de 10 minutos.
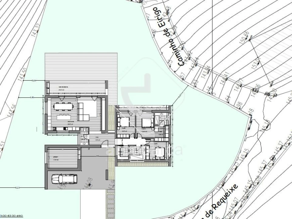
Esta moradia de estilo moderno está dividida em 2 zonas: uma área social e outra privativa unidas pela entrada Principal.
Uma moradia de estilo arrojado, tipologia T3, com mais uma divisão multifuncional que pode servir de quarto, escritório, ou arrumos.
Três quartos um deles suite, com mais dois quartos apoiados por uma casa de banho completa, a casa terá ainda uma terceira casa de banho de serviço e apoio à área social.
A área social composta por cozinha moderna e funcional, em comunicação com a sala, onde a luz natural e o quadro paisagístico da envolvente farão deste local, o local ideal para momentos em família e com os amigos.
Varandas em todas as divisões, acessíveis por grandes caixilharias de alumínio com vidro duplo.
Acabamentos modernos em harmonia com o desenho arquitetónico, no exterior, a propriedade permitirá ainda fazer uma piscina (opcional - não contemplada no orçamento).
Comprar a casa na fase de construção, permite ainda adaptar ao seu gosto pessoal, o que será também uma vantagem - na Arcobarca, encontrará um profissional disponível para lhe apresentar este projeto.
Bravães é uma das 23 freguesias do concelho de Ponte da Barca localizada na margem esquerda do Rio Lima, aqui encontra-se uma das mais antigas referências da arquitetura românica: o Mosteiro de Bravães.
Bravães é uma freguesia com uma população de cerca de 600 habitantes. Uma freguesia dinâmica, principalmente no que se refere a atividades que recriam as mais antigas tradições do Alto Minho, promovendo por altura da Páscoa a recriação de “A Mui Dolorosa Paixão de Nosso Senhor Jesus Cristo"; e por altura das colheitas a recriação da "desfolhada minhota", recuperou ainda uma tradição extinta de produção das antigas "Gaitas de Foles" e possui o seu próprio grupo de gaiteiros que animam tantas romarias.
A conclusão da obra e a entrega da chave está prevista para finais de 2026/inicio de 2027. Permita-se ver o seu sonho a nascer!!
Situada em Bravães, a 8 minutos do centro de Ponte da Barca, 20 de Viana do Castelo e 30 minutos de Braga, com a ligação do nó da A28 a menos de 10 minutos.
Esta moradia de estilo moderno está dividida em 2 zonas: uma área social e outra privativa unidas pela entrada Principal.
Uma moradia de estilo arrojado, tipologia T3, com mais uma divisão multifuncional que pode servir de quarto, escritório, ou arrumos.
Três quartos um deles suite, com mais dois quartos apoiados por uma casa de banho completa, a casa terá ainda uma terceira casa de banho de serviço e apoio à área social.
A área social composta por cozinha moderna e funcional, em comunicação com a sala, onde a luz natural e o quadro paisagístico da envolvente farão deste local, o local ideal para momentos em família e com os amigos.
Varandas em todas as divisões, acessíveis por grandes caixilharias de alumínio com vidro duplo.
Acabamentos modernos em harmonia com o desenho arquitetónico, no exterior, a propriedade permitirá ainda fazer uma piscina (opcional - não contemplada no orçamento).
Comprar a casa na fase de construção, permite ainda adaptar ao seu gosto pessoal, o que será também uma vantagem - na Arcobarca, encontrará um profissional disponível para lhe apresentar este projeto.
Bravães é uma das 23 freguesias do concelho de Ponte da Barca localizada na margem esquerda do Rio Lima, aqui encontra-se uma das mais antigas referências da arquitetura românica: o Mosteiro de Bravães.
Bravães é uma freguesia com uma população de cerca de 600 habitantes. Uma freguesia dinâmica, principalmente no que se refere a atividades que recriam as mais antigas tradições do Alto Minho, promovendo por altura da Páscoa a recriação de “A Mui Dolorosa Paixão de Nosso Senhor Jesus Cristo"; e por altura das colheitas a recriação da "desfolhada minhota", recuperou ainda uma tradição extinta de produção das antigas "Gaitas de Foles" e possui o seu próprio grupo de gaiteiros que animam tantas romarias.
A conclusão da obra e a entrega da chave está prevista para finais de 2026/inicio de 2027. Permita-se ver o seu sonho a nascer!!
Localização
Bravães, Ponte da Barca, Viana do Castelo
Informação do anúncio
ID do anúncio
1193358
Referência Externa
AV6275
Atualizado em
25/04/2026 23:27:26
Anunciante
Chamada para a rede fixa nacional
Arcobarca - Arcos de Valdevez
AMI 8178
Referência do imóvel:
AV6275
Moradia T3 para Venda em Bravães