Voltar
Moradia T3 para Venda em Monchique Foto 1
Moradia T3 para Venda em Monchique Foto 2
Moradia T3 para Venda em Monchique Foto 3
Moradia T3 para Venda em Monchique Foto 4
Moradia T3 para Venda em Monchique Foto 5

Moradia T3 para Venda em Monchique

1.325.000 €

Tipo
Moradia
Negócio
Venda
Ano de Construção
2008
Quartos
3
Casas de Banho
4
Área Bruta
373 m²
Área Útil
373 m²
Condição
Como novo
Certificado Energético
E
Área do Terreno
54000 m²

Monchique - Retiro de montanha com 3 quartos e casa adicional de 3 quartos

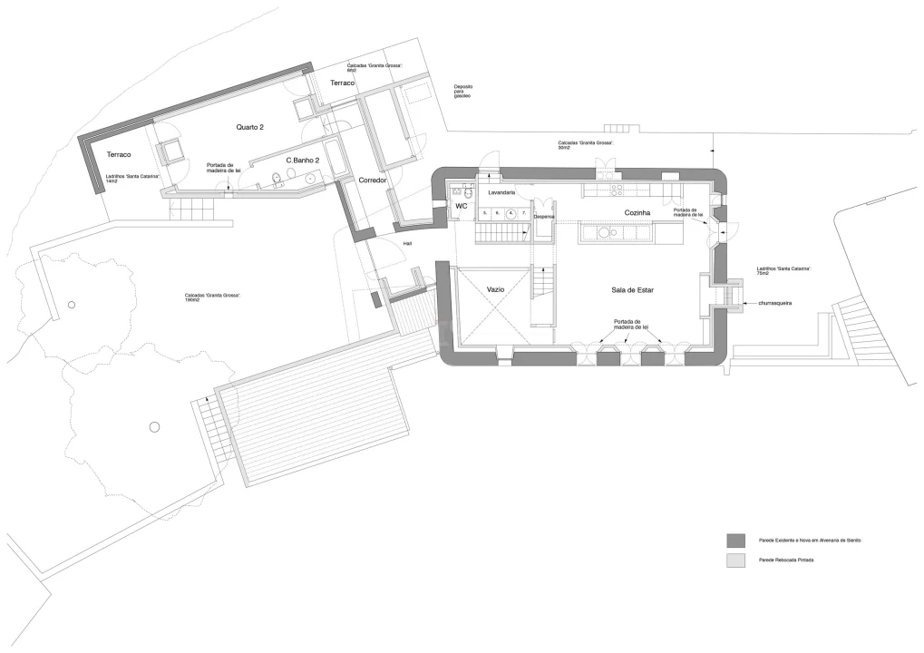
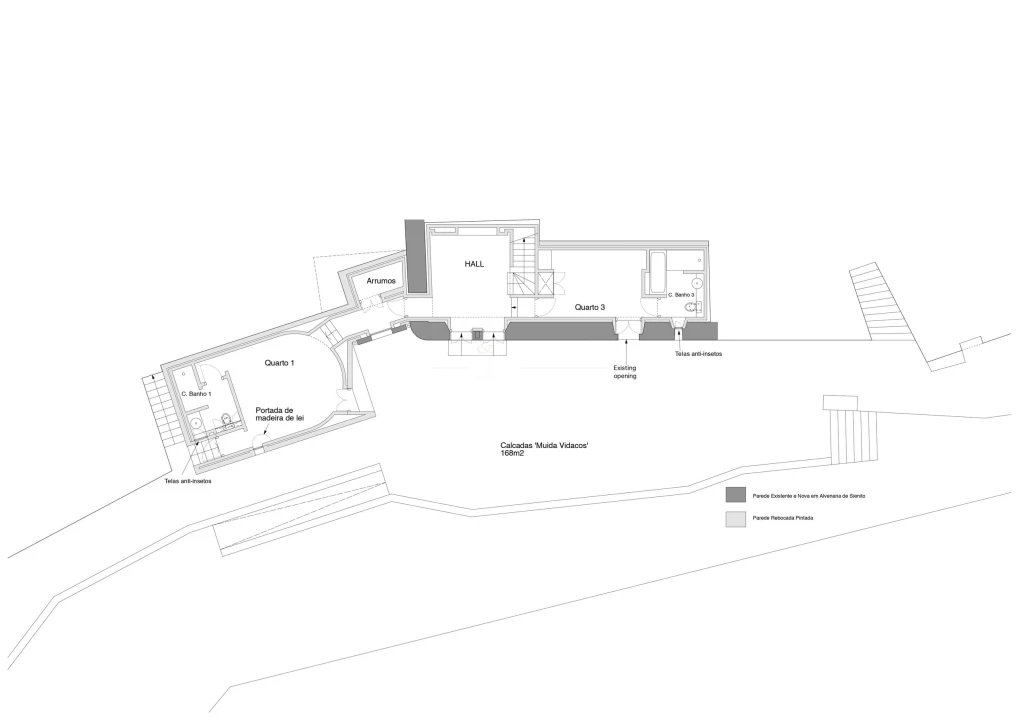
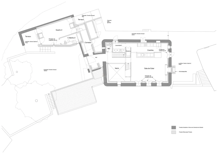
Propriedade t3+3 tradicional inspirada na conversão de uma quinta tradicional de montanha, desenhada por arquitecto premiado, uma jóia escondida com vista para o seu próprio vale com riacho e extensa floresta com eucaliptos, carvalhos e árvores de fruto. Embora totalmente isolada, a propriedade fica apenas a 5 minutos de automóvel da cidade de Monchique e a menos de 30 minutos de Portimão e da costa. Existem dois lotes de terreno contíguos perfazendo um total de 5,4 hectares (13,3 acres) com possibilidade de construção de outra pequena propriedade num dos lotes convertidos a partir de uma habitação existente, bem como um anexo actualmente utilizado como arrecadação, facilmente convertível num estúdio de arte.
A propriedade, outrora uma quinta possui vista para espetaculares terraços centenários de pedra. O alojamento resultante da conversão é composto por duas estruturas distintas; a casa principal onde a arquitectura contemporânea foi magistralmente integrada com o edifício original da quinta, contemplando acabamentos de alto nível, materiais de primeira qualidade e a casa de hóspedes foi renovada com estilo tradicional. A casa principal oferece 3 suítes, mezanine, escritório e arrecadação, sala de estar/jantar em plano aberto, casa de banho de serviço e corredores de inspiração arquitetónica banhados por luz natural. A casa de hóspedes beneficia de aconchegante sala de estar e cozinha com dois quartos e casa de banho e mais um quarto no andar de cima. A casa tem abastecimento próprio de água proveniente de nascente natural localizada na propriedade.
No exterior, vários terraços encantadores estão idealmente posicionados para apreciar a vista do vale enquanto aprecia a arquitetura. Existe uma pequena piscina convertida a partir do antigo tanque de água.
Esta é uma propriedade verdadeiramente única, ideal como casa independente, ou como pequeno negócio de turismo rural com possibilidades adicionais de desenvolvimento.

* Mais fotografias disponíveis, incluindo anexo

* As características / equipamentos mencionados nesta descrição estão sujeitos a verificação e acordo entre os vendedores e compradores.

Localização

Monchique, Monchique, Faro

Informação do anúncio

ID do anúncio 1196674
Referência Externa FC1017VCZ
Atualizado em 15/12/2025 01:57:28
Fine Country Algarve AMI 9767
Referência do imóvel: FC1017VCZ
Phone
Chamada para a rede fixa nacional
Fine Country Algarve AMI 9767
Referência do imóvel: FC1017VCZ
Phone
Chamada para a rede fixa nacional
1 / 58
Moradia T3 para Venda em Monchique Foto 1
Moradia T3 para Venda em Monchique Foto 2
Moradia T3 para Venda em Monchique Foto 3
Moradia T3 para Venda em Monchique Foto 4
Moradia T3 para Venda em Monchique Foto 5
Moradia T3 para Venda em Monchique Foto 6
Moradia T3 para Venda em Monchique Foto 7
Moradia T3 para Venda em Monchique Foto 8
Moradia T3 para Venda em Monchique Foto 9
Moradia T3 para Venda em Monchique Foto 10
Moradia T3 para Venda em Monchique Foto 11
Moradia T3 para Venda em Monchique Foto 12
Moradia T3 para Venda em Monchique Foto 13
Moradia T3 para Venda em Monchique Foto 14
Moradia T3 para Venda em Monchique Foto 15
Moradia T3 para Venda em Monchique Foto 16
Moradia T3 para Venda em Monchique Foto 17
Moradia T3 para Venda em Monchique Foto 18
Moradia T3 para Venda em Monchique Foto 19
Moradia T3 para Venda em Monchique Foto 20
Moradia T3 para Venda em Monchique Foto 21
Moradia T3 para Venda em Monchique Foto 22
Moradia T3 para Venda em Monchique Foto 23
Moradia T3 para Venda em Monchique Foto 24
Moradia T3 para Venda em Monchique Foto 25
Moradia T3 para Venda em Monchique Foto 26
Moradia T3 para Venda em Monchique Foto 27
Moradia T3 para Venda em Monchique Foto 28
Moradia T3 para Venda em Monchique Foto 29
Moradia T3 para Venda em Monchique Foto 30
Moradia T3 para Venda em Monchique Foto 31
Moradia T3 para Venda em Monchique Foto 32
Moradia T3 para Venda em Monchique Foto 33
Moradia T3 para Venda em Monchique Foto 34
Moradia T3 para Venda em Monchique Foto 35
Moradia T3 para Venda em Monchique Foto 36
Moradia T3 para Venda em Monchique Foto 37
Moradia T3 para Venda em Monchique Foto 38
Moradia T3 para Venda em Monchique Foto 39
Moradia T3 para Venda em Monchique Foto 40
Moradia T3 para Venda em Monchique Foto 41
Moradia T3 para Venda em Monchique Foto 42
Moradia T3 para Venda em Monchique Foto 43
Moradia T3 para Venda em Monchique Foto 44
Moradia T3 para Venda em Monchique Foto 45
Moradia T3 para Venda em Monchique Foto 46
Moradia T3 para Venda em Monchique Foto 47
Moradia T3 para Venda em Monchique Foto 48
Moradia T3 para Venda em Monchique Foto 49
Moradia T3 para Venda em Monchique Foto 50
Moradia T3 para Venda em Monchique Foto 51
Moradia T3 para Venda em Monchique Foto 52
Moradia T3 para Venda em Monchique Foto 53
Moradia T3 para Venda em Monchique Foto 54
Moradia T3 para Venda em Monchique Foto 55
Moradia T3 para Venda em Monchique Foto 56
Moradia T3 para Venda em Monchique Foto 57
Moradia T3 para Venda em Monchique Foto 58
Moradia T3 para Venda em Monchique
Clicky