Voltar
Terreno para Venda em Cidade da Maia Foto 1
Terreno para Venda em Cidade da Maia Foto 2
Terreno para Venda em Cidade da Maia Foto 3
Terreno para Venda em Cidade da Maia Foto 4
Terreno para Venda em Cidade da Maia Foto 5

Terreno para Venda em Cidade da Maia

380.000 €

Tipo
Terreno
Negócio
Venda
Área Bruta
655 m²
Área Útil
655 m²
Área do Terreno
951 m²

Terreno cidade da Maia para construção 3 moradias

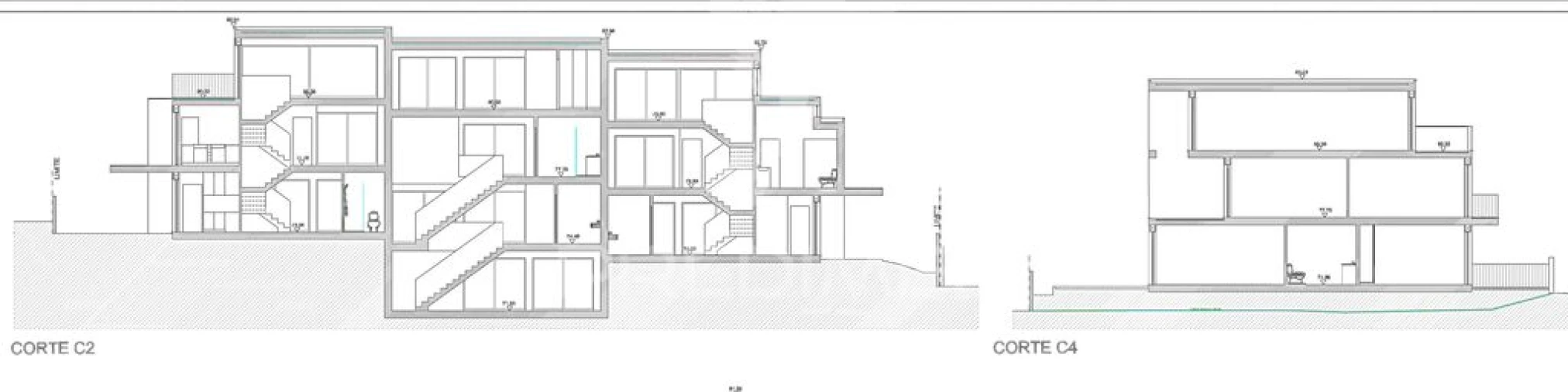
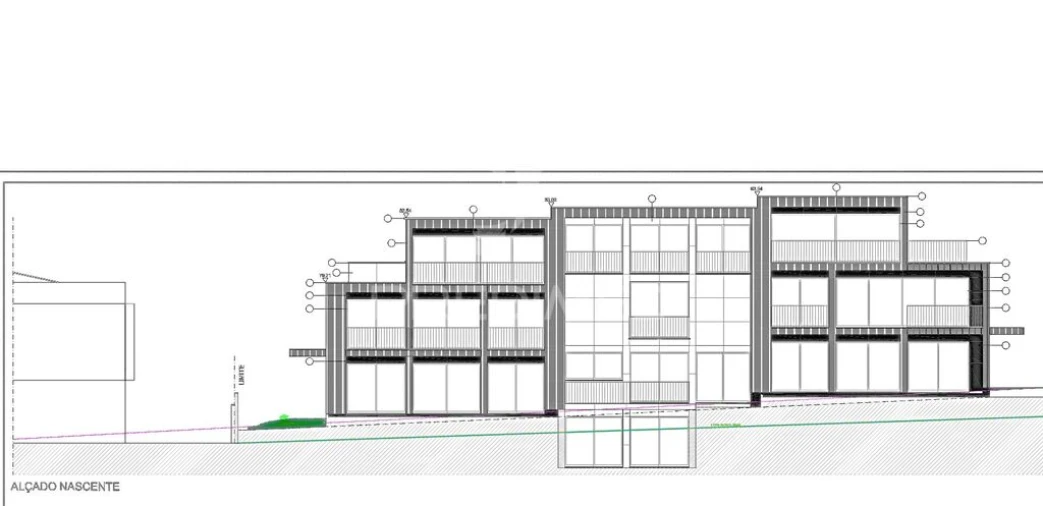
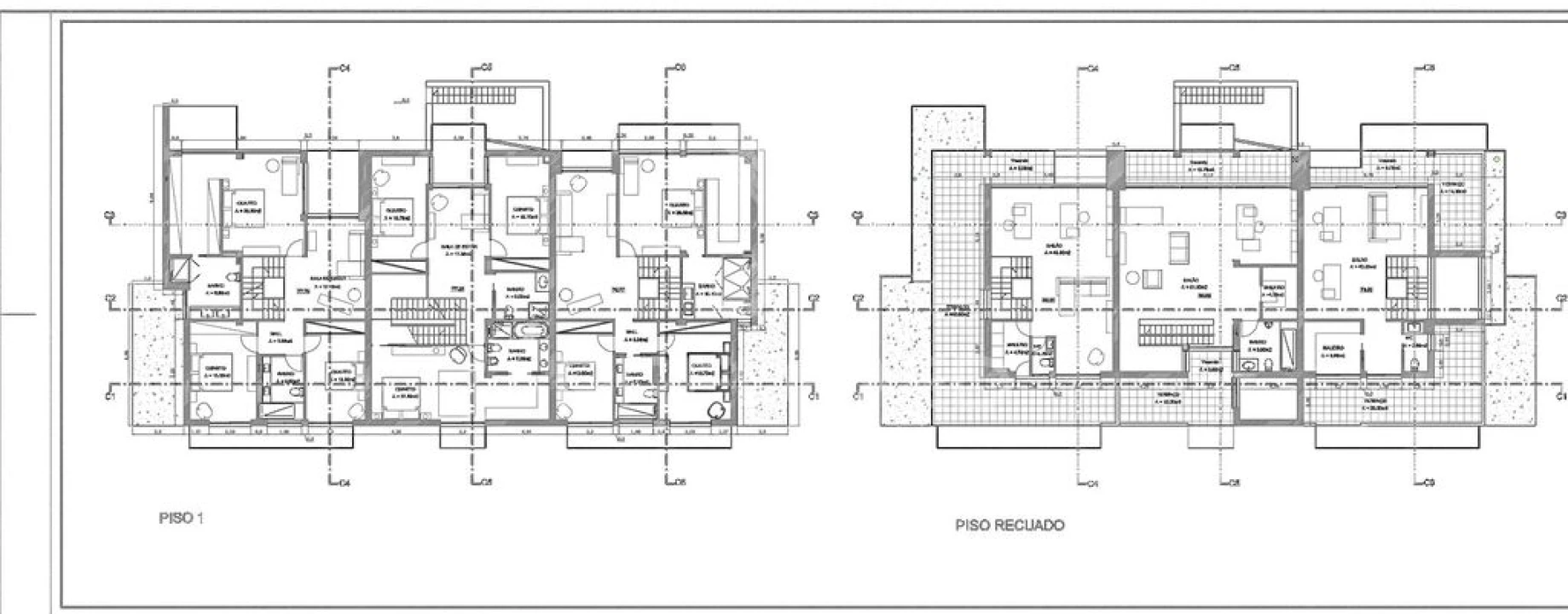
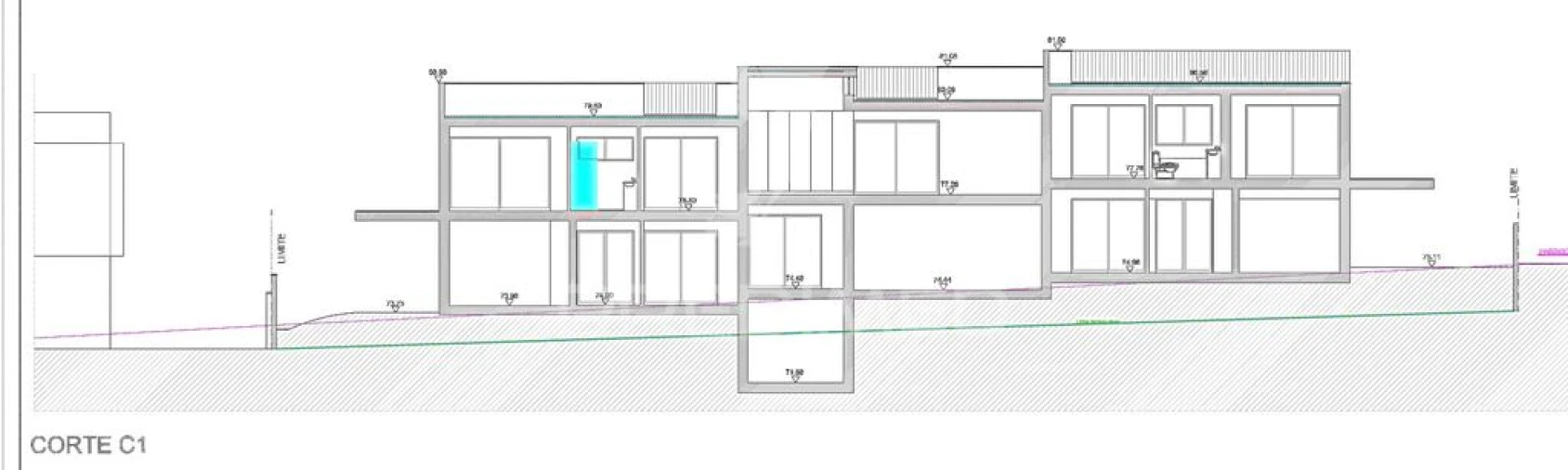
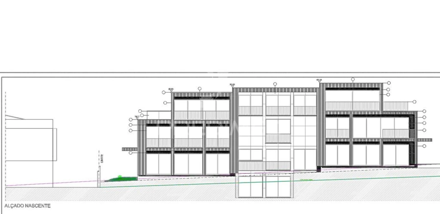
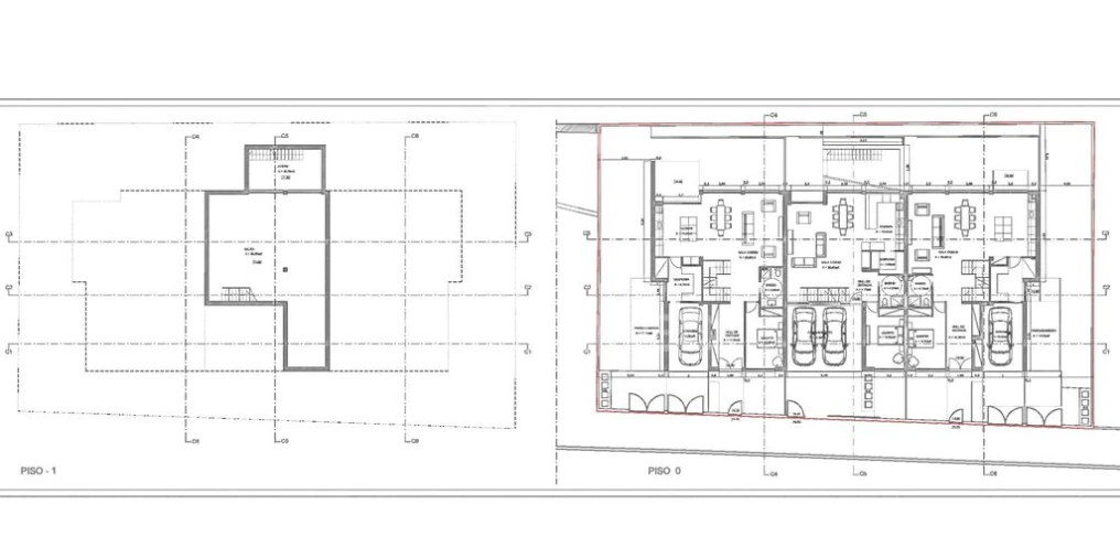
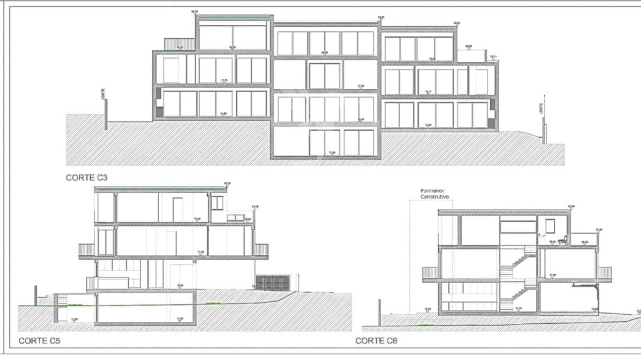
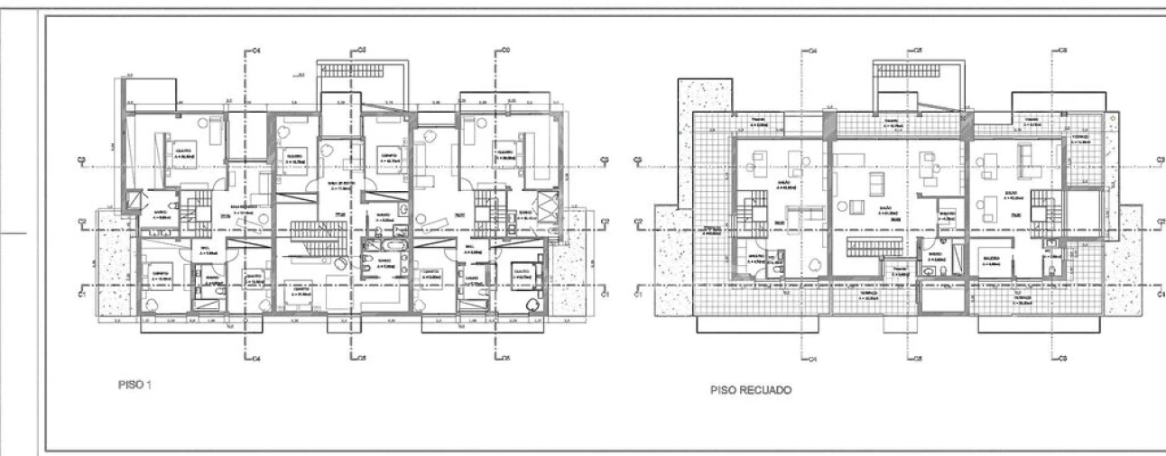
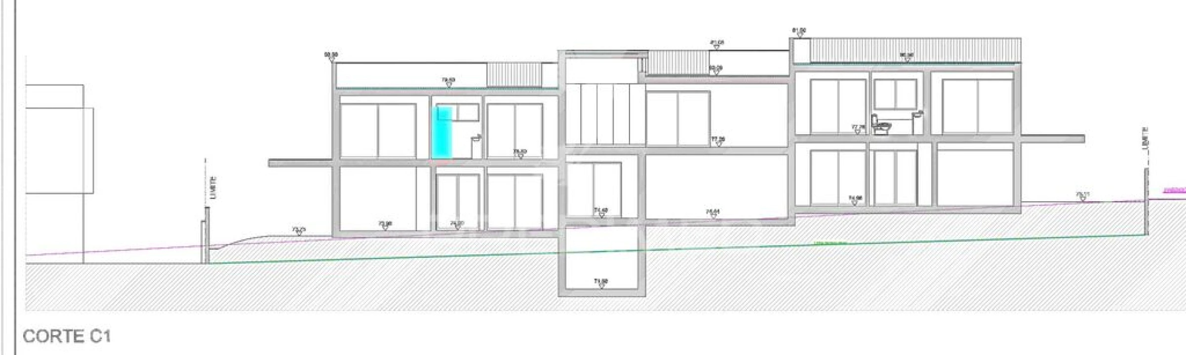
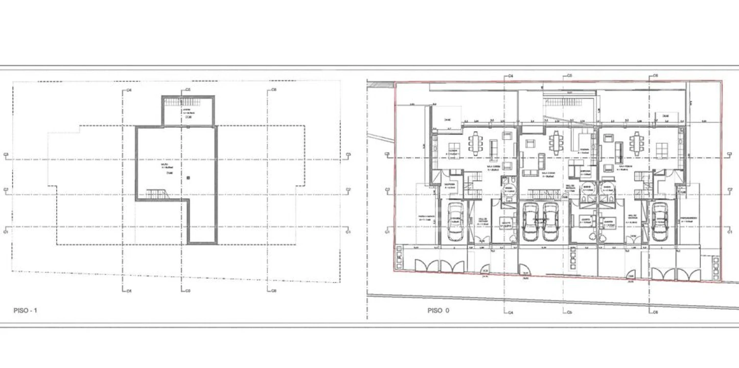
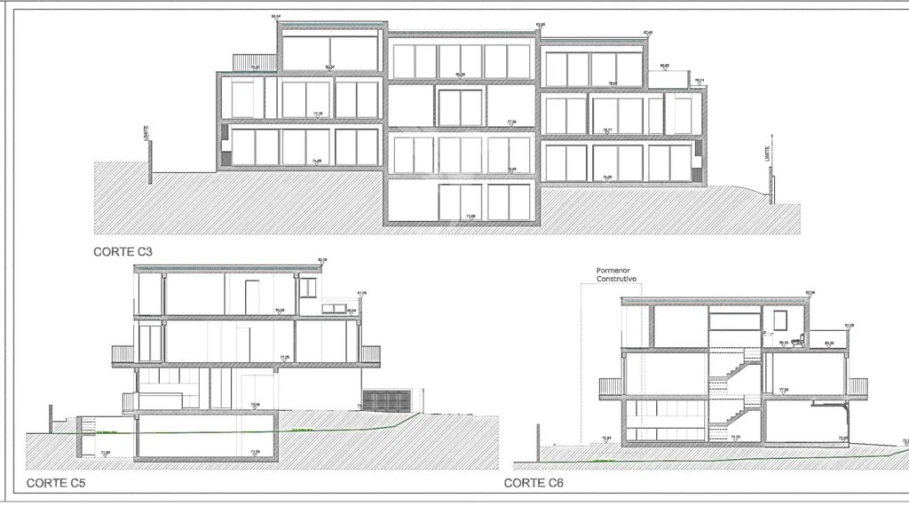
Terrenopara Construção de 3 moradias na Cidadeda MaiaExcelenteoportunidade de investimento na cidade da Maia, numa zona residencial tranquilae de grande valorização, junto aos ManinhosEsteterreno com 951,50 m² oferece viabilidade para construção de três moradiasgeminadas, uni ou multifamiliares, compostas por cave, rés-do-chão, primeiropiso e rooftopDevido àsua versatilidade e localização privilegiada, o terreno também permite aconstrução de um prédio em altura, com cave, rés-do-chão e primeiro piso, desdeque respeitada a morfotipologia dominante da zonaExisteprojeto aprovado para o terreno contíguo, sendo que as plantas são meramenteinformativas e elucidativas do potencial de construção do terreno à vendaEsteprojeto tem viabilidade para construção de 3 moradias T4, com cave(opcional),rés-do-cão, primeiro piso e rooftop, destribuído da seguinte formaNorés-do-chão – cozinha, sala, 1 quarto e 1 casa de banhoNoprimeiro piso – 3 quartos, sala TV e 2 casas de banhoNo rooftop– sala ampla, arrumos, lavandaria e 1 casa de banhoÁreasÁreatotal do terreno: 951,50 m²Áreabruta de construção: 655 m²Áreabruta dependente: 85 m² ZonaEnvolventeLocalizadonuma das áreas mais procuradas da Maia, o terreno beneficia de:Comércioe serviços nas proximidades (supermercados, cafés, escolas e farmácias);Excelentesacessos viários, próximo das principais vias de ligação à EN14, A41 e A3;Transportespúblicos a curta distância, estação metro da Maia, garantindo fácil acesso ao centro da Maia e ao Porto;Ambienteresidencial e tranquilo, ideal para famílias ou projetos habitacionais. Uma oportunidade únicapara construir o seu projeto num local de referência, com forte potencial devalorizaçãoPredimed Imobiliária, Mediação Imobiliária, Lda.Avenida Brasil 43, 12º Andar, 1700-062 LisboaLicença AMI nº 22503Pessoa Coletiva nº 517 239 345Seguro Responsabilidade Civil: Nº de Apólice RC65379424 Fidelidade

Características:
Áreas de Lazer Infantil;Auto-Estrada;Banco;Centro Comercial;Centro da Cidade;Escola;Espaços Verdes;Farmácia;Ginásio;Hipermercado;Metro;Orientação Solar;Polícia;Posto de Combustível;Transportes Públicos

Localização

Cidade da Maia, Maia, Porto

Informação do anúncio

ID do anúncio 1197757
Referência Externa 052609
Atualizado em 16/03/2026 00:40:56
Predimed Portugal AMI 13558
Referência do imóvel: 052609
Phone
Chamada para a rede fixa nacional
Predimed Portugal AMI 13558
Referência do imóvel: 052609
Phone
Chamada para a rede fixa nacional
1 / 18
Terreno para Venda em Cidade da Maia Foto 1
Terreno para Venda em Cidade da Maia Foto 2
Terreno para Venda em Cidade da Maia Foto 3
Terreno para Venda em Cidade da Maia Foto 4
Terreno para Venda em Cidade da Maia Foto 5
Terreno para Venda em Cidade da Maia Foto 6
Terreno para Venda em Cidade da Maia Foto 7
Terreno para Venda em Cidade da Maia Foto 8
Terreno para Venda em Cidade da Maia Foto 9
Terreno para Venda em Cidade da Maia Foto 10
Terreno para Venda em Cidade da Maia Foto 11
Terreno para Venda em Cidade da Maia Foto 12
Terreno para Venda em Cidade da Maia Foto 13
Terreno para Venda em Cidade da Maia Foto 14
Terreno para Venda em Cidade da Maia Foto 15
Terreno para Venda em Cidade da Maia Foto 16
Terreno para Venda em Cidade da Maia Foto 17
Terreno para Venda em Cidade da Maia Foto 18
Clicky