Voltar
Loja para Venda em Cidade da Maia Foto 1
Loja para Venda em Cidade da Maia Foto 2
Loja para Venda em Cidade da Maia Foto 3
Loja para Venda em Cidade da Maia Foto 4
Loja para Venda em Cidade da Maia Foto 5

Loja para Venda em Cidade da Maia

Sob consulta

Tipo
Loja
Negócio
Venda
Área Útil
2151 m²
Condição
Usado
Certificado Energético
Isento

Centro Comercial | Maia

O Centro Comercial Venepor localiza-se:

- a 30 Segundos do Centro da Cidade da Maia (Câmara Municipal, principal zona comércio e serviços da cidade da Maia),
- a 30 segundos da Linha do Metro (linha C) que une o Porto a Castelo da Maia, passando pela zona Industrial da Maia,
- a 1 minuto da Zona Industrial da Maia,
- a 1 minuto da Via Norte (N14) principal eixo de ligação entre Porto e Braga, 10 Minutos do Porto e 40 de Braga.
- a 2 minutos da Autoestrada (A41) que liga Matosinhos (Porto de Leixões) ás principais redes de autoestradas do norte - - A3 (Braga, Famalicão e Guimarães) e A1 (Porto e Lisboa), a 3 minutos do Aeroporto Sá Carneiro,
- a 10 minutos do centro da cidade do Porto.

O Centro comercial Venepor localiza-se em pleno Centro da Cidade da Maia.

Possui entradas por duas vias estruturantes e centrais da cidade: a Rua Simão Bolívar e a Avenida Visconde Barreiros.

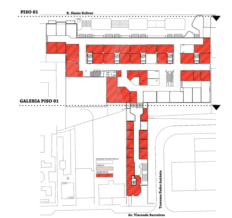
O Centro Comercial Venepor é constituído por 2 Pisos de Comércio, Auditório Cinema (Com capacidade para 400 pessoas) e um Piso de Estacionamento e Arrecadações.

A Venepor é proprietária de :

- 52 Lojas (área de 2.151m2),
- 53 Garagens e 29 Arrecadações.

Há ainda a possibilidade de adquirir mais 22 lugares de estacionamento.

A Imobiliaria Venepor , S.A. foi estabelecida e funciona desde 1979.
È uma empresa ativa sem divididas, penhoras ou hipotecas.

Localização

Cidade da Maia, Maia, Porto

Informação do anúncio

ID do anúncio 1200074
Referência Externa CEN_4069
Atualizado em 19/05/2025 10:40:50
Filipa Sarsfield Magalhães Unipessoal, Lda AMI 25155
Referência do imóvel: CEN_4069
Phone
Chamada para a rede móvel nacional
Filipa Sarsfield Magalhães Unipessoal, Lda AMI 25155
Referência do imóvel: CEN_4069
Phone
Chamada para a rede móvel nacional
1 / 10
Loja para Venda em Cidade da Maia Foto 1
Loja para Venda em Cidade da Maia Foto 2
Loja para Venda em Cidade da Maia Foto 3
Loja para Venda em Cidade da Maia Foto 4
Loja para Venda em Cidade da Maia Foto 5
Loja para Venda em Cidade da Maia Foto 6
Loja para Venda em Cidade da Maia Foto 7
Loja para Venda em Cidade da Maia Foto 8
Loja para Venda em Cidade da Maia Foto 9
Loja para Venda em Cidade da Maia Foto 10
Clicky