Quinta T5 para Venda em Querença, Tôr e Benafim
1.300.000 €
Tipo
Quinta
Negócio
Venda
Quartos
5
Área Bruta
135130 m²
Área Útil
95000 m²
Certificado Energético
N/A
Área do Terreno
95000 m²
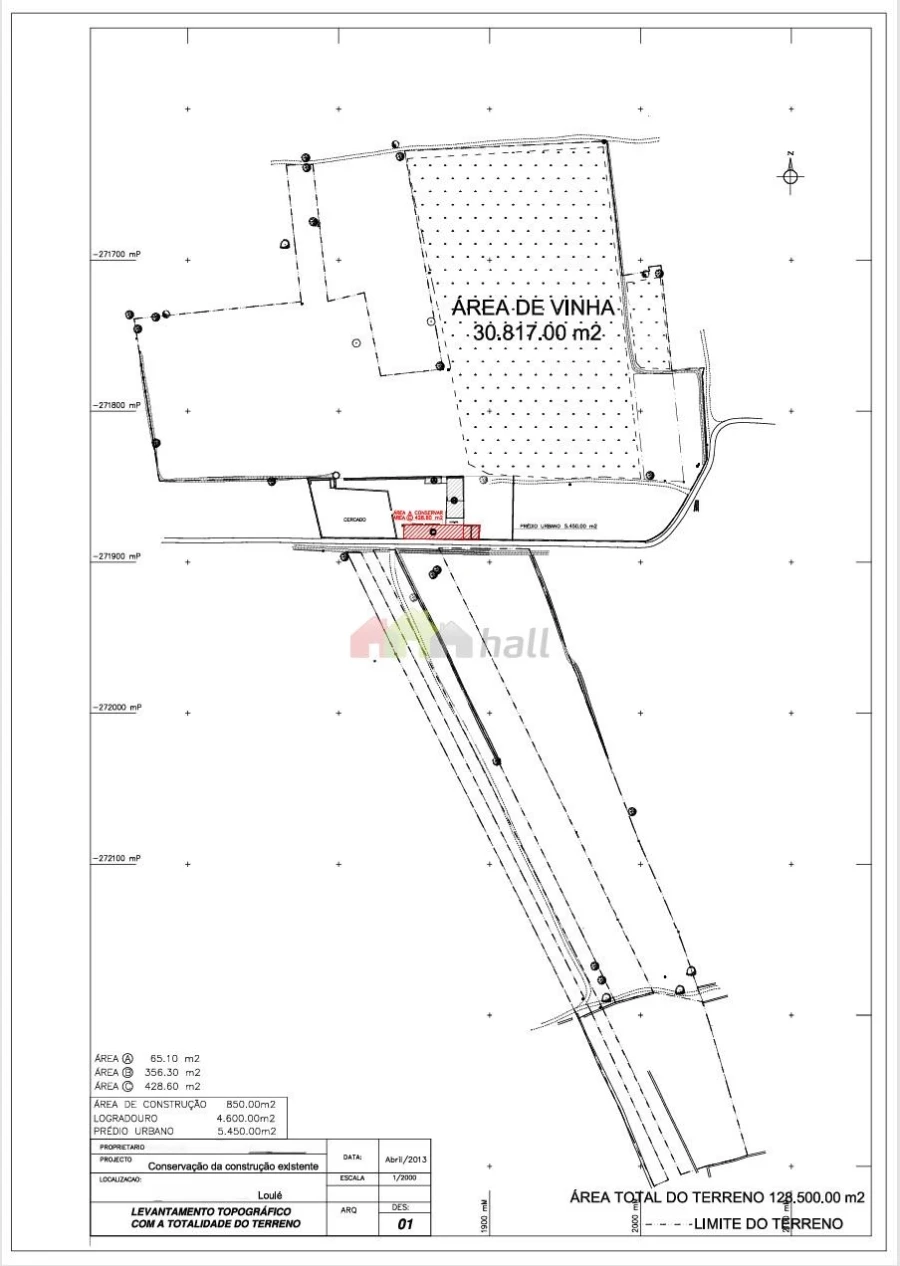
Quinta em Loulé com 9.5 ha com 850 m² construção
Quinta, na localidade de Benafim - Loulé, com 95.000 m² no levantamento, mas com 135.130 m² registados.
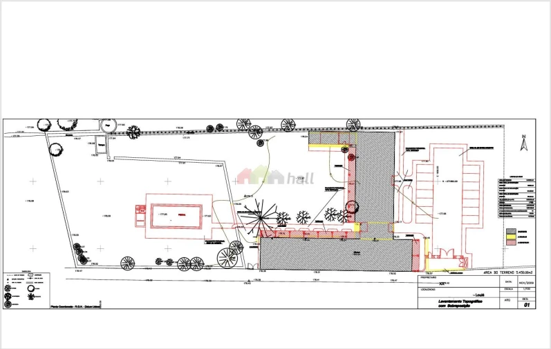
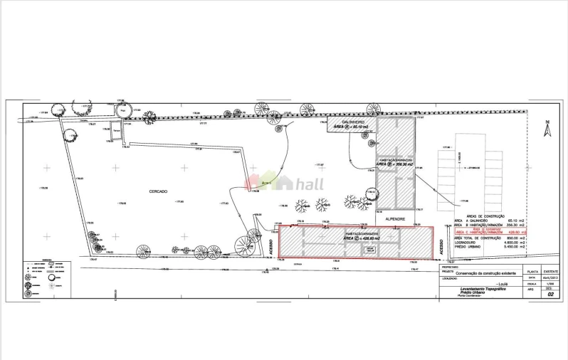
Tem 850 m² de construção que corresponde à implantação do imóvel, onde 500 m² já foram recuperados com telhado e a parte exterior, encontrando-se para recuperar os restantes 350 m². O interior encontra-se por recuperar e organizar conforme o fim a que se destinar.
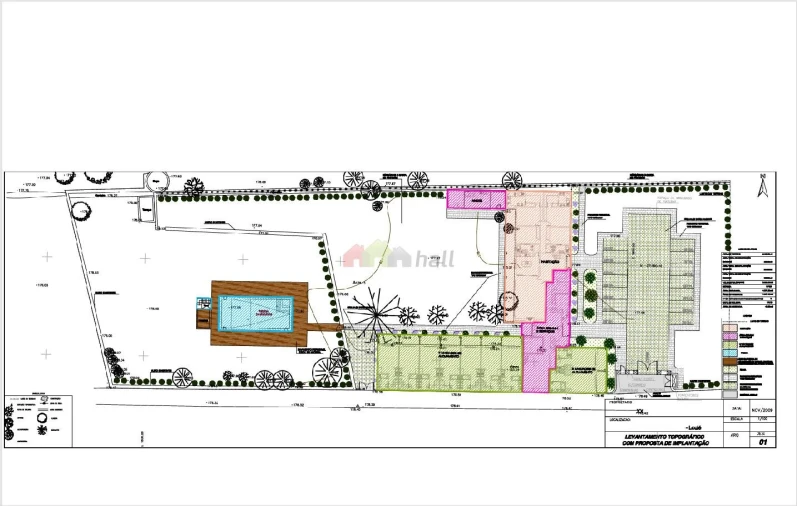
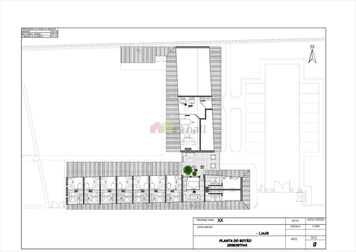
Nas plantas do projecto, conforme fotos, destinava-se a um hotel rural, estando previsto 15 quartos e uma área residencial para os proprietários com piscina independente.
Propriedade isenta de licenciamento de habitabilidade por trata-se de imóvel anterior a 1951.
ÁREAS
A área total registada de 135.130 m² resulta da soma dos seguintes três prédios:
Prédio rústico descrito sob o n.º 2348 – 128.500 m²
Prédio rústico descrito sob o n.º 21161 – 1.180 m²
Prédio urbano descrito sob o n.º 737 – 5.450 m²
Contudo, conforme o levantamento topográfico realizado, a área que foi apurada é de 95.000 m².
A área construída dispõe de levantamento do existente e de estudo/proposta apresentada à Câmara Municipal de Loulé para reconstrução e adaptação à funcionalidade de turismo rural.
LOCALIZAÇÃO
Enquadrada em zona de paisagem protegida e no coração de uma área de quintas, hotéis e resorts de renome, dispõe de uma excelente localização de fáceis acessos com estrada alcatroada até à entrada da propriedade, com condições excelentes para residir e para a atividade hoteleira.
Dispõe de condições e autorização de reconstrução de toda a área existente. Atendendo à localização e área, dispõe das melhores condições para a atividade de turismo rural.
Encontra-se a 6,9 km do local da Rocha da Pena (paisagem protegida), a 5,8 km da praia fluvial do Alte, a 5,3 k m da queda do Vigário, a 3 km da Quinta do Freixo, a 6 km do Resort da Viceroy at Ombria Algarve com lagos e campo de golfe, a cerca de 15 km de Vila Moura e a 39km do aeroporto de Faro.
Encontra-se disponível para visita e fornecimento de elementos ou documentação que considere relevantes para a aquisição do imóvel.
A empresa proprietária considera a possibilidade de analisar propostas de aquisição.
Venha conhecer esta propriedade.
Agende a sua visita com
VITAL ALVES
Referência : 006_193_546
Crédito à Habitação / Construção / outro?
Os nossos parceiros tratam de todo o processo do seu Crédito Habitação por si e gratuitamente.
Agência imobiliária - Hall Versátil Setúbal - Praça do Brasil, 1-B, 2900-285 Setúbal.
Tem 850 m² de construção que corresponde à implantação do imóvel, onde 500 m² já foram recuperados com telhado e a parte exterior, encontrando-se para recuperar os restantes 350 m². O interior encontra-se por recuperar e organizar conforme o fim a que se destinar.
Nas plantas do projecto, conforme fotos, destinava-se a um hotel rural, estando previsto 15 quartos e uma área residencial para os proprietários com piscina independente.
Propriedade isenta de licenciamento de habitabilidade por trata-se de imóvel anterior a 1951.
ÁREAS
A área total registada de 135.130 m² resulta da soma dos seguintes três prédios:
Prédio rústico descrito sob o n.º 2348 – 128.500 m²
Prédio rústico descrito sob o n.º 21161 – 1.180 m²
Prédio urbano descrito sob o n.º 737 – 5.450 m²
Contudo, conforme o levantamento topográfico realizado, a área que foi apurada é de 95.000 m².
A área construída dispõe de levantamento do existente e de estudo/proposta apresentada à Câmara Municipal de Loulé para reconstrução e adaptação à funcionalidade de turismo rural.
LOCALIZAÇÃO
Enquadrada em zona de paisagem protegida e no coração de uma área de quintas, hotéis e resorts de renome, dispõe de uma excelente localização de fáceis acessos com estrada alcatroada até à entrada da propriedade, com condições excelentes para residir e para a atividade hoteleira.
Dispõe de condições e autorização de reconstrução de toda a área existente. Atendendo à localização e área, dispõe das melhores condições para a atividade de turismo rural.
Encontra-se a 6,9 km do local da Rocha da Pena (paisagem protegida), a 5,8 km da praia fluvial do Alte, a 5,3 k m da queda do Vigário, a 3 km da Quinta do Freixo, a 6 km do Resort da Viceroy at Ombria Algarve com lagos e campo de golfe, a cerca de 15 km de Vila Moura e a 39km do aeroporto de Faro.
Encontra-se disponível para visita e fornecimento de elementos ou documentação que considere relevantes para a aquisição do imóvel.
A empresa proprietária considera a possibilidade de analisar propostas de aquisição.
Venha conhecer esta propriedade.
Agende a sua visita com
VITAL ALVES
Referência : 006_193_546
Crédito à Habitação / Construção / outro?
Os nossos parceiros tratam de todo o processo do seu Crédito Habitação por si e gratuitamente.
Agência imobiliária - Hall Versátil Setúbal - Praça do Brasil, 1-B, 2900-285 Setúbal.
Localização
Querença, Tôr e Benafim, Loulé, Faro
Informação do anúncio
ID do anúncio
1217196
Referência Externa
006.193.546
Atualizado em
25/04/2026 23:24:04
Anunciante
Chamada para a rede fixa nacional
Hall Versátil Setúbal
AMI 14802
Referência do imóvel:
006.193.546
Quinta T5 para Venda em Querença, Tôr e Benafim