Terreno para Venda em Estômbar e Parchal
1.450.000 €
Tipo
Terreno
Negócio
Venda
Condição
Não Aplicável
Certificado Energético
Isento
Área do Terreno
4690 m²
Casas de Campo 'Santa Leonor', Hotel de Turismo Rural
FAÇA CONNOSCO O MELHOR NEGÓCIO
CAMPANHA BAIXA DE PREÇO - FINAL DE ANO
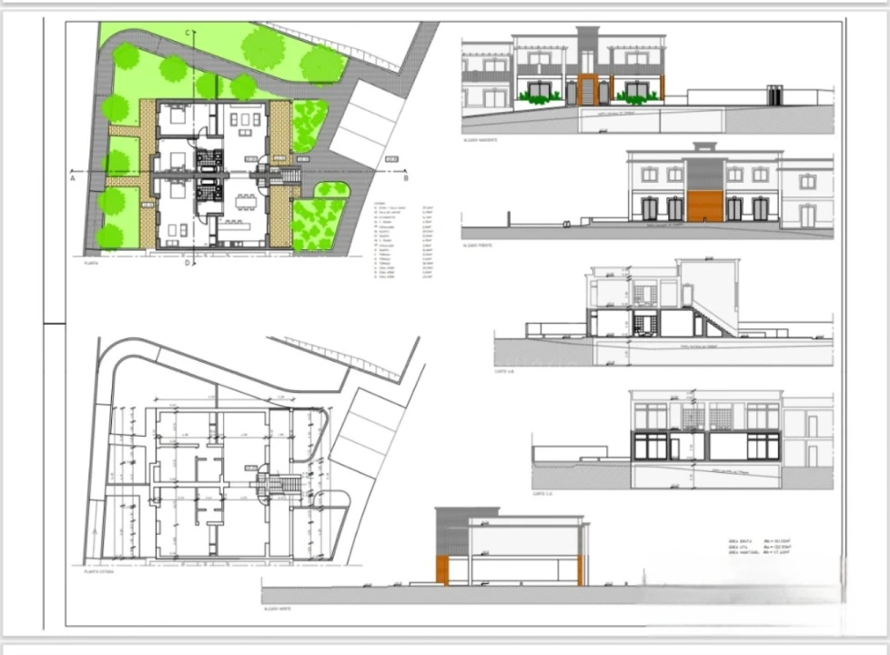
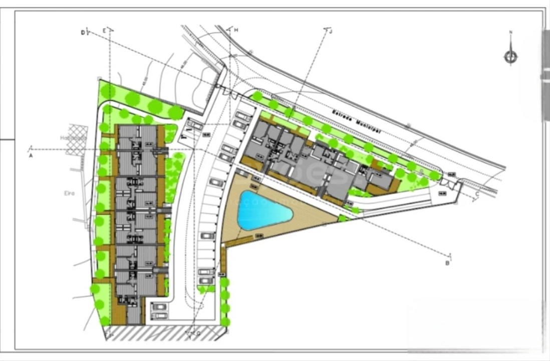
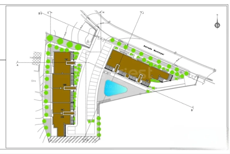
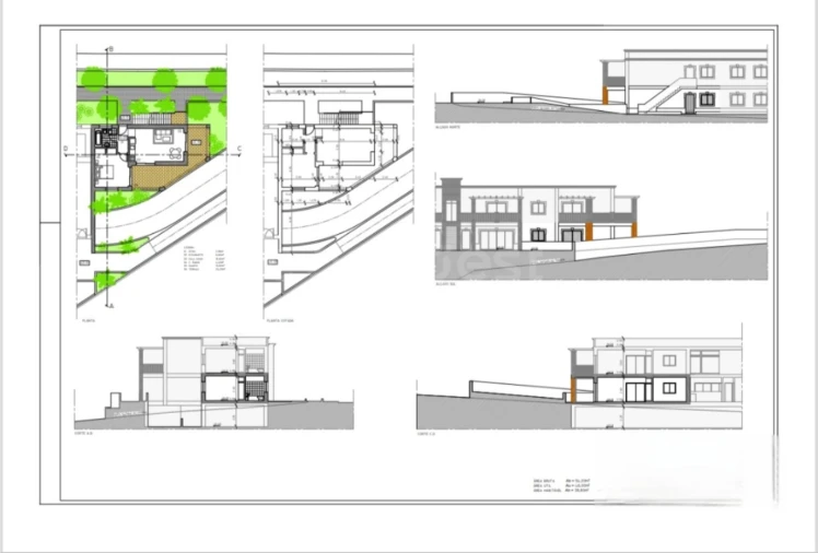
Projeto aprovado para as Casas de Campo 'Santa Leonor', um Hotel de Turismo Rural localizado nas Seixosas, numa zona rural de Ferragudo.
O empreendimento está situado em um lote de 4.690 m² com excelente acesso às praias de Ferragudo, Carvoeiro e Lagoa. A unidade de alojamento, que integra o Espaço Rural - Casas de Campo, é composta por 15 moradias geminadas, totalizando 39 quartos.
O complexo dispõe de receção, piscina, bar, garagem, lavandaria, sala de convívio, áreas verdes e demais comodidades.
Contamos com uma variedade de unidades de alojamento, oferecendo opções para diferentes necessidades e preferências:
Unidade de alojamento 1 - T3, 127 m2
Unidade de alojamento 2 - T2, 84 m2
Unidade de alojamento 3 - T3, 112 m2
Unidade de alojamento 4 - T3, 112 m2
Unidade de alojamento 5 - T3, 161 m2
Unidade de alojamento 6 - T2, 79 m2
Unidade de alojamento 7 - Edifício Principal, T3, 289 m2
Unidade de alojamento 8 - T1, 54 m2
Unidade de alojamento 9 - T3, 208 m2
Unidade de alojamento 10 - T3, 110 m2
Unidade de alojamento 11 - T3, 110 m2
Unidade de alojamento 12 - T3, 158 m2
Unidade de alojamento 13 -T3, 171 m2
Unidade de alojamento 14 - T3, 171 m2
Unidade de alojamento 15 -T1, 55 m2
As 15 unidades de alojamento estão distribuídas em duas zonas distintas: a cave, destinada a estacionamento, áreas técnicas e arrumos; e a parte superior, onde se situam as moradias. A unidade principal, designada AU7, inclui a receção, um átrio de entrada e uma sala comum que conecta duas áreas funcionais: uma destinada às refeições, com cozinha, lavandaria e despensa, e outra para convívio, composta por três suítes, sendo uma delas adaptada para acessibilidade para utentes com mobilidade reduzida.
Ferragudo é uma vila repleta de atrativos, desde os seus pontos históricos até às suas praias paradisíacas, passando pelo comércio local vibrante, uma vasta seleção de restaurantes e cafés, além de diversas opções de lazer que enriquecem a experiência na região. A proximidade de Portimão oferece a conveniência de acesso a lojas, hospitais e outras infraestruturas essenciais, permitindo desfrutar da tranquilidade e do som relaxante do mar, sem abrir mão do conforto urbano.
Tratamos do seu processo de crédito, sem burocracias apresentando as melhores soluções para cada cliente.
Intermediário de crédito certificado pelo Banco de Portugal com o nº 0001802.
Ajudamos com todo o processo! Entre em contacto connosco ou deixe-nos os seus dados e entraremos em contacto assim que possível!
AL89246LP
CAMPANHA BAIXA DE PREÇO - FINAL DE ANO
Projeto aprovado para as Casas de Campo 'Santa Leonor', um Hotel de Turismo Rural localizado nas Seixosas, numa zona rural de Ferragudo.
O empreendimento está situado em um lote de 4.690 m² com excelente acesso às praias de Ferragudo, Carvoeiro e Lagoa. A unidade de alojamento, que integra o Espaço Rural - Casas de Campo, é composta por 15 moradias geminadas, totalizando 39 quartos.
O complexo dispõe de receção, piscina, bar, garagem, lavandaria, sala de convívio, áreas verdes e demais comodidades.
Contamos com uma variedade de unidades de alojamento, oferecendo opções para diferentes necessidades e preferências:
Unidade de alojamento 1 - T3, 127 m2
Unidade de alojamento 2 - T2, 84 m2
Unidade de alojamento 3 - T3, 112 m2
Unidade de alojamento 4 - T3, 112 m2
Unidade de alojamento 5 - T3, 161 m2
Unidade de alojamento 6 - T2, 79 m2
Unidade de alojamento 7 - Edifício Principal, T3, 289 m2
Unidade de alojamento 8 - T1, 54 m2
Unidade de alojamento 9 - T3, 208 m2
Unidade de alojamento 10 - T3, 110 m2
Unidade de alojamento 11 - T3, 110 m2
Unidade de alojamento 12 - T3, 158 m2
Unidade de alojamento 13 -T3, 171 m2
Unidade de alojamento 14 - T3, 171 m2
Unidade de alojamento 15 -T1, 55 m2
As 15 unidades de alojamento estão distribuídas em duas zonas distintas: a cave, destinada a estacionamento, áreas técnicas e arrumos; e a parte superior, onde se situam as moradias. A unidade principal, designada AU7, inclui a receção, um átrio de entrada e uma sala comum que conecta duas áreas funcionais: uma destinada às refeições, com cozinha, lavandaria e despensa, e outra para convívio, composta por três suítes, sendo uma delas adaptada para acessibilidade para utentes com mobilidade reduzida.
Ferragudo é uma vila repleta de atrativos, desde os seus pontos históricos até às suas praias paradisíacas, passando pelo comércio local vibrante, uma vasta seleção de restaurantes e cafés, além de diversas opções de lazer que enriquecem a experiência na região. A proximidade de Portimão oferece a conveniência de acesso a lojas, hospitais e outras infraestruturas essenciais, permitindo desfrutar da tranquilidade e do som relaxante do mar, sem abrir mão do conforto urbano.
Tratamos do seu processo de crédito, sem burocracias apresentando as melhores soluções para cada cliente.
Intermediário de crédito certificado pelo Banco de Portugal com o nº 0001802.
Ajudamos com todo o processo! Entre em contacto connosco ou deixe-nos os seus dados e entraremos em contacto assim que possível!
AL89246LP
Localização
Estômbar e Parchal, Lagoa (Algarve), Faro
Informação do anúncio
ID do anúncio
1219867
Referência Externa
AL89246LP
Atualizado em
23/01/2026 19:00:25
Consultor
EasyGest Mediação Imobiliária
Terreno para Venda em Estômbar e Parchal
Vídeo