Moradia T4 para Venda em Paramos
495.000 €
Tipo
Moradia
Negócio
Venda
Quartos
4
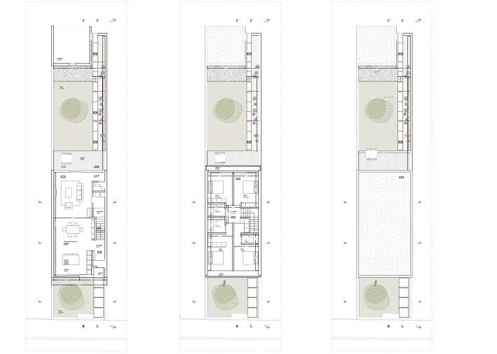
Área Bruta
210 m²
Área Útil
151 m²
Condição
Novo
Certificado Energético
A+
Área do Terreno
258 m²
Moradia em Banda T4 Venda em Paramos,Espinho
Moradia T4 para venda em Paramos, Espinho, modernidade e tranquilidade com Vista mar.
Esta moradia T4 em construção oferece uma combinação ideal de modernidade, conforto e localização privilegiada. Situada a apenas 1000 metros da praia e a 500 metros do campo de golfe, proporciona fácil acesso a lazer e natureza.
Com um design contemporâneo de duas frentes, a propriedade garante uma excelente exposição solar, criando ambientes luminosos e acolhedores. Há a possibilidade de construção de piscina, permitindo personalizar o espaço exterior ao seu gosto.
Um dos grandes atrativos desta moradia é a sua vista mar, que se complementa com a tranquilidade da localização. Inserida numa zona serena, ideal para quem procura um refúgio do ritmo urbano, beneficia ainda de acabamentos de qualidade, assegurando durabilidade e sofisticação.
Em resumo, esta é a oportunidade perfeita para adquirir uma moradia nova que alia:
* Tipologia T4
* Design moderno
* Proximidade à praia e golfe
* Vista mar e boa exposição solar
* Localização tranquila
* Possibilidade de piscina
MAPA DE ACABAMENTOS:
· Alvenaria de bloco térmico com revestimento sistema ETICS
· Pavimento exterior em betão
· Terraço exterior em deck cerâmico
· Guarda corpos nas varandas em vidro laminado
· Pavimento moradia vinílico
· Casas de banho das suítes e de apoio aos quartos revestidas commicrocimento (pavimento e paredes)
· Base de duche em microcimento
· Paredes interiores com alheta no pavimento
· Móveis cozinha até ao teto com portas em MDF hidrófugo lacadas brancomate
· Ilha com pedra Silestone
· Cozinha com forno, micro-ondas, frigorífico e máquina de lavar louça marcaBosch (séries definidas)
· Placa indução elétrica com extrator integrado de marca a definir
· Roupeiros e interior melamínico linho cancún com portas MDF lacadasbranco mate
· Portas lacadas a branco mate até ao teto· Escadaria madeira maciça
· Sancas janelas · Fita LED ao longo do comprimento do open space
· Sanitas e móveis WC suspensos
· Pré-instalação de ar condicionado
· VMC (a definir se fluxo simples ou fluxo duplo)
· Bomba de calor AQS para aquecimento de águas
· Vídeo porteiro
· Estores elétricos em alumínio com poliuretano no interior
Entre em contacto para mais informações acerca deste projecto.
Esta moradia T4 em construção oferece uma combinação ideal de modernidade, conforto e localização privilegiada. Situada a apenas 1000 metros da praia e a 500 metros do campo de golfe, proporciona fácil acesso a lazer e natureza.
Com um design contemporâneo de duas frentes, a propriedade garante uma excelente exposição solar, criando ambientes luminosos e acolhedores. Há a possibilidade de construção de piscina, permitindo personalizar o espaço exterior ao seu gosto.
Um dos grandes atrativos desta moradia é a sua vista mar, que se complementa com a tranquilidade da localização. Inserida numa zona serena, ideal para quem procura um refúgio do ritmo urbano, beneficia ainda de acabamentos de qualidade, assegurando durabilidade e sofisticação.
Em resumo, esta é a oportunidade perfeita para adquirir uma moradia nova que alia:
* Tipologia T4
* Design moderno
* Proximidade à praia e golfe
* Vista mar e boa exposição solar
* Localização tranquila
* Possibilidade de piscina
MAPA DE ACABAMENTOS:
· Alvenaria de bloco térmico com revestimento sistema ETICS
· Pavimento exterior em betão
· Terraço exterior em deck cerâmico
· Guarda corpos nas varandas em vidro laminado
· Pavimento moradia vinílico
· Casas de banho das suítes e de apoio aos quartos revestidas commicrocimento (pavimento e paredes)
· Base de duche em microcimento
· Paredes interiores com alheta no pavimento
· Móveis cozinha até ao teto com portas em MDF hidrófugo lacadas brancomate
· Ilha com pedra Silestone
· Cozinha com forno, micro-ondas, frigorífico e máquina de lavar louça marcaBosch (séries definidas)
· Placa indução elétrica com extrator integrado de marca a definir
· Roupeiros e interior melamínico linho cancún com portas MDF lacadasbranco mate
· Portas lacadas a branco mate até ao teto· Escadaria madeira maciça
· Sancas janelas · Fita LED ao longo do comprimento do open space
· Sanitas e móveis WC suspensos
· Pré-instalação de ar condicionado
· VMC (a definir se fluxo simples ou fluxo duplo)
· Bomba de calor AQS para aquecimento de águas
· Vídeo porteiro
· Estores elétricos em alumínio com poliuretano no interior
Entre em contacto para mais informações acerca deste projecto.
Localização
Paramos, Espinho, Aveiro
Informação do anúncio
ID do anúncio
1226641
Referência Externa
4159
Atualizado em
26/02/2026 03:03:02
Moradia T4 para Venda em Paramos
Vídeo