Moradia T4 para Venda em Vila do Porto
320.000 €
Tipo
Moradia
Negócio
Venda
Quartos
4
Casas de Banho
4
Área Bruta
300 m²
Área Útil
300 m²
Condição
Usado
Certificado Energético
Isento
Área do Terreno
374 m²
Descrição
Identificação do imóvel: ZMPT577663
Apresenta-se este prédio urbano para reabilitação, situado no centro de Vila do Porto, na ilha de Santa Maria. Uma oportunidade de investimento com projeto desenvolvido para reorganização do edifício em várias unidades habitacionais e espaço de serviço.
O imóvel encontra-se inserido numa das principais artérias da vila, beneficiando de proximidade a comércio, serviços, equipamentos públicos e à zona central histórica.
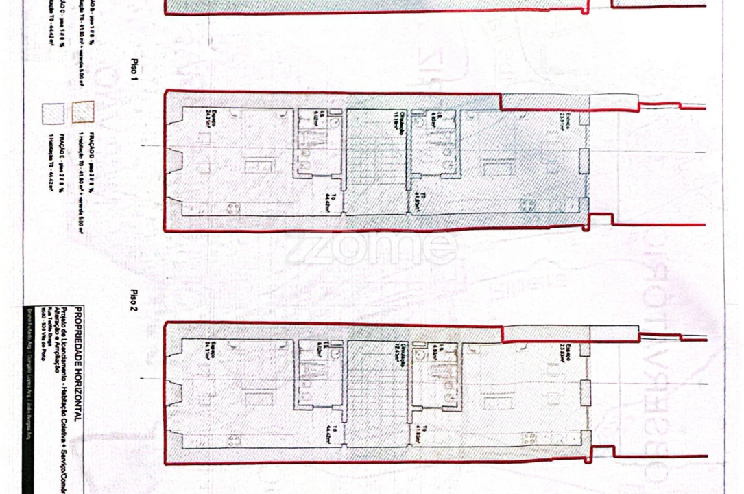
De acordo com o projeto desenvolvido, o edifício será reorganizado em três pisos. No rés-do-chão, está prevista uma área destinada a serviços.
Principais características:
- Prédio urbano para reabilitação no centro de Vila do Porto;
- Projeto para reorganização do edifício em 3 pisos;
- Rés-do-chão destinado a serviços;
- 4 apartamentos T0 previstos nos pisos 1 e 2;
- Frações com áreas aproximadas entre 41 m² e 44 m2;
- Possibilidade de exploração para arrendamento ou investimento turístico;
- Edifício inserido em zona urbana consolidada;
- Proximidade a comércio, serviços e zona central da vila;
- A poucos minutos da frente marítima e zona portuária.
O projeto prevê a seguinte distribuição:
• Fração A (Piso 0): Espaço destinado a serviços, com 32,92 m², ideal para escritório ou pequeno comércio.
• Fração B (Piso 1): Apartamento T0 com 41,80 m² e varanda de 5 m², perfeito para arrendamento de curta ou longa duração.
• Fração C (Piso 1): Apartamento T0 com 44,42 m².
• Fração D (Piso 2): Apartamento T0 com 41,80 m² e varanda de 5 m², com vista privilegiada.
• Fração E (Piso 2): Apartamento T0 com 44,42 m².
Santa Maria é a ilha mais a sul dos Açores, conhecida pelo clima mais seco e solarengo do arquipélago, pelas paisagens naturais e pelas praias de areia clara. Vila do Porto, sede do concelho e a povoação mais antiga dos Açores, concentra comércio, serviços e vida local, mantendo um centro histórico com forte identidade e uma relação próxima com o mar.
Nota: Nos termos do Decreto Legislativo Regional n.º 9/2025, de 12 de fevereiro, que adapta à Região Autónoma dos Açores o Decreto-Lei n.º 101-D/2020, informa-se que a obtenção do Certificado Energético se encontra em curso.
3 razões para comprar com a Zome
+ acompanhamento
Com uma preparação e experiência única no mercado imobiliário, os consultores Zome põem toda a sua dedicação em dar-lhe o melhor acompanhamento, orientando-o com a máxima confiança, na direção certa das suas necessidades e ambições.
Daqui para a frente, vamos criar uma relação próxima e escutar com atenção as suas expectativas, porque a nossa prioridade é a sua felicidade! Porque é importante que sinta que está acompanhado, e que estamos consigo sempre.
+ simples
Os consultores Zome têm uma formação única no mercado, ancorada na partilha de experiência prática entre profissionais e fortalecida pelo conhecimento de neurociência aplicada que lhes permite simplificar e tornar mais eficaz a sua experiência imobiliária.
Deixe para trás os pesadelos burocráticos porque na Zome encontra o apoio total de uma equipa experiente e multidisciplinar que lhe dá suporte prático em todos os aspetos fundamentais, para que a sua experiência imobiliária supere as expectativas.
+ feliz
O nosso maior valor é entregar-lhe felicidade!
Liberte-se de preocupações e ganhe o tempo de qualidade que necessita para se dedicar ao que lhe faz mais feliz.
Agimos diariamente para trazer mais valor à sua vida com o aconselhamento fiável de que precisa para, juntos, conseguirmos atingir os melhores resultados.
Com a Zome nunca vai estar perdido ou desacompanhado e encontrará algo que não tem preço: a sua máxima tranquilidade!
É assim que se vai sentir ao longo de toda a experiência: Tranquilo, seguro, confortável e... FELIZ!
Notas:
1. Caso seja um consultor imobiliário, este imóvel está disponível para partilha de negócio. Não hesite em apresentar aos seus clientes compradores e fale connosco para agendar a sua visita.
2. Para maior facilidade na identificação deste imóvel, por favor, refira o respetivo ID ZMPT ou o respetivo agente que lhe tenha enviado a sugestão.
Apresenta-se este prédio urbano para reabilitação, situado no centro de Vila do Porto, na ilha de Santa Maria. Uma oportunidade de investimento com projeto desenvolvido para reorganização do edifício em várias unidades habitacionais e espaço de serviço.
O imóvel encontra-se inserido numa das principais artérias da vila, beneficiando de proximidade a comércio, serviços, equipamentos públicos e à zona central histórica.
De acordo com o projeto desenvolvido, o edifício será reorganizado em três pisos. No rés-do-chão, está prevista uma área destinada a serviços.
Principais características:
- Prédio urbano para reabilitação no centro de Vila do Porto;
- Projeto para reorganização do edifício em 3 pisos;
- Rés-do-chão destinado a serviços;
- 4 apartamentos T0 previstos nos pisos 1 e 2;
- Frações com áreas aproximadas entre 41 m² e 44 m2;
- Possibilidade de exploração para arrendamento ou investimento turístico;
- Edifício inserido em zona urbana consolidada;
- Proximidade a comércio, serviços e zona central da vila;
- A poucos minutos da frente marítima e zona portuária.
O projeto prevê a seguinte distribuição:
• Fração A (Piso 0): Espaço destinado a serviços, com 32,92 m², ideal para escritório ou pequeno comércio.
• Fração B (Piso 1): Apartamento T0 com 41,80 m² e varanda de 5 m², perfeito para arrendamento de curta ou longa duração.
• Fração C (Piso 1): Apartamento T0 com 44,42 m².
• Fração D (Piso 2): Apartamento T0 com 41,80 m² e varanda de 5 m², com vista privilegiada.
• Fração E (Piso 2): Apartamento T0 com 44,42 m².
Santa Maria é a ilha mais a sul dos Açores, conhecida pelo clima mais seco e solarengo do arquipélago, pelas paisagens naturais e pelas praias de areia clara. Vila do Porto, sede do concelho e a povoação mais antiga dos Açores, concentra comércio, serviços e vida local, mantendo um centro histórico com forte identidade e uma relação próxima com o mar.
Nota: Nos termos do Decreto Legislativo Regional n.º 9/2025, de 12 de fevereiro, que adapta à Região Autónoma dos Açores o Decreto-Lei n.º 101-D/2020, informa-se que a obtenção do Certificado Energético se encontra em curso.
3 razões para comprar com a Zome
+ acompanhamento
Com uma preparação e experiência única no mercado imobiliário, os consultores Zome põem toda a sua dedicação em dar-lhe o melhor acompanhamento, orientando-o com a máxima confiança, na direção certa das suas necessidades e ambições.
Daqui para a frente, vamos criar uma relação próxima e escutar com atenção as suas expectativas, porque a nossa prioridade é a sua felicidade! Porque é importante que sinta que está acompanhado, e que estamos consigo sempre.
+ simples
Os consultores Zome têm uma formação única no mercado, ancorada na partilha de experiência prática entre profissionais e fortalecida pelo conhecimento de neurociência aplicada que lhes permite simplificar e tornar mais eficaz a sua experiência imobiliária.
Deixe para trás os pesadelos burocráticos porque na Zome encontra o apoio total de uma equipa experiente e multidisciplinar que lhe dá suporte prático em todos os aspetos fundamentais, para que a sua experiência imobiliária supere as expectativas.
+ feliz
O nosso maior valor é entregar-lhe felicidade!
Liberte-se de preocupações e ganhe o tempo de qualidade que necessita para se dedicar ao que lhe faz mais feliz.
Agimos diariamente para trazer mais valor à sua vida com o aconselhamento fiável de que precisa para, juntos, conseguirmos atingir os melhores resultados.
Com a Zome nunca vai estar perdido ou desacompanhado e encontrará algo que não tem preço: a sua máxima tranquilidade!
É assim que se vai sentir ao longo de toda a experiência: Tranquilo, seguro, confortável e... FELIZ!
Notas:
1. Caso seja um consultor imobiliário, este imóvel está disponível para partilha de negócio. Não hesite em apresentar aos seus clientes compradores e fale connosco para agendar a sua visita.
2. Para maior facilidade na identificação deste imóvel, por favor, refira o respetivo ID ZMPT ou o respetivo agente que lhe tenha enviado a sugestão.
Localização
Rua Teófilo Braga
Vila do Porto, Vila do Porto, Ilha de Santa Maria
A localização exacta do imóvel não está disponível. O mapa apresenta a zona aproximada.
Informação do anúncio
ID do anúncio
1226866
Referência Externa
ZMPT577663
Atualizado em
26/04/2026 06:06:15
Moradia T4 para Venda em Vila do Porto