Terreno para Venda em Quarteira
1.800.000 €
Tipo
Terreno
Negócio
Venda
Condição
Não aplicável
Certificado Energético
Não aplicável
Área do Terreno
1281 m²
Terreno com projeto aprovado para espaço comercial, Vilamoura
Terreno com Projeto Aprovado para Restaurante na Avenida Principal de Vilamoura
Oportunidade única para investimento em Vilamoura!
Terreno urbano com projeto aprovado para restaurante situado na avenida principal de Vilamoura, uma das zonas com maior visibilidade e tráfego pedonal e automóvel da região. Excelente localização para exploração comercial num dos destinos turísticos mais prestigiados do Algarve.
-> Características principais:
Localização Premium: avenida de grande movimento em Vilamoura, ideal para captar clientes locais e turistas.
Área total do terreno: 1.281 m².
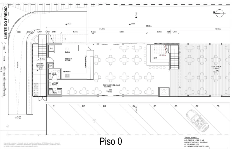
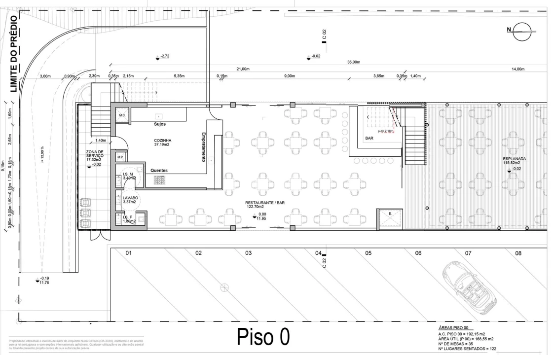
Projeto aprovado: construção de restaurante com três níveis piso 0, piso 1, cobertura com potencial para rooftop e ainda cave para arrumos.
Estacionamento privativo incluído, um diferencial valioso na zona central de Vilamoura.
-> Benefícios:
Visibilidade e acessibilidade incomparáveis para negócios de restauração ou serviços de alto padrão.
Potencial elevado de rentabilidade devido à localização estratégica e infraestrutura planeada.
Ideal para investidores que procuram um projeto pronto a iniciar em zona de alto prestígio.
VAP103130
Oportunidade única para investimento em Vilamoura!
Terreno urbano com projeto aprovado para restaurante situado na avenida principal de Vilamoura, uma das zonas com maior visibilidade e tráfego pedonal e automóvel da região. Excelente localização para exploração comercial num dos destinos turísticos mais prestigiados do Algarve.
-> Características principais:
Localização Premium: avenida de grande movimento em Vilamoura, ideal para captar clientes locais e turistas.
Área total do terreno: 1.281 m².
Projeto aprovado: construção de restaurante com três níveis piso 0, piso 1, cobertura com potencial para rooftop e ainda cave para arrumos.
Estacionamento privativo incluído, um diferencial valioso na zona central de Vilamoura.
-> Benefícios:
Visibilidade e acessibilidade incomparáveis para negócios de restauração ou serviços de alto padrão.
Potencial elevado de rentabilidade devido à localização estratégica e infraestrutura planeada.
Ideal para investidores que procuram um projeto pronto a iniciar em zona de alto prestígio.
VAP103130
Localização
Quarteira, Loulé, Faro
Informação do anúncio
ID do anúncio
1234176
Referência Externa
VAP103130
Atualizado em
07/05/2026 00:30:33
Anunciante
Chamada para a rede fixa nacional
VAP Real Estate
AMI 10094
Referência do imóvel:
VAP103130
Terreno para Venda em Quarteira