Moradia T3 para Venda em Arcozelo
475.000 €
Tipo
Moradia
Negócio
Venda
Quartos
3
Casas de Banho
3
Área Bruta
136 m²
Área Útil
136 m²
Garagem
2 lugares
Condição
Novo
Certificado Energético
A
Área do Terreno
300 m²
Descrição
Identificação do imóvel: ZMPT576315
Moradia em Construção, entrega chave na mão, T3, 1 suite, 3 WC's, 2 pisos, arquitetura moderna, garagem fechada, anexos, Rua Dom Dinis, Lugar de Calçadas, Arcozelo, Barcelos.
MORADA: Rua Dom Dinis, Lote 17, Lugar Calçadas, Arcozelo, 4750-141 Barcelos
https://maps.app.goo.gl/88WfNYi8zL75nSB57
CARACTERÍSTICAS:
- Arquitetura moderna
- 1 Arrecadação e Anexo
- Código Postal: 4750-141
- Com Alvará de Licenciamento de Obras de Construção (Ano 2023)
- Com Projeto de Arquitetura
- Com Projeto de Especialidades
- Com Taxas de Licença de Construção
- Com Ramal de Abastecimento de Água
- Com Ramal de Eletricidade
- Com Ramal de Saneamento
- Construção executada até à data e entrega chave na mão:
- Estrutura de betão
- Alvenarias exteriores
- Alvenarias interiores
- Regularização de Coberturas
- Infraestrutruras enterradas na casa e logradouro
- Muros de vedação
- Excelente qualidade construtiva
- Freguesia de Arcozelo
- 1 Garagem fechada com ±19m²
- Habitação Unifamiliar
- Lote nº 17
- Lugar de Calçadas
- Morada: Rua Dom Dinis, Lote 17, Lugar Calçadas, Arcozelo, Barcelos
- Muita iluminação interior
- Pré-Certificado Energético: "A"
- 2 Quartos
- Sem acabamentos executados
- Sem varandas
- Sem poço
- 1 Suite, WC com luz direta da cobertura
- 1 Terraço no Piso 1
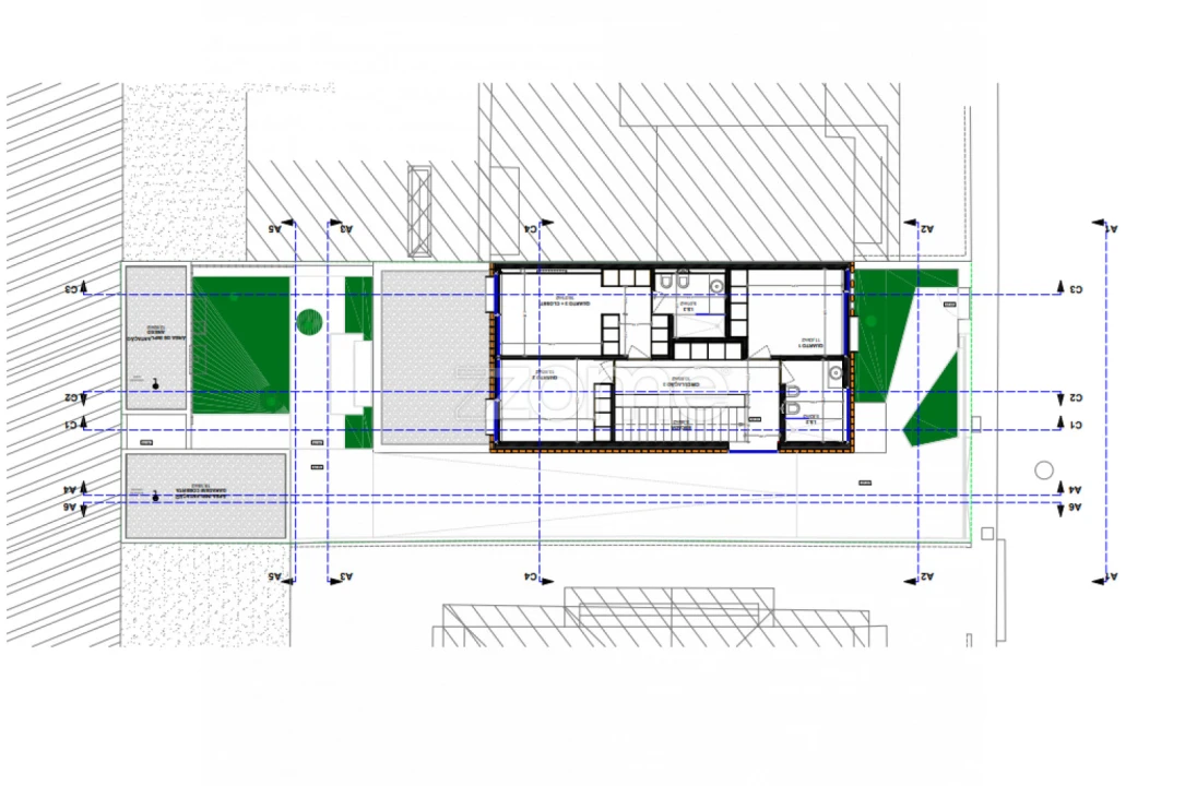
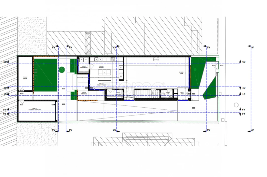
DIMENSÕES - 1º PISO:
- Hall: 3.53m²
- Sala: 43.29m²
- WC: 2.18m²
- Circulação ao piso superior: 2.35m²
- Cozinha: 21.69m²
- Lavandaria: 3.59m²
- Terraço: 9.54m²
- Garagem Coberta: 19.18m²
- Anexo: 10.14m²
DIMENSÕES - 2º PISO:
- Quarto 1: 11.43m²
- WC: 5.82m²
- Circulação: 10.80m²
- Quarto 2: 10.97m²
- Suite: 16.01m²
- WC da Suite: 5.01m²
ÁREAS:
- Área total de terreno: 300m²
- Área de construção: 218,21m²
- Área de implantação: 142,63m²
- Volumetria: 702,98m³
- Altura da Fachada: 6,37m
- Nº de Pisos Acima da Cota da Soleira: 2
- Nº de Pisos abaixo da Cota da Soleira: 0
- Nº de Fogos: 1
Faça Visita! Faça Proposta de Compra!
Notas: Caso seja um consultor imobiliário, este imóvel está disponível para partilha de negócio.
3 razões para comprar com a Zome
+ acompanhamento
Com uma preparação e experiência única no mercado imobiliário, os consultores Zome põem toda a sua dedicação em dar-lhe o melhor acompanhamento, orientando-o com a máxima confiança, na direção certa das suas necessidades e ambições.
Daqui para a frente, vamos criar uma relação próxima e escutar com atenção as suas expectativas, porque a nossa prioridade é a sua felicidade! Porque é importante que sinta que está acompanhado, e que estamos consigo sempre.
+ simples
Os consultores Zome têm uma formação única no mercado, ancorada na partilha de experiência prática entre profissionais e fortalecida pelo conhecimento de neurociência aplicada que lhes permite simplificar e tornar mais eficaz a sua experiência imobiliária.
Deixe para trás os pesadelos burocráticos porque na Zome encontra o apoio total de uma equipa experiente e multidisciplinar que lhe dá suporte prático em todos os aspetos fundamentais, para que a sua experiência imobiliária supere as expectativas.
+ feliz
O nosso maior valor é entregar-lhe felicidade!
Liberte-se de preocupações e ganhe o tempo de qualidade que necessita para se dedicar ao que lhe faz mais feliz.
Agimos diariamente para trazer mais valor à sua vida com o aconselhamento fiável de que precisa para, juntos, conseguirmos atingir os melhores resultados.
Com a Zome nunca vai estar perdido ou desacompanhado e encontrará algo que não tem preço: a sua máxima tranquilidade!
É assim que se vai sentir ao longo de toda a experiência: Tranquilo, seguro, confortável e... FELIZ!
Notas:
1. Caso seja um consultor imobiliário, este imóvel está disponível para partilha de negócio. Não hesite em apresentar aos seus clientes compradores e fale connosco para agendar a sua visita.
2. Para maior facilidade na identificação deste imóvel, por favor, refira o respetivo ID ZMPT ou o respetivo agente que lhe tenha enviado a sugestão.
Moradia em Construção, entrega chave na mão, T3, 1 suite, 3 WC's, 2 pisos, arquitetura moderna, garagem fechada, anexos, Rua Dom Dinis, Lugar de Calçadas, Arcozelo, Barcelos.
MORADA: Rua Dom Dinis, Lote 17, Lugar Calçadas, Arcozelo, 4750-141 Barcelos
https://maps.app.goo.gl/88WfNYi8zL75nSB57
CARACTERÍSTICAS:
- Arquitetura moderna
- 1 Arrecadação e Anexo
- Código Postal: 4750-141
- Com Alvará de Licenciamento de Obras de Construção (Ano 2023)
- Com Projeto de Arquitetura
- Com Projeto de Especialidades
- Com Taxas de Licença de Construção
- Com Ramal de Abastecimento de Água
- Com Ramal de Eletricidade
- Com Ramal de Saneamento
- Construção executada até à data e entrega chave na mão:
- Estrutura de betão
- Alvenarias exteriores
- Alvenarias interiores
- Regularização de Coberturas
- Infraestrutruras enterradas na casa e logradouro
- Muros de vedação
- Excelente qualidade construtiva
- Freguesia de Arcozelo
- 1 Garagem fechada com ±19m²
- Habitação Unifamiliar
- Lote nº 17
- Lugar de Calçadas
- Morada: Rua Dom Dinis, Lote 17, Lugar Calçadas, Arcozelo, Barcelos
- Muita iluminação interior
- Pré-Certificado Energético: "A"
- 2 Quartos
- Sem acabamentos executados
- Sem varandas
- Sem poço
- 1 Suite, WC com luz direta da cobertura
- 1 Terraço no Piso 1
DIMENSÕES - 1º PISO:
- Hall: 3.53m²
- Sala: 43.29m²
- WC: 2.18m²
- Circulação ao piso superior: 2.35m²
- Cozinha: 21.69m²
- Lavandaria: 3.59m²
- Terraço: 9.54m²
- Garagem Coberta: 19.18m²
- Anexo: 10.14m²
DIMENSÕES - 2º PISO:
- Quarto 1: 11.43m²
- WC: 5.82m²
- Circulação: 10.80m²
- Quarto 2: 10.97m²
- Suite: 16.01m²
- WC da Suite: 5.01m²
ÁREAS:
- Área total de terreno: 300m²
- Área de construção: 218,21m²
- Área de implantação: 142,63m²
- Volumetria: 702,98m³
- Altura da Fachada: 6,37m
- Nº de Pisos Acima da Cota da Soleira: 2
- Nº de Pisos abaixo da Cota da Soleira: 0
- Nº de Fogos: 1
Faça Visita! Faça Proposta de Compra!
Notas: Caso seja um consultor imobiliário, este imóvel está disponível para partilha de negócio.
3 razões para comprar com a Zome
+ acompanhamento
Com uma preparação e experiência única no mercado imobiliário, os consultores Zome põem toda a sua dedicação em dar-lhe o melhor acompanhamento, orientando-o com a máxima confiança, na direção certa das suas necessidades e ambições.
Daqui para a frente, vamos criar uma relação próxima e escutar com atenção as suas expectativas, porque a nossa prioridade é a sua felicidade! Porque é importante que sinta que está acompanhado, e que estamos consigo sempre.
+ simples
Os consultores Zome têm uma formação única no mercado, ancorada na partilha de experiência prática entre profissionais e fortalecida pelo conhecimento de neurociência aplicada que lhes permite simplificar e tornar mais eficaz a sua experiência imobiliária.
Deixe para trás os pesadelos burocráticos porque na Zome encontra o apoio total de uma equipa experiente e multidisciplinar que lhe dá suporte prático em todos os aspetos fundamentais, para que a sua experiência imobiliária supere as expectativas.
+ feliz
O nosso maior valor é entregar-lhe felicidade!
Liberte-se de preocupações e ganhe o tempo de qualidade que necessita para se dedicar ao que lhe faz mais feliz.
Agimos diariamente para trazer mais valor à sua vida com o aconselhamento fiável de que precisa para, juntos, conseguirmos atingir os melhores resultados.
Com a Zome nunca vai estar perdido ou desacompanhado e encontrará algo que não tem preço: a sua máxima tranquilidade!
É assim que se vai sentir ao longo de toda a experiência: Tranquilo, seguro, confortável e... FELIZ!
Notas:
1. Caso seja um consultor imobiliário, este imóvel está disponível para partilha de negócio. Não hesite em apresentar aos seus clientes compradores e fale connosco para agendar a sua visita.
2. Para maior facilidade na identificação deste imóvel, por favor, refira o respetivo ID ZMPT ou o respetivo agente que lhe tenha enviado a sugestão.
Localização
Rua D. Dinis
Arcozelo, Barcelos, Braga
A localização exacta do imóvel não está disponível. O mapa apresenta a zona aproximada.
Informação do anúncio
ID do anúncio
1244427
Referência Externa
ZMPT576315
Atualizado em
26/04/2026 06:02:04
Anunciante
Chamada para a rede fixa nacional
ZOME Porto - CEC
AMI 17432
Referência do imóvel:
ZMPT576315
Moradia T3 para Venda em Arcozelo