Voltar
Apartamento T3 para Venda em Loures Foto 1
Apartamento T3 para Venda em Loures Foto 2
Apartamento T3 para Venda em Loures Foto 3
Apartamento T3 para Venda em Loures Foto 4
Apartamento T3 para Venda em Loures Foto 5

Apartamento T3 para Venda em Loures

565.000 €

Tipo
Apartamento
Negócio
Venda
Ano de Construção
2022
Quartos
3
Casas de Banho
3
Área Bruta
126 m²
Área Útil
125 m²
Condição
Como novo
Certificado Energético
A

Fantástico Apartamento T3 em Loures

Fantástico Apartamento T3 em Condomínio Privado “Green Terraces” em Loures
R/C
Inserido em Condomínio de Luxo, com 11 apartamentos, destacando-se pelos seus acabamentos de elevada qualidade e com diversas comodidades que oferecem todo o tipo de conforto e bem-estar aos seus moradores.
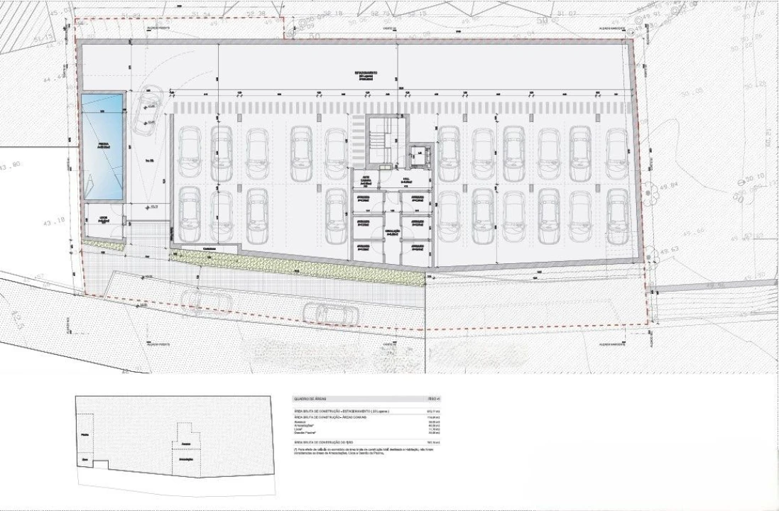
O Condomínio dispõe designadamente de: Piscina aquecida, Garagem, Ginásio, Sala de Condomínio, Espaço exterior com jardim.

O Apartamento tem amplas áreas:
- Área do Apartamento: 126,33 m²;
- Área das três varandas: 52 m² (um Terraço com portas para sala e para a suite e uma varanda com porta para a cozinha).

O Apartamento é distribuído da seguinte forma:
- Hall de entrada
- Sala com acesso ao Terraço e vista para a piscina e campo
- Cozinha, totalmente equipada, com varanda e uma churrasqueira
- Lavabo social
- 1 Suite com closet, casa de banho completa com duche, e com porta para Terraço
- 2 Quartos com roupeiros embutidos
- 1 Casa de banho completa, com duche
- Terraço

Dispõe das seguintes características:
- Terraço com 47,58m2, com acesso à sala e suite e vista para a piscina e campo
- Uma Varanda, que permitem desfrutar da beleza do exterior e da vista da piscina e campo
- Churrasqueira na Varanda da cozinha
- Dois Lugares de Estacionamento na Garagem colectiva do Condomínio com carregamento individual para veículos elétricos
- Uma Arrecadação na Garagem colectiva do Condomínio
- Ar Condicionado, em todas as divisões
- Estores Elétricos com corte térmico
- Caixilharia com Corte Térmico
- Iluminação LED
- Chão Flutuante em Carvalho
- Carpintarias lacadas a branco
- Cerâmicos Margres Linha Calacatta
- Aspiração central
- Águas Quentes com Termo Sifão e Termoacumulador.
- Torneiras de Baixo Consumo
- Painéis Solares
- Pré-instalação para painéis fotovoltaicos
- Portas de Segurança, para garantir a tranquilidade e segurança dos moradores do condomínio
- Certificação Energética Classe A

O Apartamento dispõe de uma excelente exposição solar.

Óptima Localização, situado numa zona tranquila, rodeada de espaços verdes, apenas a 15 km de Lisboa.
Próximo do centro da cidade, Loures, supermercados, farmácias, bancos, Hospital Beatriz Ângelo, e de diversos tipos de comércio e serviços.
Fácil acesso às principais vias, designadamente à A8, CRIL, IC22, CREL, Aeroporto, Ponte Vasco da Gama.
Em breve terá também a futura estação de metro de Loures, a poucos minutos de distância.

O Condomínio encontra-se em fase de construção já avançada, estando prevista a conclusão das obras em finais de Setembro/Outubro do corrente ano.

Agende já a sua visita connosco e venha conhecer este fantástico Apartamento!
Fazemos Partilhas com outras Agências Imobiliárias.

Localização

Loures, Loures, Lisboa

Informação do anúncio

ID do anúncio 1253477
Referência Externa CC-010250222-RCFrt
Atualizado em 28/06/2025 09:37:59
Casa Central - Mediação Imobiliária AMI 16230
Referência do imóvel: CC-010250222-RCFrt
Phone
Chamada para a rede móvel nacional
Casa Central - Mediação Imobiliária AMI 16230
Referência do imóvel: CC-010250222-RCFrt
Phone
Chamada para a rede móvel nacional
1 / 28
Apartamento T3 para Venda em Loures Foto 1
Apartamento T3 para Venda em Loures Foto 2
Apartamento T3 para Venda em Loures Foto 3
Apartamento T3 para Venda em Loures Foto 4
Apartamento T3 para Venda em Loures Foto 5
Apartamento T3 para Venda em Loures Foto 6
Apartamento T3 para Venda em Loures Foto 7
Apartamento T3 para Venda em Loures Foto 8
Apartamento T3 para Venda em Loures Foto 9
Apartamento T3 para Venda em Loures Foto 10
Apartamento T3 para Venda em Loures Foto 11
Apartamento T3 para Venda em Loures Foto 12
Apartamento T3 para Venda em Loures Foto 13
Apartamento T3 para Venda em Loures Foto 14
Apartamento T3 para Venda em Loures Foto 15
Apartamento T3 para Venda em Loures Foto 16
Apartamento T3 para Venda em Loures Foto 17
Apartamento T3 para Venda em Loures Foto 18
Apartamento T3 para Venda em Loures Foto 19
Apartamento T3 para Venda em Loures Foto 20
Apartamento T3 para Venda em Loures Foto 21
Apartamento T3 para Venda em Loures Foto 22
Apartamento T3 para Venda em Loures Foto 23
Apartamento T3 para Venda em Loures Foto 24
Apartamento T3 para Venda em Loures Foto 25
Apartamento T3 para Venda em Loures Foto 26
Apartamento T3 para Venda em Loures Foto 27
Apartamento T3 para Venda em Loures Foto 28
Clicky